ZAM RESIDENCE I

ID Lokasi : ADL0720022023T001
SULAWESI TENGGARA, KAB KONAWE SELATAN, Ranomeeto, Kota Bangun
ZAHFRAN ALFARISQI MAKMUR
REAL ESTATE INDONESIA (REI)


Status Rumah

Subsidi : 10 Unit

Terjual Subsidi : 82 Unit

Komersil : 0 Unit

Terjual Komersil : 0 Unit

Lihat Siteplan Digital

Peta Lokasi



Kantor Pemasaran

JL. KOTA BAGUN no. 14 SULAWESI TENGGARA, KAB KONAWE SELATAN, Ranomeeto, Kota Bangun

Telp : 085219993586

Email : ptzam123@gmail.com

Website :

Foto Lokasi


foto gerbang perumahan ZAM RESIDENCE I
Foto Gerbang/Jalan Utama
foto contoh rumah perumahan ZAM RESIDENCE I
Foto Rumah Contoh
foto posisi tengah perumahan ZAM RESIDENCE I
Foto Posisi Tengah Lokasi

Tipe Rumah


1. Tipe 36 (subsidi)
foto tampak rumah tipe 36 perumahan ZAM RESIDENCE I
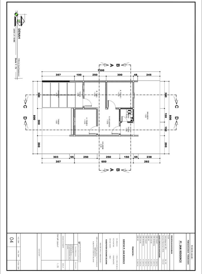
foto denah rumah tipe 36 perumahan ZAM RESIDENCE I

Harga: Rp 156.500.000

Luas Bangunan: 36m 2

Luas Lahan: 104m 2

Kamar Tidur: 2

Kamar Mandi: 1

Spesifikasi Teknis

a. Atap
RANGKA BAJA RINGAN

b. Dinding
BATU MERAH

c. Lantai & Pondasi
TEGEL 40X40 & BATU MORAMO

2. Tipe SUBSIDI (subsidi)
foto tampak rumah tipe SUBSIDI perumahan ZAM RESIDENCE I
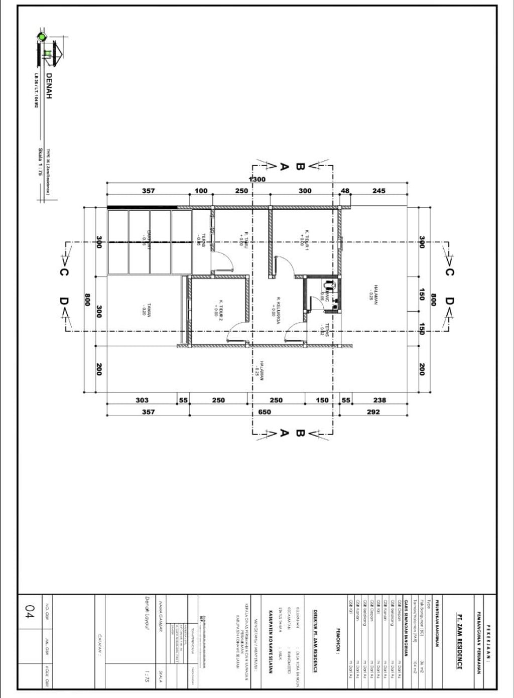
foto denah rumah tipe SUBSIDI perumahan ZAM RESIDENCE I

Harga: Rp 173.000.000

Luas Bangunan: 36m 2

Luas Lahan: 104m 2

Kamar Tidur: 2

Kamar Mandi: 1

Spesifikasi Teknis

a. Atap
SPANDEK

b. Dinding
BATU MERAH

c. Lantai & Pondasi
TEHEL & BATU MORAMO


Peta Lokasi


Kantor Pemasaran

JL. KOTA BAGUN no. 14 SULAWESI TENGGARA, KAB KONAWE SELATAN, Ranomeeto, Kota Bangun

Telp : 085219993586

Email : ptzam123@gmail.com

Website :