D'MARYO RESIDENCE

ID Lokasi : ADL0820142024T001
SULAWESI TENGGARA, KAB KONAWE SELATAN, Ranomeeto, Ambaipua
MUTIARA UTAMA PAPAN SEJAHTERA
REAL ESTATE INDONESIA (REI)


Status Rumah

Subsidi : 229 Unit

Terjual Subsidi : 11 Unit

Komersil : 0 Unit

Terjual Komersil : 0 Unit

Lihat Siteplan Digital

Peta Lokasi



Kantor Pemasaran

Jl. Poros Bandara Haluoleo no. - SULAWESI TENGGARA, KAB KONAWE SELATAN, Ranomeeto, Ambaipua

Telp : 085696677003

Email : olivia.asdar12@gmail.com

Website : -

Foto Lokasi


foto gerbang perumahan D'MARYO RESIDENCE
Foto Gerbang/Jalan Utama
foto contoh rumah perumahan D'MARYO RESIDENCE
Foto Rumah Contoh
foto posisi tengah perumahan D'MARYO RESIDENCE
Foto Posisi Tengah Lokasi

Tipe Rumah


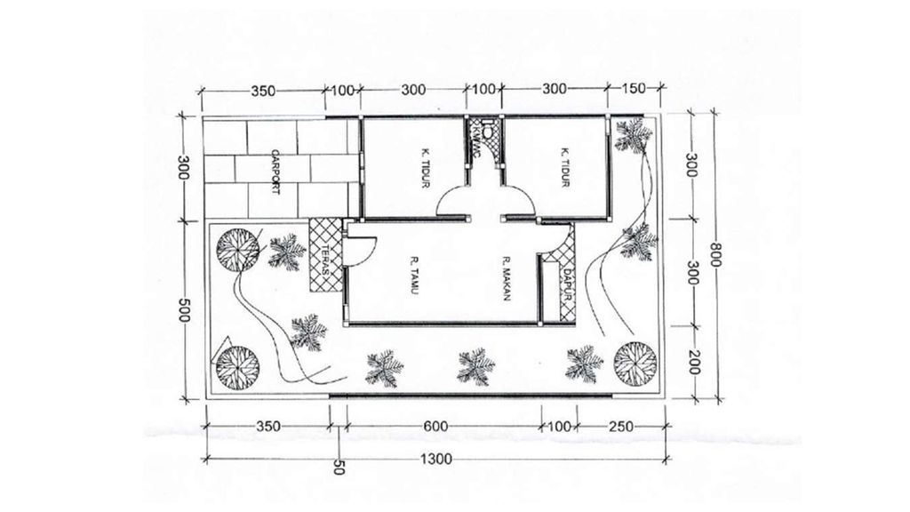
1. Tipe 36 (subsidi)
foto tampak rumah tipe 36 perumahan D'MARYO RESIDENCE
foto denah rumah tipe 36 perumahan D'MARYO RESIDENCE

Harga: Rp 173.000.000

Luas Bangunan: 36m 2

Luas Lahan: 104m 2

Kamar Tidur: 2

Kamar Mandi: 1

Spesifikasi Teknis

a. Atap
spandek

b. Dinding
batu bata merah

c. Lantai & Pondasi
keramik & batu kali


Peta Lokasi


Kantor Pemasaran

Jl. Poros Bandara Haluoleo no. - SULAWESI TENGGARA, KAB KONAWE SELATAN, Ranomeeto, Ambaipua

Telp : 085696677003

Email : olivia.asdar12@gmail.com

Website : -