ID Lokasi : ADL0820192022T001
SULAWESI TENGGARA, KAB KONAWE SELATAN, Ranomeeto, Ranomeeto
PT RAPID CAHAYA LAND
REAL ESTATE INDONESIA
(REI)
Subsidi : 12 Unit
Terjual Subsidi : 47 Unit
Komersil : 0 Unit
Terjual Komersil : 0 Unit
Lihat Siteplan Digital




Harga: Rp 156.500.000
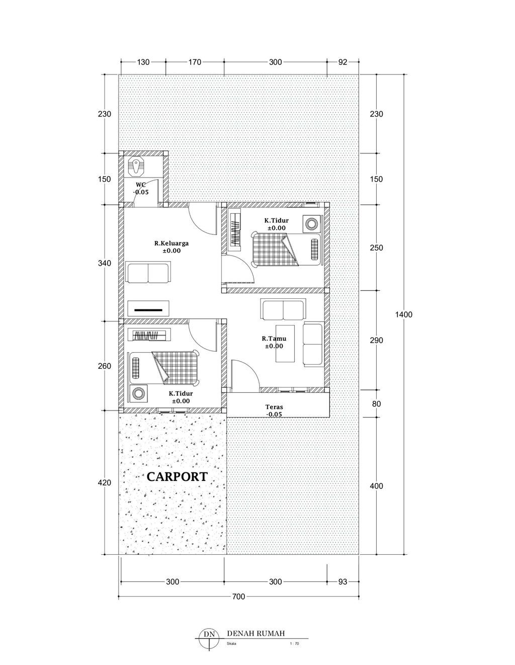
Luas Bangunan: 36m 2
Luas Lahan: 98m 2
Kamar Tidur: 2
Kamar Mandi: 1
a. Atap
SPANDEK
b. Dinding
BETON
c. Lantai & Pondasi
KERAMIK & BATU MORAMO


Harga: Rp 173.000.000
Luas Bangunan: 36m 2
Luas Lahan: 105m 2
Kamar Tidur: 2
Kamar Mandi: 1
a. Atap
SPANDEK
b. Dinding
BETON
c. Lantai & Pondasi
KERAMIK & BATU MORAMO