ID Lokasi : AMS3910012025T002
PAPUA BARAT, KAB SORONG, Mariat, Klamalu
PT GAZI MARA GRUP
REAL ESTATE INDONESIA
(REI)
Subsidi : 111 Unit
Terjual Subsidi : 2 Unit
Komersil : 0 Unit
Terjual Komersil : 0 Unit
Lihat Siteplan DigitalJl. Lahan Usaha 1 Kelurahan Klamalu Distrik Mariat Kabupaten Sorong, nomor -, PAPUA BARAT, KAB SORONG, Aimas, Mariat Pantai no. - PAPUA BARAT, KAB SORONG, Mariat, Klamalu
Telp : 0812-4796-3515
Email : gazimaragroup@gmail.com
Website : https://gazimara.id/





Harga: Rp 2.400.000
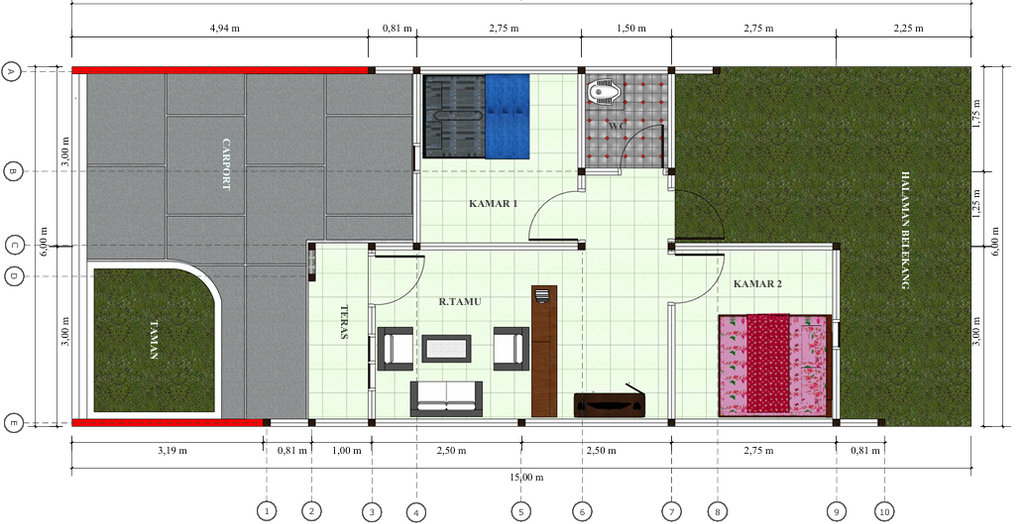
Luas Bangunan: 36m 2
Luas Lahan: 90m 2
Kamar Tidur: 2
Kamar Mandi: 1
a. Atap
kayu kelas 2 dan pasangan seng maron 7 kaki
b. Dinding
pasangan bata merah, plasteran dan acian
c. Lantai & Pondasi
keramik putih 40 x 40 & pasangan batu karang
Jl. Lahan Usaha 1 Kelurahan Klamalu Distrik Mariat Kabupaten Sorong, nomor -, PAPUA BARAT, KAB SORONG, Aimas, Mariat Pantai no. - PAPUA BARAT, KAB SORONG, Mariat, Klamalu
Telp : 0812-4796-3515
Email : gazimaragroup@gmail.com
Website : https://gazimara.id/