ID Lokasi : ARM0220082022T001
SULAWESI UTARA, KAB MINAHASA UTARA, Kauditan, Lembean
CIPTA BANGUN KAIROS
REAL ESTATE INDONESIA
(REI)
Subsidi : 1 Unit
Terjual Subsidi : 6 Unit
Komersil : 0 Unit
Terjual Komersil : 0 Unit
Lihat Siteplan DigitalDesa Lembean Kec kauditan Kab. Minahasa Utara no. 00 SULAWESI UTARA, KAB MINAHASA UTARA, Kauditan, Lembean
Telp : 082345967506
Email : ciptabangunkairos@gmail.com
Desa Lembean Kab. Minut no. 00 SULAWESI UTARA, KAB MINAHASA UTARA, Kauditan, Lembean
Telp : 085824456630
Email : iintri1280@gmail.com
Website : Depan RS Hermana Lembean





Harga: Rp 156.500.000
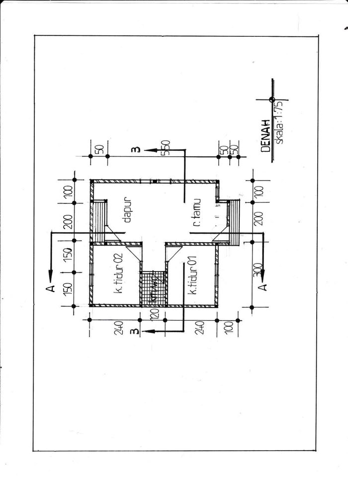
Luas Bangunan: 36m 2
Luas Lahan: 108m 2
Kamar Tidur: 2
Kamar Mandi: 1
a. Atap
seng bergelombang berwarna dan kayu kualitas baik
b. Dinding
hollowbrick, plester, aci dan cat
c. Lantai & Pondasi
keramik 40x40 & Batu gunung/Belah


Harga: Rp 168.000.000
Luas Bangunan: 36m 2
Luas Lahan: 108m 2
Kamar Tidur: 2
Kamar Mandi: 1
a. Atap
Seng Bergelombang, Baja Ringan
b. Dinding
Hollow Brick, Pleter, Aci, Cat
c. Lantai & Pondasi
Keramik 40*40 & Batu Belah
Desa Lembean Kec kauditan Kab. Minahasa Utara no. 00 SULAWESI UTARA, KAB MINAHASA UTARA, Kauditan, Lembean
Telp : 082345967506
Email : ciptabangunkairos@gmail.com
Desa Lembean Kab. Minut no. 00 SULAWESI UTARA, KAB MINAHASA UTARA, Kauditan, Lembean
Telp : 085824456630
Email : iintri1280@gmail.com
Website : Depan RS Hermana Lembean