ID Lokasi : BAG0120012025T001
SULAWESI TENGGARA, KAB BUTON SELATAN, Batauga, Lawela
PT MULTI NATURAL SINERGI
Developer Properti Indonesia
(DEPRINDO)
Subsidi : 49 Unit
Terjual Subsidi : 1 Unit
Komersil : 0 Unit
Terjual Komersil : 0 Unit
Lihat Siteplan DigitalJalan Lingkungan Desa Lawela no. 0 SULAWESI TENGGARA, KAB BUTON SELATAN, Batauga, Lawela
Telp : 082297779271 0852327762777
Email : management.minergi@gmail.com
Jalan Sultan Hasanuddin no. 9D SULAWESI TENGGARA, KOTA BAU BAU, Wolio, Batulo
Telp : 082297779271 085232776277
Email : management.minergi@gmail.com





Harga: Rp 173.000.000
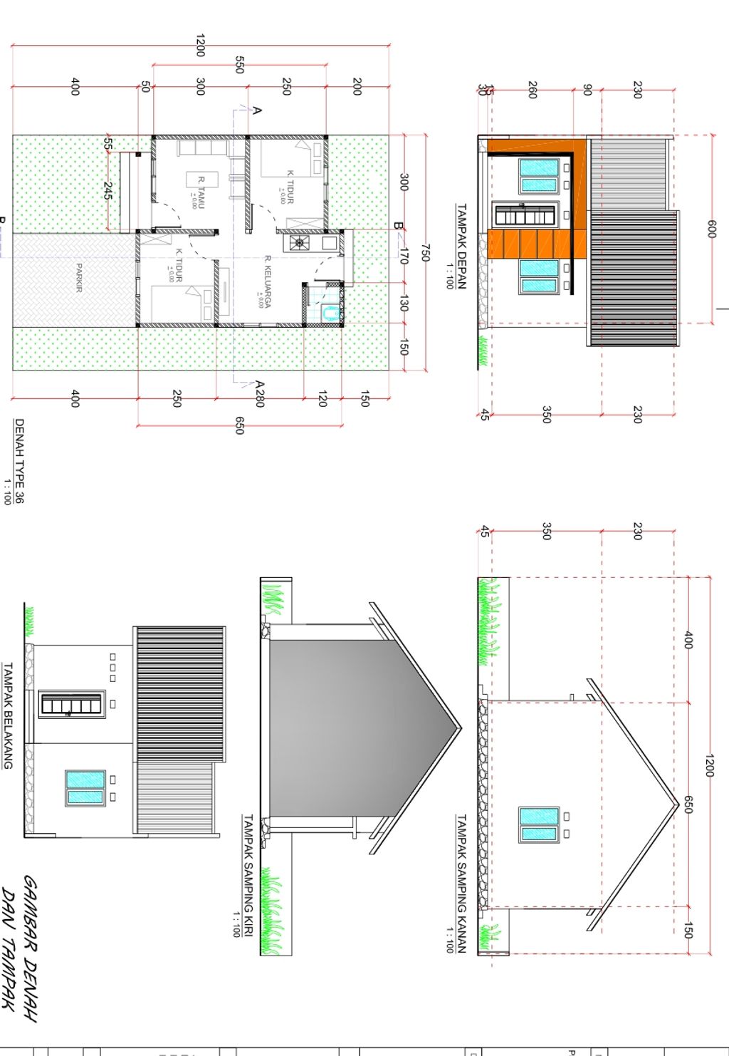
Luas Bangunan: 36m 2
Luas Lahan: 91m 2
Kamar Tidur: 2
Kamar Mandi: 1
a. Atap
Spandek
b. Dinding
Bata Ringan (Hebel)
c. Lantai & Pondasi
Keramik 50x50 & Batu Gunung
Jalan Lingkungan Desa Lawela no. 0 SULAWESI TENGGARA, KAB BUTON SELATAN, Batauga, Lawela
Telp : 082297779271 0852327762777
Email : management.minergi@gmail.com
Jalan Sultan Hasanuddin no. 9D SULAWESI TENGGARA, KOTA BAU BAU, Wolio, Batulo
Telp : 082297779271 085232776277
Email : management.minergi@gmail.com