ID Lokasi : BAR0310032020T001
SULAWESI SELATAN, KAB BARRU, Barru, Sumpang Binangae
PT RYAN SYAHM JAYA
PERKUMPULAN ASOSIASI PENGEMBANG PERUMAHAN DAN PERMUKIMAN SELURUH INDONESIA
(APERSI)
Subsidi : 12 Unit
Terjual Subsidi : 67 Unit
Komersil : 8 Unit
Terjual Komersil : 4 Unit
Lihat Siteplan Digital



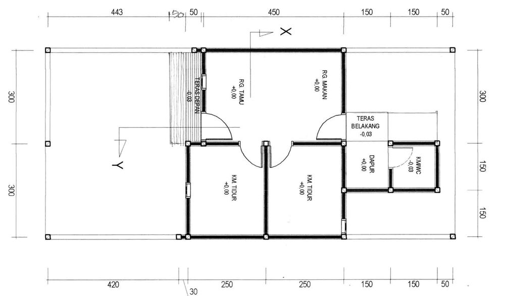
Harga: Rp 156.500.000
Luas Bangunan: 36m 2
Luas Lahan: 78m 2
Kamar Tidur: 2
Kamar Mandi: 1
a. Atap
baja ringan
b. Dinding
bata merah
c. Lantai & Pondasi
keramik & batu gunung