ID Lokasi : BBS0820112021T001
JAWA TENGAH, KAB BREBES, Wanasari, Pesantunan
PT CITRA PROPERTI INTERNUSA
REAL ESTATE INDONESIA
(REI)
Subsidi : 50 Unit
Terjual Subsidi : 92 Unit
Komersil : 11 Unit
Terjual Komersil : 0 Unit
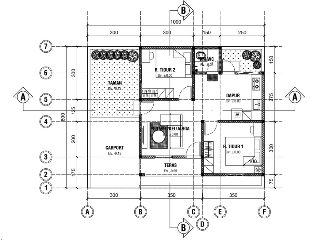
Lihat Siteplan DigitalJL. RAYA SAWOJAJAR, DESA PESANTUNAN, KECAMATAN WANASARI, KABUPATEN BREBES no. 5 JAWA TENGAH, KAB BREBES, Wanasari, Pesantunan
Telp : 085729298625
Email : udjie971@gmail.com
Website : www.citrapropertiinternusa.co.id





Harga: Rp 150.000.000
Luas Bangunan: 30m 2
Luas Lahan: 60m 2
Kamar Tidur: 2
Kamar Mandi: 1
a. Atap
ATAP BAJA RINGAN, GENTENG PRESS
b. Dinding
PASANGAN BATA MERAH, PLESTER, ACI, FINISHING CAT
c. Lantai & Pondasi
KERAMIK 40 X 40 WARNA PUTIH & PASANGAN BATU KALI


Harga: Rp 150.500.000
Luas Bangunan: 36m 2
Luas Lahan: 72m 2
Kamar Tidur: 2
Kamar Mandi: 1
a. Atap
Genteng Jatiwangi
b. Dinding
Pasangan bata, plester aci, finishing cat
c. Lantai & Pondasi
keramik 30 x 30 & Pasangan batu kali


Harga: Rp 150.000.000
Luas Bangunan: 30m 2
Luas Lahan: 60m 2
Kamar Tidur: 2
Kamar Mandi: 1
a. Atap
BAJA RINGAN
b. Dinding
PASANGAN BATA, DIPLESTER DAN ACIAN FINISHING CAT
c. Lantai & Pondasi
KERAMIK 40 X 40 & PASANGAN BATU KALI


Harga: Rp 150.000.000
Luas Bangunan: 30m 2
Luas Lahan: 60m 2
Kamar Tidur: 2
Kamar Mandi: 1
a. Atap
BAJA RINGAN
b. Dinding
PASANGAN BATA, PLESTER DAN ACIAN, FINISHING CAT
c. Lantai & Pondasi
KERAMIK 40 X 40 & PASANGAN BATU KALI


Harga: Rp 150.000.000
Luas Bangunan: 30m 2
Luas Lahan: 60m 2
Kamar Tidur: 2
Kamar Mandi: 1
a. Atap
BAJA RINGAN
b. Dinding
PASANGAN BATA, PLESTER DAN ACIAN, FINISHING CAT
c. Lantai & Pondasi
KERAMIK 40 X 40 & PASANGAN BATU KALI


Harga: Rp 150.000.000
Luas Bangunan: 30m 2
Luas Lahan: 60m 2
Kamar Tidur: 2
Kamar Mandi: 1
a. Atap
BAJA RINGAN
b. Dinding
PASANGAN BATA, PLESTER DAN ACIAN, FINISHING CAT
c. Lantai & Pondasi
KERAMIK 40 X 40 & PASANGAN BATU KALI


Harga: Rp 150.000.000
Luas Bangunan: 30m 2
Luas Lahan: 60m 2
Kamar Tidur: 2
Kamar Mandi: 1
a. Atap
BAJA RINGAN
b. Dinding
PASANGAN BATA, PLESTER DAN ACIAN, FINISHING CAT
c. Lantai & Pondasi
KERAMIK 40 X 40 & PASANGAN BATU KALI


Harga: Rp 150.000.000
Luas Bangunan: 30m 2
Luas Lahan: 60m 2
Kamar Tidur: 2
Kamar Mandi: 1
a. Atap
BAJA RINGAN
b. Dinding
PASANGAN BATA, PLESTER DAN ACIAN, FINISHING CAT
c. Lantai & Pondasi
KERAMIK 40 X 40 & PASANGAN BATU KALI


Harga: Rp 150.000.000
Luas Bangunan: 30m 2
Luas Lahan: 60m 2
Kamar Tidur: 2
Kamar Mandi: 1
a. Atap
BAJA RINGAN
b. Dinding
PASANGAN BATA, PLESTER DAN ACIAN, FINISHING CAT
c. Lantai & Pondasi
KERAMIK 40 X 40 & PASANGAN BATU KALI


Harga: Rp 150.000.000
Luas Bangunan: 30m 2
Luas Lahan: 60m 2
Kamar Tidur: 2
Kamar Mandi: 1
a. Atap
BAJA RINGAN
b. Dinding
PASANGAN BATA, PESTER DAN ACIAN FINISHING CAT
c. Lantai & Pondasi
KERAMIK 40 X 40 & PASANGAN BATU KALI


Harga: Rp 150.000.000
Luas Bangunan: 30m 2
Luas Lahan: 60m 2
Kamar Tidur: 2
Kamar Mandi: 1
a. Atap
BAJA RINGAN
b. Dinding
PASANGAN BATA, PLESTER DAN ACIAN, FINISHING CAT
c. Lantai & Pondasi
KERAMIK 40 X 40 & PASANGAN BATU KALI


Harga: Rp 150.000.000
Luas Bangunan: 30m 2
Luas Lahan: 60m 2
Kamar Tidur: 2
Kamar Mandi: 1
a. Atap
BAJA RINGAN
b. Dinding
PASANGAN BATA, PLESTER DAN ACIAN, FINISHING CAT
c. Lantai & Pondasi
KERAMIK 40 X 40 & PASANGAN BATU KALI


Harga: Rp 350.000.000
Luas Bangunan: 47m 2
Luas Lahan: 80m 2
Kamar Tidur: 2
Kamar Mandi: 1
a. Atap
ATAP BAJA RINGAN, GENTENG MORANDO GLAZUUR
b. Dinding
BATUBATA, DIPLESTER DAN ACI, FINISHING CAT CATYLAC
c. Lantai & Pondasi
KERAMIK PUTIH 50 X 50 & PASANGAN BATU KALI
JL. RAYA SAWOJAJAR, DESA PESANTUNAN, KECAMATAN WANASARI, KABUPATEN BREBES no. 5 JAWA TENGAH, KAB BREBES, Wanasari, Pesantunan
Telp : 085729298625
Email : udjie971@gmail.com
Website : www.citrapropertiinternusa.co.id