ID Lokasi : BBS0920042025T001
JAWA TENGAH, KAB BREBES, Brebes, Kaligangsa Kulon
PT LIMBAD RAJA INDONESIA
ASOSIASI PENGEMBANG RUMAH SEDERHANA SEHAT NASIONAL
(APERNAS)
Subsidi : 132 Unit
Terjual Subsidi : 24 Unit
Komersil : 0 Unit
Terjual Komersil : 0 Unit
Lihat Siteplan DigitalPerumahan Limbad Residence 2 no. A-7 JAWA TENGAH, KAB BREBES, Brebes, Kaligangsa Kulon
Telp : 0821-2367-8108
Email : limbadestate@gmail.com
Website : -





Harga: Rp 166.000.000
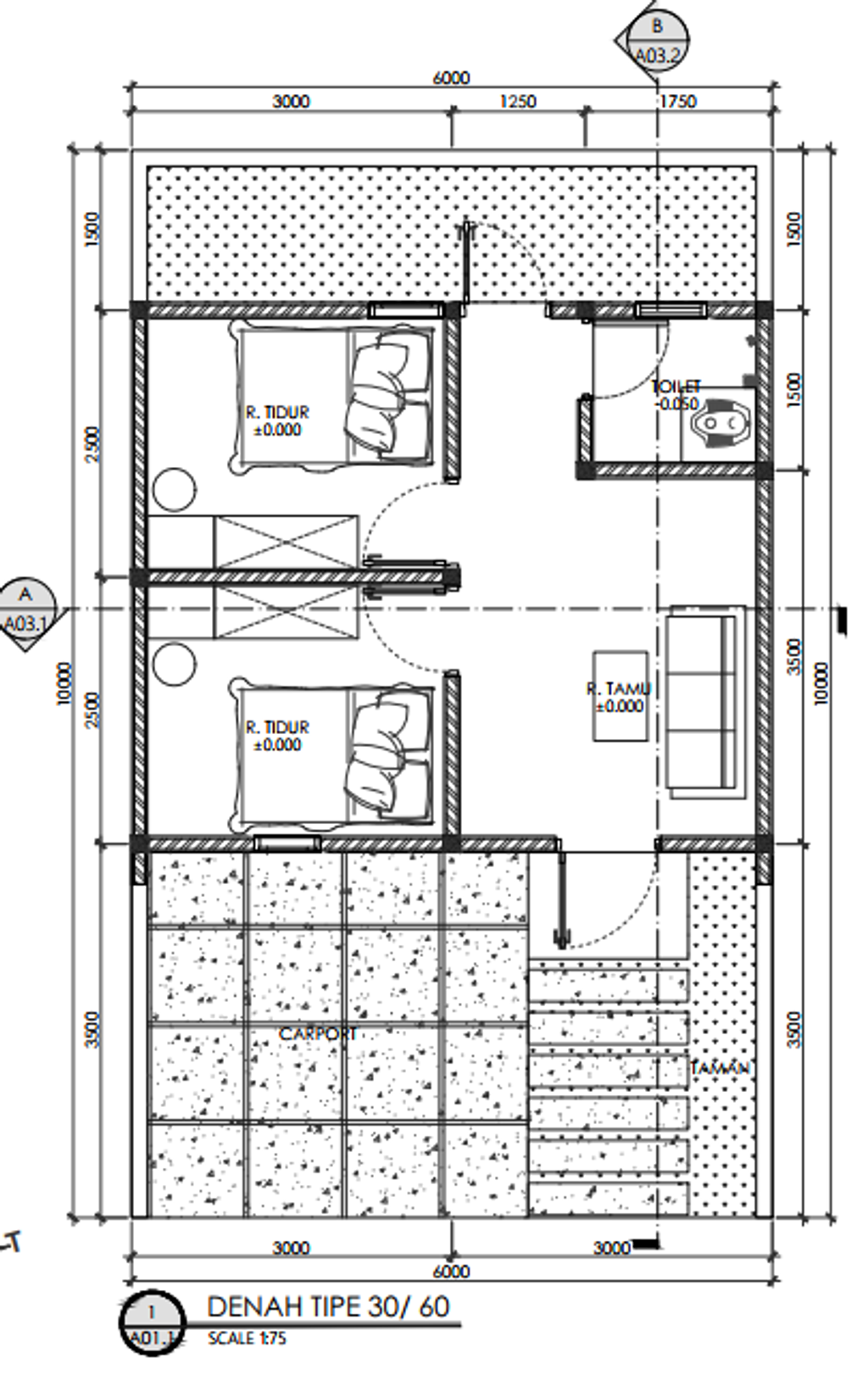
Luas Bangunan: 30m 2
Luas Lahan: 60m 2
Kamar Tidur: 2
Kamar Mandi: 2
a. Atap
Atap Metal Pasir
b. Dinding
Bata Merah, di plester aci
c. Lantai & Pondasi
keramik 40x40 & Pondasi batu kali
Perumahan Limbad Residence 2 no. A-7 JAWA TENGAH, KAB BREBES, Brebes, Kaligangsa Kulon
Telp : 0821-2367-8108
Email : limbadestate@gmail.com
Website : -