ID Lokasi : BBS1420012023T001
JAWA TENGAH, KAB BREBES, Bulakamba, Bangsri
TUNAS HIDAYAH RIZKI
REAL ESTATE INDONESIA
(REI)
Subsidi : 7 Unit
Terjual Subsidi : 15 Unit
Komersil : 0 Unit
Terjual Komersil : 0 Unit
Lihat Siteplan DigitalJl. Perum. Hollywood I no. B13 BENGKULU, KAB REJANG LEBONG, Padang Ulak Tanding, Karang Baru
Telp : +62 878-3024-8790
Email : tunashidayah1@gmail.com
Website : 0





Harga: Rp 160.000.000
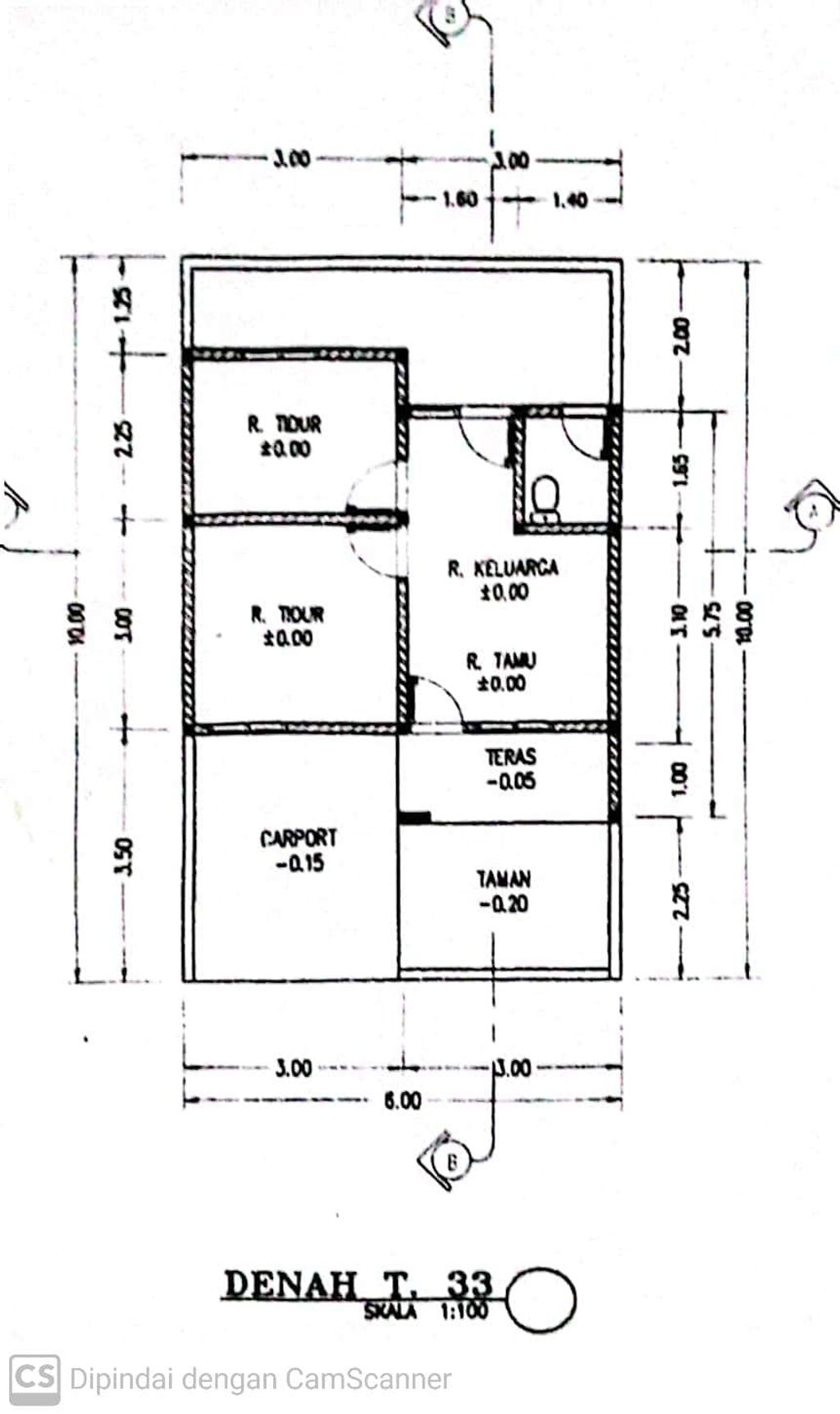
Luas Bangunan: 30m 2
Luas Lahan: 60m 2
Kamar Tidur: 2
Kamar Mandi: 1
a. Atap
Rangka Atap : Baja Ringan, Atap : Genteng Press, Plafon : Rangka Hollow Kalsiboard
b. Dinding
Dinding : Bata Merah, Kusen & Pintu : Kayu Lokak Keras
c. Lantai & Pondasi
Keramik 40 x 40 & Pondasi : Batu Kali, Konstruksi : Beton Bertulang
Jl. Perum. Hollywood I no. B13 BENGKULU, KAB REJANG LEBONG, Padang Ulak Tanding, Karang Baru
Telp : +62 878-3024-8790
Email : tunashidayah1@gmail.com
Website : 0