ID Lokasi : BBS1620032021T001
JAWA TENGAH, KAB BREBES, Ketanggungan, Bulakelor
PT MADISON MUSTIKA NUSANTARA
ASOSIASI PENGEMBANG RUMAH SEDERHANA SEHAT NASIONAL
(APERNAS)
Subsidi : 3 Unit
Terjual Subsidi : 42 Unit
Komersil : 0 Unit
Terjual Komersil : 0 Unit
Lihat Siteplan Digital




Harga: Rp 130.000.000
Luas Bangunan: 30m 2
Luas Lahan: 60m 2
Kamar Tidur: 2
Kamar Mandi: 1
a. Atap
Genteng Morando Glasur
b. Dinding
Batu Bata di Plester dan Finishing Cat
c. Lantai & Pondasi
Keramik 30 x 30 & Batu Kali


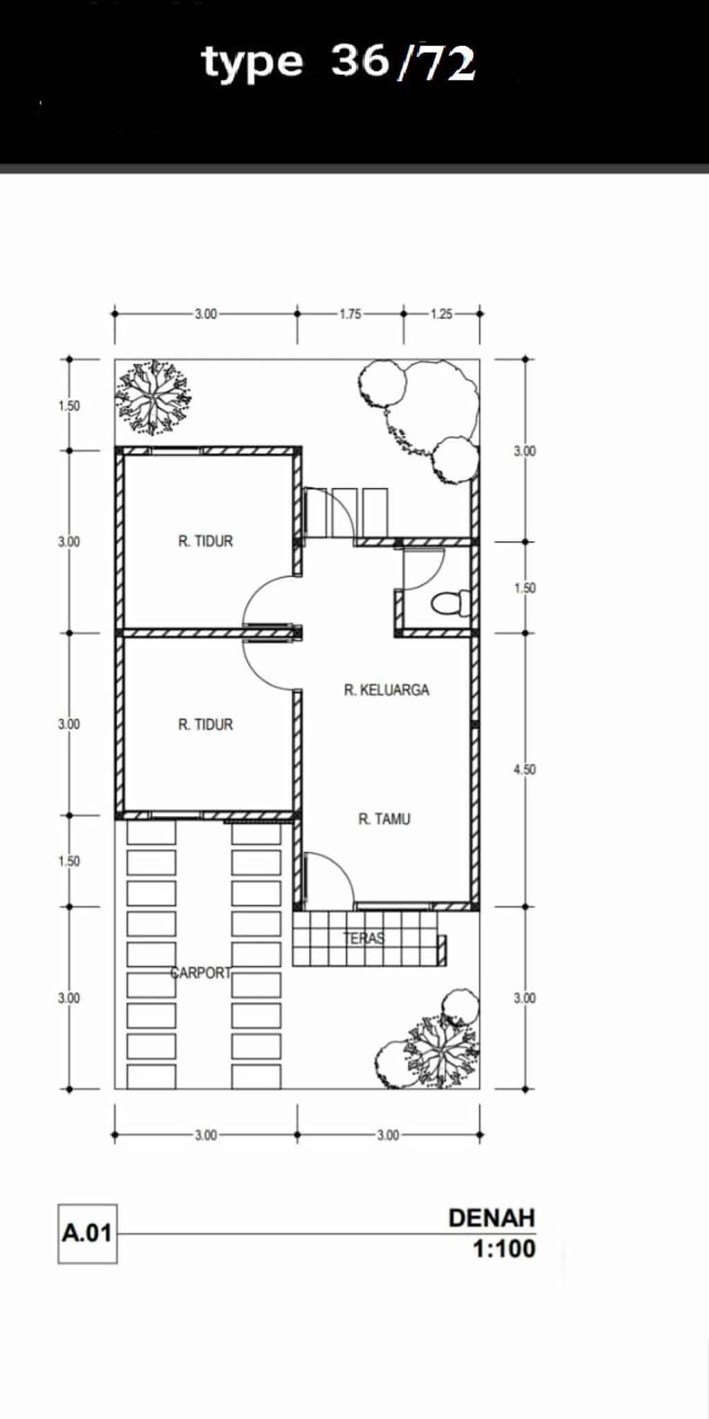
Harga: Rp 166.000.000
Luas Bangunan: 36m 2
Luas Lahan: 72m 2
Kamar Tidur: 2
Kamar Mandi: 1
a. Atap
Rangka Holo 4 x 4,Atap Gypsum,Rangka Baja Ringan & Genteng Glasur
b. Dinding
Bata Merah,Plester Aci & Finishing Cat
c. Lantai & Pondasi
Keramik Putih 40 x 40 & Batu Kali,SLoof Kolom & Sloof balok Besi 10"


Harga: Rp 166.000.000
Luas Bangunan: 36m 2
Luas Lahan: 72m 2
Kamar Tidur: 2
Kamar Mandi: 1
a. Atap
Rangka Atap Baja Ringan dengan Genteng Beton
b. Dinding
Dinding Bata merah,Plester,Acian dan Finishing Cat
c. Lantai & Pondasi
Keramik putih 40 x 40 & Batu kali dengan sloof kolom & Sloof balok Besi 10"


Harga: Rp 166.000.000
Luas Bangunan: 30m 2
Luas Lahan: 60m 2
Kamar Tidur: 2
Kamar Mandi: 1
a. Atap
Rangka Baja Ringan dengan Genteng Beton
b. Dinding
Bata Merah,Plester,Aci dan Finishing Cat
c. Lantai & Pondasi
Keramik Putih 30x30 & Batu Kali dengan Sloof Beton Besi 10"