ID Lokasi : BDG2310012024T001
JAWA BARAT, KOTA BANDUNG, Rancasari, Cipamokolan
PT PAJAJARAN MULIA JAYA
REAL ESTATE INDONESIA
(REI)
Subsidi : 0 Unit
Terjual Subsidi : 0 Unit
Komersil : 0 Unit
Terjual Komersil : 6 Unit
Lihat Siteplan DigitalJl. Manjahlega, Komp. Saturnus Regency no. 1A JAWA BARAT, KOTA BANDUNG, Rancasari, Munjahlega
Telp : 081232385000
Email : admin@ganproperti.com
Website : www.ganproperti.com





Harga: Rp 751.000.000
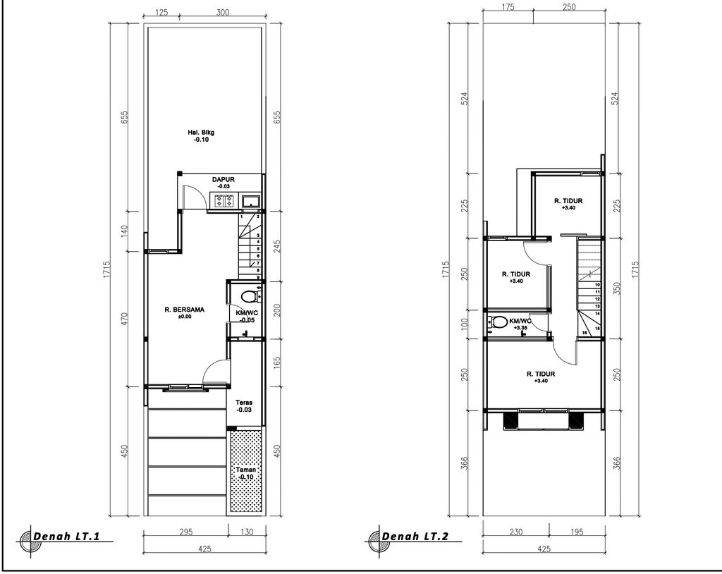
Luas Bangunan: 55m 2
Luas Lahan: 75m 2
Kamar Tidur: 3
Kamar Mandi: 2
a. Atap
Atap baja ringan + genteng
b. Dinding
Bata ringan + cor kolom beton
c. Lantai & Pondasi
Granit & GranitBatu kali + struktur cakar ayam dan strauss pile


Harga: Rp 678.000.000
Luas Bangunan: 55m 2
Luas Lahan: 71m 2
Kamar Tidur: 3
Kamar Mandi: 2
a. Atap
Baja ringan + genteng beton
b. Dinding
Bata hebel + plester aci cat
c. Lantai & Pondasi
Granit
& Batu kali + struktur cakar ayam dan strauss pile


Harga: Rp 840.000.000
Luas Bangunan: 50m 2
Luas Lahan: 96m 2
Kamar Tidur: 3
Kamar Mandi: 2
a. Atap
Baja ringan + genteng beton
b. Dinding
Bata hebel + plester aci cat
c. Lantai & Pondasi
Granit
& Batu kali + struktur cakar ayam dan strauss pile


Harga: Rp 722.000.000
Luas Bangunan: 50m 2
Luas Lahan: 85m 2
Kamar Tidur: 3
Kamar Mandi: 2
a. Atap
Baja ringan + genteng beton
b. Dinding
Bata hebel + plester aci cat
c. Lantai & Pondasi
Granit
& Batu kali + struktur cakar ayam dan strauss pile


Harga: Rp 612.000.000
Luas Bangunan: 55m 2
Luas Lahan: 73m 2
Kamar Tidur: 3
Kamar Mandi: 2
a. Atap
Baja ringan + genteng beton
b. Dinding
Bata hebel + plester aci cat
c. Lantai & Pondasi
Granit
& Batu kali + struktur cakar ayam dan strauss pile
Jl. Manjahlega, Komp. Saturnus Regency no. 1A JAWA BARAT, KOTA BANDUNG, Rancasari, Munjahlega
Telp : 081232385000
Email : admin@ganproperti.com
Website : www.ganproperti.com