ID Lokasi : BDW0920102026T001
JAWA TIMUR, KAB BONDOWOSO, Wonosari, Traktakan
PT KHARISMA PENANGGUNGAN RAYA
PERKUMPULAN ASOSIASI PENGEMBANG PERUMAHAN DAN PERMUKIMAN SELURUH INDONESIA
(APERSI)
Subsidi : 88 Unit
Terjual Subsidi : 0 Unit
Komersil : 0 Unit
Terjual Komersil : 0 Unit
Lihat Siteplan Digital




Harga: Rp 150.000.000
Luas Bangunan: 30m 2
Luas Lahan: 60m 2
Kamar Tidur: 2
Kamar Mandi: 1
a. Atap
Baja Ringan, Genteng Beton
b. Dinding
Bata Ringan di Aci dan Cat
c. Lantai & Pondasi
Keramik Motif Ukuran 40x40 & Batu Kali


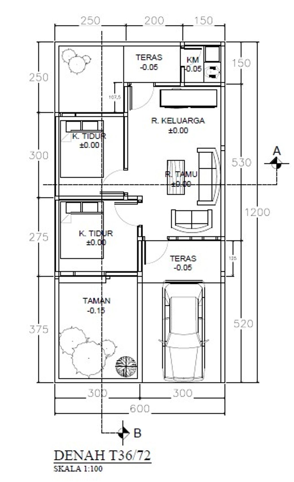
Harga: Rp 166.000.000
Luas Bangunan: 36m 2
Luas Lahan: 72m 2
Kamar Tidur: 2
Kamar Mandi: 1
a. Atap
Baja ringan, Genteng Beton
b. Dinding
Bata Ringan di aci, Cat
c. Lantai & Pondasi
Keramik motif ukuran 40x40 & Batu Kali