ID Lokasi : BIM0310022025T001
NUSA TENGGARA BARAT, KOTA BIMA, Asakota, Jatiwangi
PT KONSTRUKSI TIANG MAS
REAL ESTATE INDONESIA
(REI)
Subsidi : 32 Unit
Terjual Subsidi : 10 Unit
Komersil : 0 Unit
Terjual Komersil : 0 Unit
Lihat Siteplan Digital




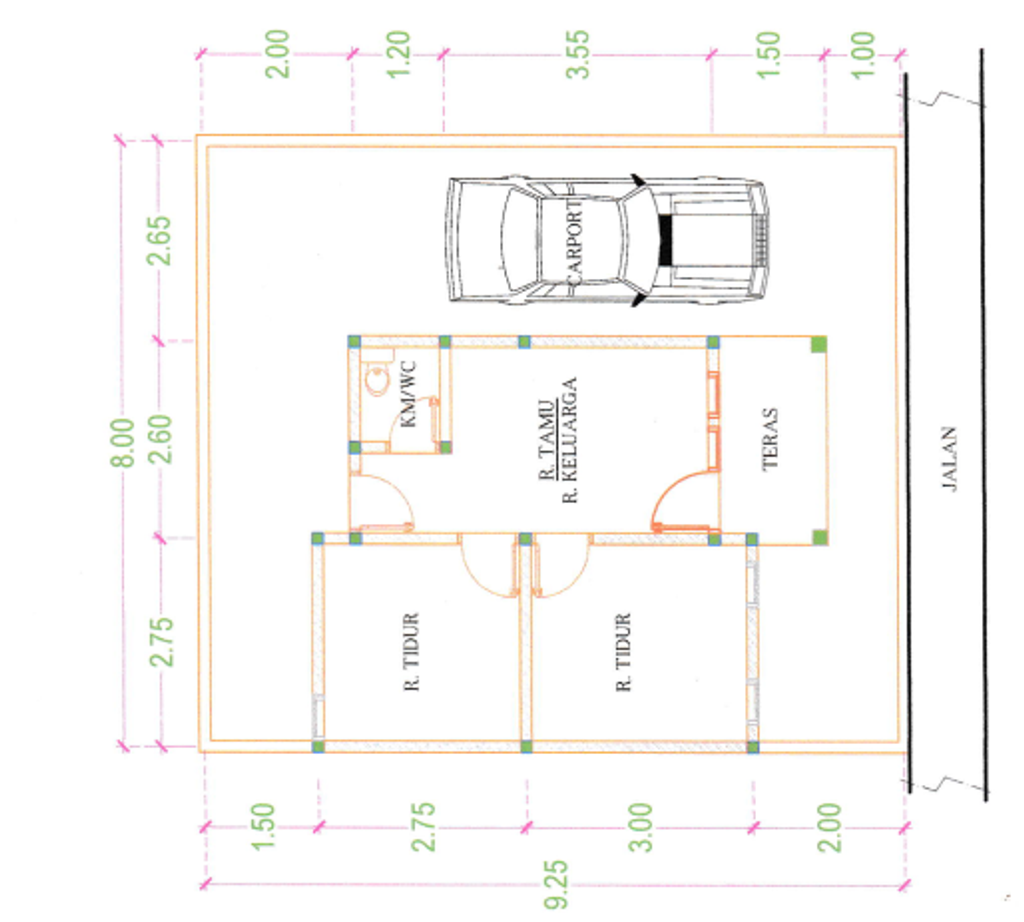
Harga: Rp 185.000.000
Luas Bangunan: 30m 2
Luas Lahan: 75m 2
Kamar Tidur: 2
Kamar Mandi: 1
a. Atap
Atap menggunakan Genteng Multiroof dengan rangka baja ringan.
b. Dinding
konstruksi menggunakan bata merah sebagai bahan utama dinding, namun diperkuat dengan struktur beton bertulang untuk menahan beban dan memberikan kekuatan pada bangunan
c. Lantai & Pondasi
Lantai menggunakan keramik putih 40x40 cm & Pondasi menggunakan batu belah