ID Lokasi : BJB0310042021T005
KALIMANTAN SELATAN, KOTA BANJARBARU, Cempaka, Cempaka
PT CITRA MEGAH UTAMA
REAL ESTATE INDONESIA
(REI)
Subsidi : 63 Unit
Terjual Subsidi : 153 Unit
Komersil : 32 Unit
Terjual Komersil : 33 Unit
Lihat Siteplan Digital




Harga: Rp 147.000.000
Luas Bangunan: 36m 2
Luas Lahan: 140m 2
Kamar Tidur: 2
Kamar Mandi: 1
a. Atap
Kap Atap : Truss
Penutup Atap : Metal Roof
Plafond : Kalsiboard
b. Dinding
Pasangan Batako, diplester dan dicat
c. Lantai & Pondasi
Lantai Keramik Polos 30x30, Teras keramik 30x30 & Pasangan Batu Gunung, Struktur Beton Bertulang


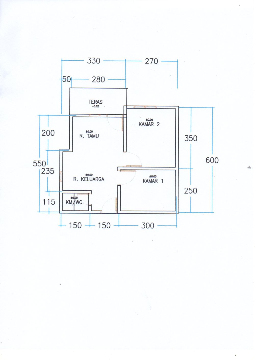
Harga: Rp 235.000.000
Luas Bangunan: 45m 2
Luas Lahan: 150m 2
Kamar Tidur: 2
Kamar Mandi: 1
a. Atap
Kap Atap : Baja Truss
Penutup Atap : Metal Roof
Plafond : Kalsiboard (setara)
b. Dinding
Pasangan Bata Ringan, Diplester dan dicat
c. Lantai & Pondasi
Keramik Motif 40x40, tiang cor beton & Pasangan Batu Gunung, Struktur Beton Bertulang