Shafwah Guntung Paikat 2

ID Lokasi : BJB0510032021T001
KALIMANTAN SELATAN, KOTA BANJARBARU, Banjarbaru Selatan, Kemuning
SHAFWAH ROYAL PROPERTY
REAL ESTATE INDONESIA (REI)


Status Rumah

Subsidi : 0 Unit

Terjual Subsidi : 0 Unit

Komersil : 0 Unit

Terjual Komersil : 19 Unit

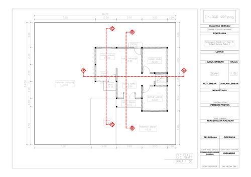
Lihat Siteplan Digital

Peta Lokasi



Kantor Pemasaran

Jl. Trikora, Shafwah Business Center Ruko Banjarbaru, Kalimantan Selatan no. 10 KALIMANTAN SELATAN, KOTA BANJARBARU, Banjarbaru Selatan, Kemuning

Telp : 05116749537

Email : shafwahroyal21@gmail.com

Website :

Foto Lokasi


foto gerbang perumahan Shafwah Guntung Paikat 2
Foto Gerbang/Jalan Utama
foto contoh rumah perumahan Shafwah Guntung Paikat 2
Foto Rumah Contoh
foto posisi tengah perumahan Shafwah Guntung Paikat 2
Foto Posisi Tengah Lokasi

Tipe Rumah


1. Tipe GUNTUNG PAIKAT I (komersil)
foto tampak rumah tipe GUNTUNG PAIKAT I perumahan Shafwah Guntung Paikat 2
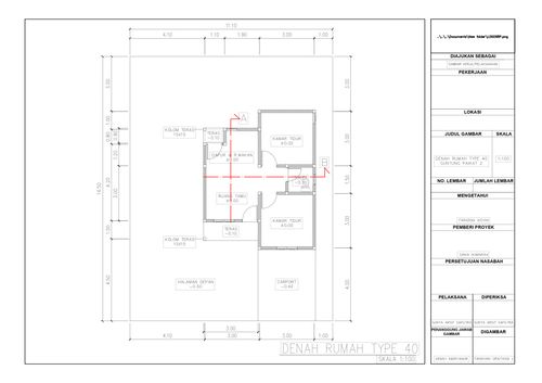
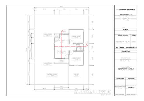
foto denah rumah tipe GUNTUNG PAIKAT I perumahan Shafwah Guntung Paikat 2

Harga: Rp 195.000.000

Luas Bangunan: 40m 2

Luas Lahan: 160m 2

Kamar Tidur: 2

Kamar Mandi: 1

Spesifikasi Teknis

a. Atap
MINIMALIS

b. Dinding
BATAKO

c. Lantai & Pondasi
KERAMIK & BATU GUNUNG

2. Tipe GUNTUNG PAIKAT (komersil)
foto tampak rumah tipe GUNTUNG PAIKAT perumahan Shafwah Guntung Paikat 2
foto denah rumah tipe GUNTUNG PAIKAT perumahan Shafwah Guntung Paikat 2

Harga: Rp 210.000.000

Luas Bangunan: 40m 2

Luas Lahan: 160m 2

Kamar Tidur: 2

Kamar Mandi: 1

Spesifikasi Teknis

a. Atap
MINIMALIS

b. Dinding
BATAKO

c. Lantai & Pondasi
KERAMIK & BATU GUNUNG

3. Tipe 55 (komersil)
foto tampak rumah tipe 55 perumahan Shafwah Guntung Paikat 2
foto denah rumah tipe 55 perumahan Shafwah Guntung Paikat 2

Harga: Rp 300.000.000

Luas Bangunan: 55m 2

Luas Lahan: 241m 2

Kamar Tidur: 2

Kamar Mandi: 1

Spesifikasi Teknis

a. Atap
MINIMALIS

b. Dinding
BATAKO

c. Lantai & Pondasi
KERAMIK & BATU GUNUNG

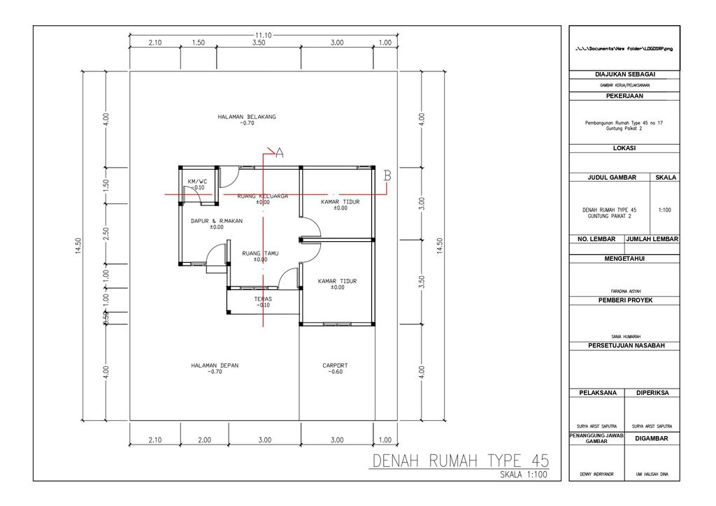
4. Tipe KOMERSIL 45 (komersil)
foto tampak rumah tipe KOMERSIL 45 perumahan Shafwah Guntung Paikat 2
foto denah rumah tipe KOMERSIL 45 perumahan Shafwah Guntung Paikat 2

Harga: Rp 250.000.000

Luas Bangunan: 45m 2

Luas Lahan: 160m 2

Kamar Tidur: 2

Kamar Mandi: 1

Spesifikasi Teknis

a. Atap
MINIMALIS

b. Dinding
BATA KO

c. Lantai & Pondasi
KERAMIK & BATU GUNUNG

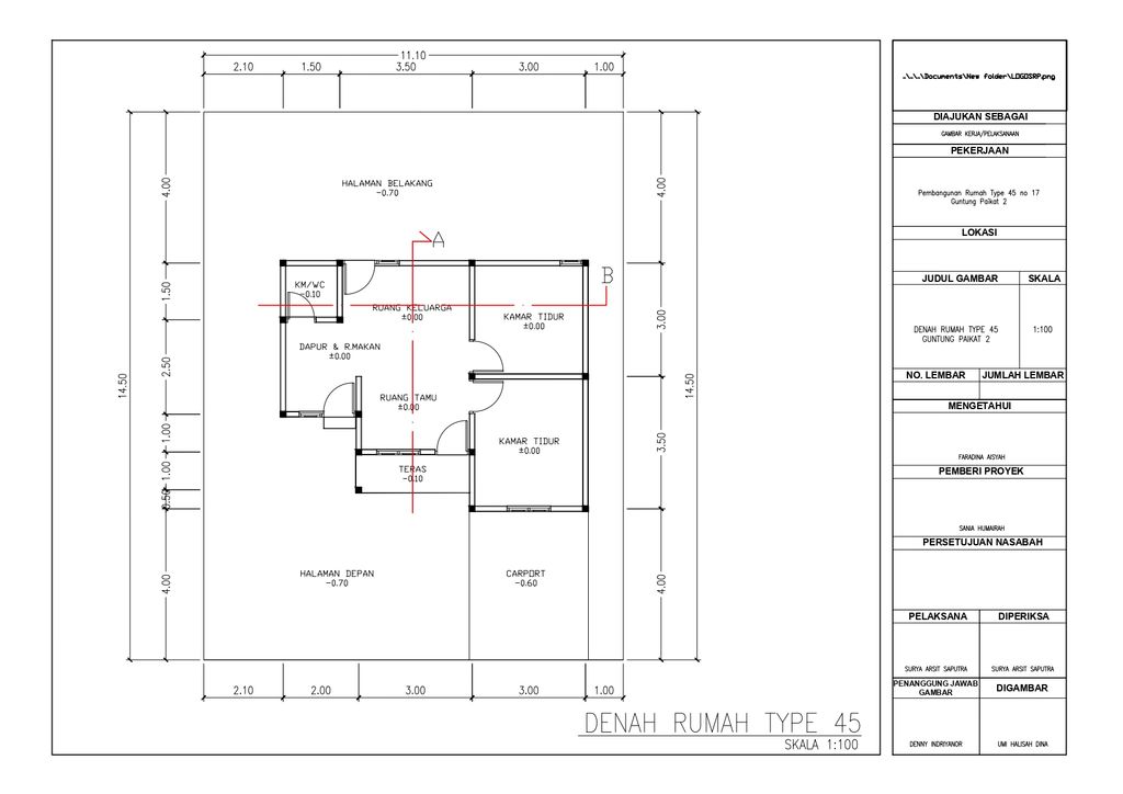
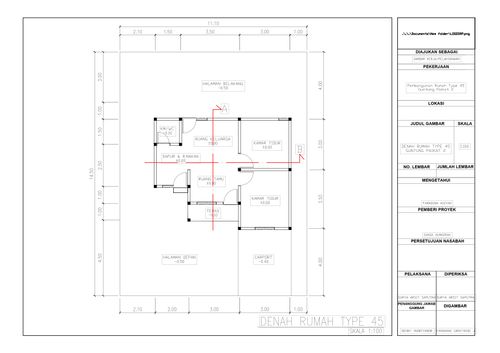
5. Tipe 45 komersil (komersil)
foto tampak rumah tipe 45 komersil perumahan Shafwah Guntung Paikat 2
foto denah rumah tipe 45 komersil perumahan Shafwah Guntung Paikat 2

Harga: Rp 375.000.000

Luas Bangunan: 45m 2

Luas Lahan: 160m 2

Kamar Tidur: 2

Kamar Mandi: 1

Spesifikasi Teknis

a. Atap
Minimalis

b. Dinding
Batako

c. Lantai & Pondasi
Keramik & Batu Gunung

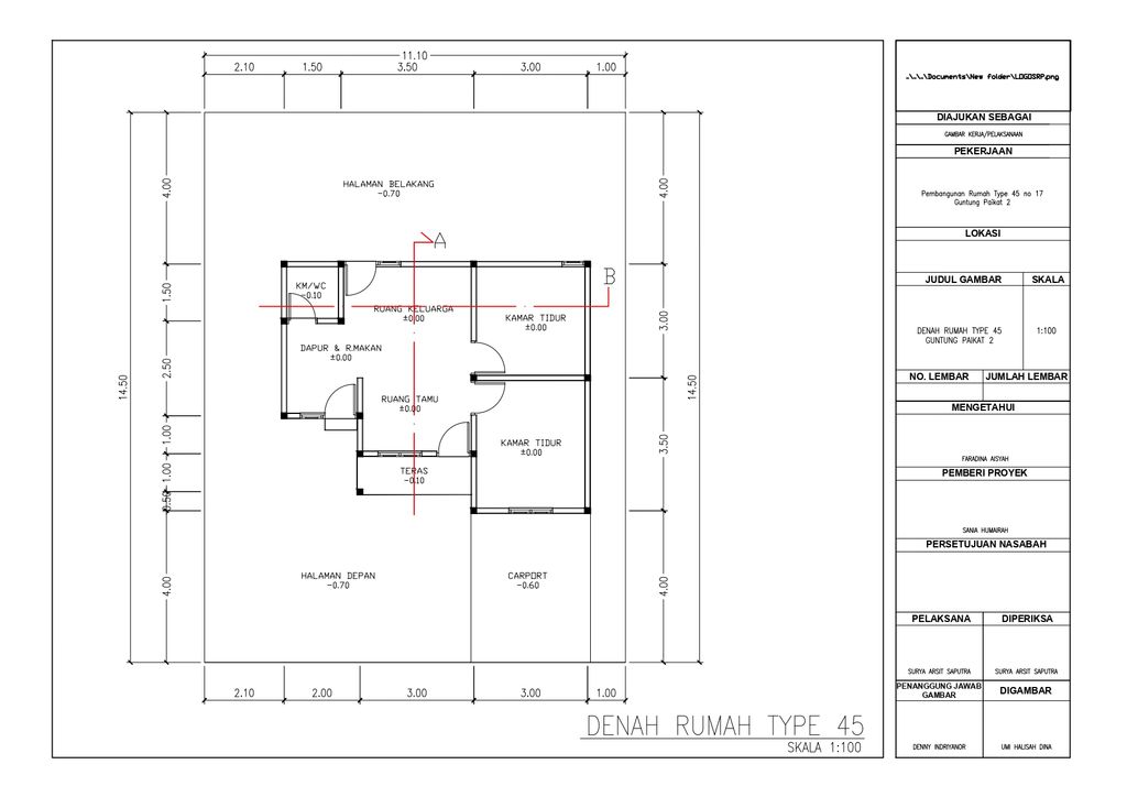
6. Tipe KOMERSIL III (komersil)
foto tampak rumah tipe KOMERSIL III perumahan Shafwah Guntung Paikat 2
foto denah rumah tipe KOMERSIL III perumahan Shafwah Guntung Paikat 2

Harga: Rp 350.000.000

Luas Bangunan: 45m 2

Luas Lahan: 160m 2

Kamar Tidur: 2

Kamar Mandi: 1

Spesifikasi Teknis

a. Atap
MINIMALIS

b. Dinding
BATAKO

c. Lantai & Pondasi
GRANIT & BATU GUNUNG

7. Tipe KOMERSIL IV (komersil)
foto tampak rumah tipe KOMERSIL IV perumahan Shafwah Guntung Paikat 2
foto denah rumah tipe KOMERSIL IV perumahan Shafwah Guntung Paikat 2

Harga: Rp 425.000.000

Luas Bangunan: 160m 2

Luas Lahan: 45m 2

Kamar Tidur: 2

Kamar Mandi: 1

Spesifikasi Teknis

a. Atap
MINIMALIS

b. Dinding
BATAKO

c. Lantai & Pondasi
GRANIT & BATU GUNUNG


Peta Lokasi


Kantor Pemasaran

Jl. Trikora, Shafwah Business Center Ruko Banjarbaru, Kalimantan Selatan no. 10 KALIMANTAN SELATAN, KOTA BANJARBARU, Banjarbaru Selatan, Kemuning

Telp : 05116749537

Email : shafwahroyal21@gmail.com

Website :