ID Lokasi : BJB0610032025T010
KALIMANTAN SELATAN, KOTA BANJARBARU, Liang Anggang, Landasan Ulin Utara
PT DWI PUTRA SULUNG
REAL ESTATE INDONESIA
(REI)
Subsidi : 44 Unit
Terjual Subsidi : 42 Unit
Komersil : 0 Unit
Terjual Komersil : 0 Unit
Lihat Siteplan Digital




Harga: Rp 182.000.000
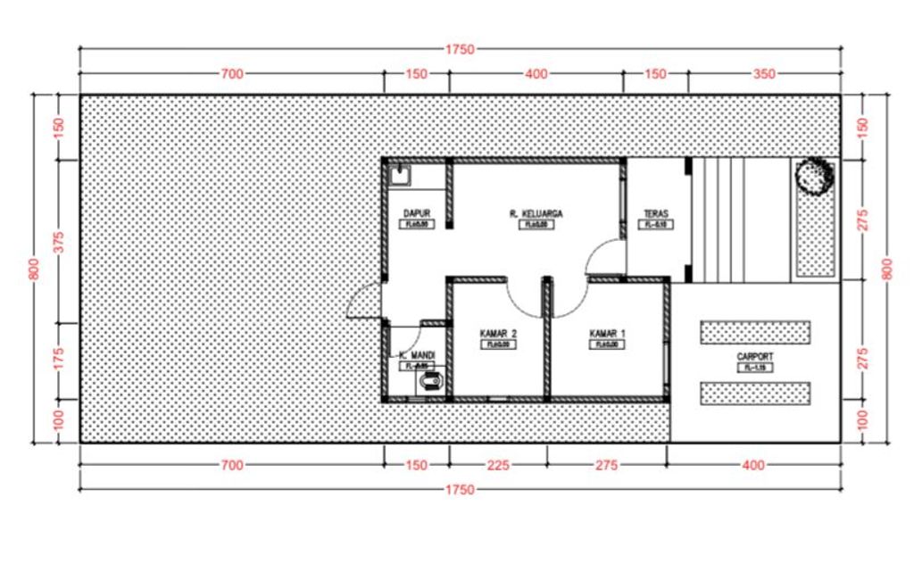
Luas Bangunan: 36m 2
Luas Lahan: 140m 2
Kamar Tidur: 2
Kamar Mandi: 1
a. Atap
Multiroof
b. Dinding
Batako, Plaster , Cat
c. Lantai & Pondasi
keramik & Batu Gunung