ADZMA AZMI RESIDANCE

ID Lokasi : BJB0610042020T003
KALIMANTAN SELATAN, KOTA BANJARBARU, Liang Anggang, Landasan Ulin Selatan
PT. ADZMA ARRY
REAL ESTATE INDONESIA (REI)


Status Rumah

Subsidi : 68 Unit

Terjual Subsidi : 20 Unit

Komersil : 1 Unit

Terjual Komersil : 0 Unit

Lihat Siteplan Digital

Peta Lokasi



Kantor Pemasaran

Jl. Sultan Adam Komplek Mandiri Permai no. 37 KALIMANTAN SELATAN, KOTA BANJARBARU, Liang Anggang, Landasan Ulin Selatan

Telp : 081293717768

Email : pt.adzmaarry@gmail.com

Website :

Foto Lokasi


foto gerbang perumahan ADZMA AZMI RESIDANCE
Foto Gerbang/Jalan Utama
foto contoh rumah perumahan ADZMA AZMI RESIDANCE
Foto Rumah Contoh
foto posisi tengah perumahan ADZMA AZMI RESIDANCE
Foto Posisi Tengah Lokasi

Tipe Rumah


1. Tipe Subsidi Baru (subsidi)
foto tampak rumah tipe Subsidi Baru perumahan ADZMA AZMI RESIDANCE
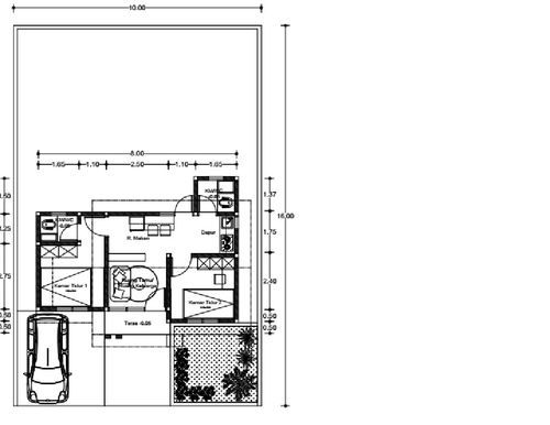
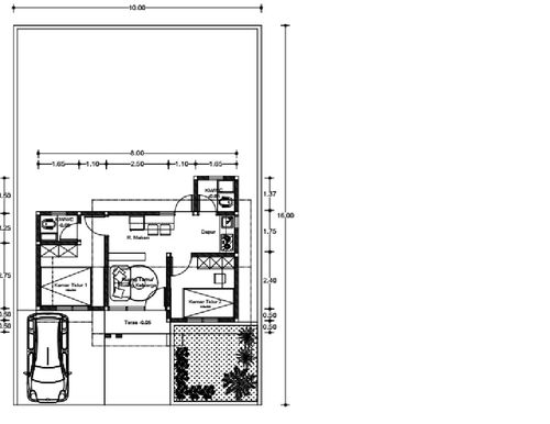
foto denah rumah tipe Subsidi Baru perumahan ADZMA AZMI RESIDANCE

Harga: Rp 164.500.000

Luas Bangunan: 36m 2

Luas Lahan: 160m 2

Kamar Tidur: 2

Kamar Mandi: 1

Spesifikasi Teknis

a. Atap
taso multirup

b. Dinding
batako

c. Lantai & Pondasi
keramik & batu gunung

2. Tipe Subsidi (subsidi)
foto tampak rumah tipe Subsidi perumahan ADZMA AZMI RESIDANCE
foto denah rumah tipe Subsidi perumahan ADZMA AZMI RESIDANCE

Harga: Rp 154.000.000

Luas Bangunan: 36m 2

Luas Lahan: 160m 2

Kamar Tidur: 2

Kamar Mandi: 1

Spesifikasi Teknis

a. Atap
taso multirup

b. Dinding
batako

c. Lantai & Pondasi
keramik & batu gunung


Peta Lokasi


Kantor Pemasaran

Jl. Sultan Adam Komplek Mandiri Permai no. 37 KALIMANTAN SELATAN, KOTA BANJARBARU, Liang Anggang, Landasan Ulin Selatan

Telp : 081293717768

Email : pt.adzmaarry@gmail.com

Website :