ID Lokasi : BJM0410102024T002
KALIMANTAN SELATAN, KOTA BANJARMASIN, Banjarmasin Utara, Sungai Andai
PT LABUAN MAS JAYA
ALIANSI PENGEMBANG PERUMAHAN NASIONAL JAYA
(APPERNAS JAYA)
Subsidi : 21 Unit
Terjual Subsidi : 69 Unit
Komersil : 2 Unit
Terjual Komersil : 0 Unit
Lihat Siteplan Digital




Harga: Rp 177.000.000
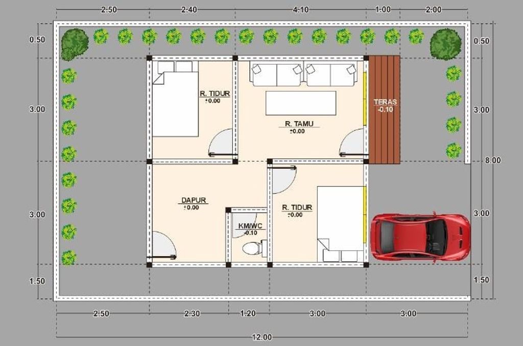
Luas Bangunan: 36m 2
Luas Lahan: 96m 2
Kamar Tidur: 2
Kamar Mandi: 1
a. Atap
Atap Metal Pasir
b. Dinding
Bata diplester dan dicat
c. Lantai & Pondasi
kayu ulin dicor dikeramik & cerucuk galam tongkat ulin


Harga: Rp 182.000.000
Luas Bangunan: 36m 2
Luas Lahan: 96m 2
Kamar Tidur: 2
Kamar Mandi: 1
a. Atap
Atap Metal Rangka Kayu Meranti
b. Dinding
Bata di plester semen, acian, plamir dan cat
c. Lantai & Pondasi
keramik & galam cerucuk panjang 4 dan tongkat ulin 10/10