ID Lokasi : BJM0410102025T007
KALIMANTAN SELATAN, KOTA BANJARMASIN, Banjarmasin Utara, Sungai Andai
PT GRAHA GRIYA AGUNG
REAL ESTATE INDONESIA
(REI)
Subsidi : 28 Unit
Terjual Subsidi : 11 Unit
Komersil : 0 Unit
Terjual Komersil : 0 Unit
Lihat Siteplan DigitalJl. Lingkar Dalam Selatan Komp. Mahatama Regency no. 1 KALIMANTAN SELATAN, KOTA BANJARMASIN, Banjarmasin Selatan, Tanjung Pagar
Telp : 08115122281
Email : ptgrahagriyaagung@gmail.com
Website : www.mahatama.co.id




Harga: Rp 182.000.000
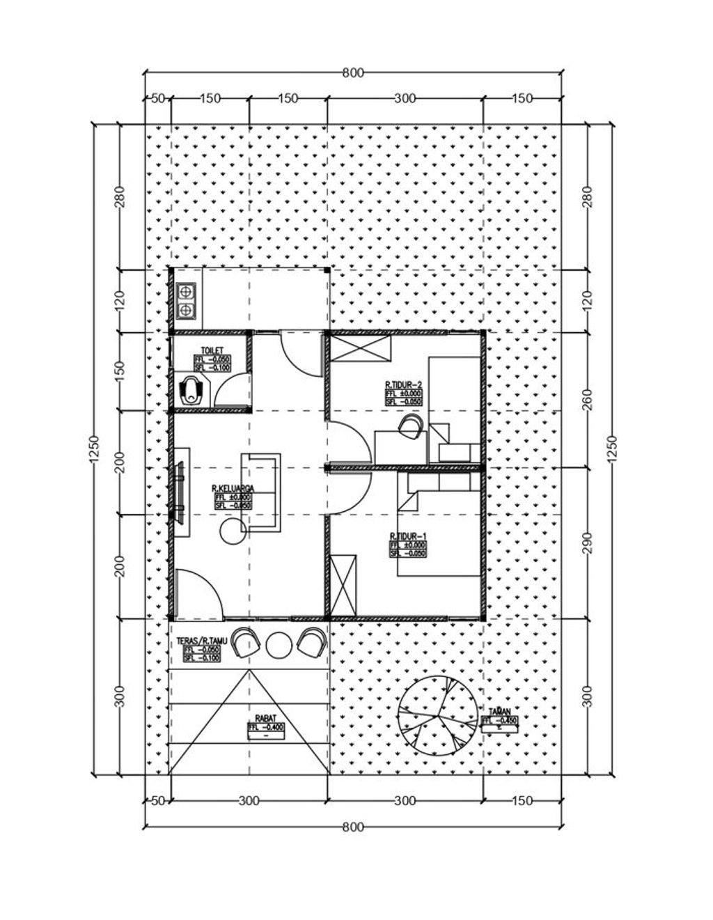
Luas Bangunan: 36m 2
Luas Lahan: 100m 2
Kamar Tidur: 2
Kamar Mandi: 1
a. Atap
Rangka Atap Baja Ringan, Penutup Atap Genteng Metal
b. Dinding
Bata Ringan di plester, di aci dan di cat
c. Lantai & Pondasi
Keramik 40x40 & Cerucuk 4 m, Ulin 10/10 2 m

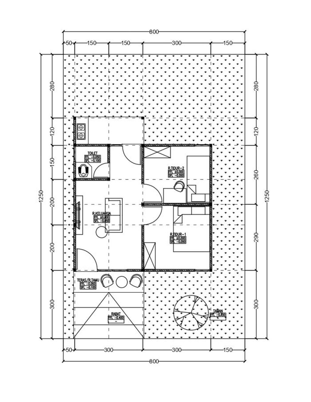
Harga: Rp 182.000.000
Luas Bangunan: 36m 2
Luas Lahan: 100m 2
Kamar Tidur: 2
Kamar Mandi: 1
a. Atap
Rangka Atap Baja Ringan, Penutup Atap Genteng Metal
b. Dinding
Rangka Atap Baja Ringan, Penutup Atap Genteng Metal
c. Lantai & Pondasi
Keramik 40x40 & Cerucuk 4 m, Ulin 10/10 2 m
Jl. Lingkar Dalam Selatan Komp. Mahatama Regency no. 1 KALIMANTAN SELATAN, KOTA BANJARMASIN, Banjarmasin Selatan, Tanjung Pagar
Telp : 08115122281
Email : ptgrahagriyaagung@gmail.com
Website : www.mahatama.co.id