ID Lokasi : BJR0210012023T001
JAWA BARAT, KOTA BANJAR, Pataruman, Hegarsari
PT JUXTA INDO PROPERTI
ASOSIASI PENGEMBANG RUMAH SEDERHANA SEHAT NASIONAL
(APERNAS)
Subsidi : 6 Unit
Terjual Subsidi : 34 Unit
Komersil : 0 Unit
Terjual Komersil : 0 Unit
Lihat Siteplan Digital




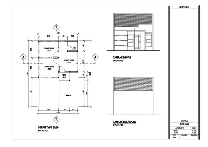
Harga: Rp 162.000.000
Luas Bangunan: 30m 2
Luas Lahan: 60m 2
Kamar Tidur: 2
Kamar Mandi: 1
a. Atap
Genteng Beton
b. Dinding
Bata Merah Plester + Aci + Dicat
c. Lantai & Pondasi
Keramik 40x40 & Footplate / Tapak


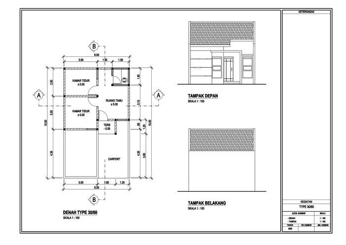
Harga: Rp 162.000.000
Luas Bangunan: 30m 2
Luas Lahan: 72m 2
Kamar Tidur: 2
Kamar Mandi: 1
a. Atap
Genteng Beton + Rangka Baja Ringan
b. Dinding
Bata Merah Plester Aci + Dicat
c. Lantai & Pondasi
Keramik 40x40 & Footplate


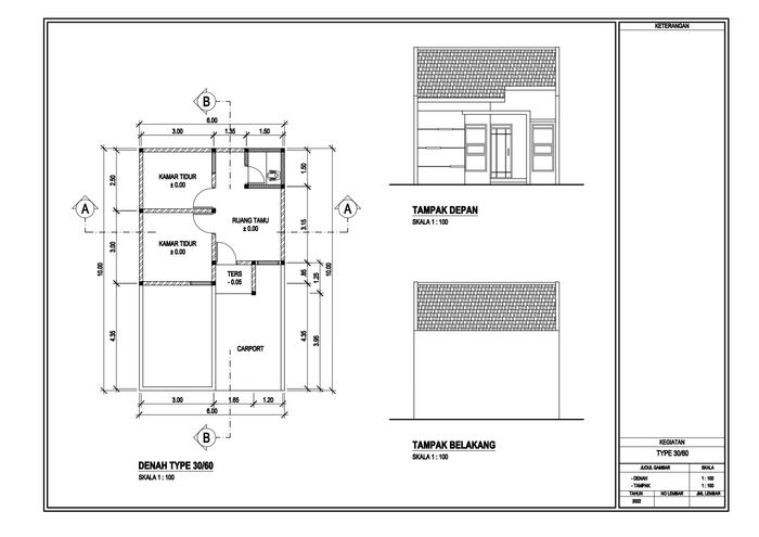
Harga: Rp 162.000.000
Luas Bangunan: 30m 2
Luas Lahan: 90m 2
Kamar Tidur: 2
Kamar Mandi: 1
a. Atap
Genteng Beton + Rangka Baja Ringan
b. Dinding
Bata Merah Plester Aci + Dicat
c. Lantai & Pondasi
Keramik 40x40 & Footplate