ID Lokasi : BJR0210012024T001
JAWA BARAT, KOTA BANJAR, Pataruman, Hegarsari
PT JUXTA INDO PROPERTI
ASOSIASI PENGEMBANG RUMAH SEDERHANA SEHAT NASIONAL
(APERNAS)
Subsidi : 31 Unit
Terjual Subsidi : 13 Unit
Komersil : 1 Unit
Terjual Komersil : 0 Unit
Lihat Siteplan Digital




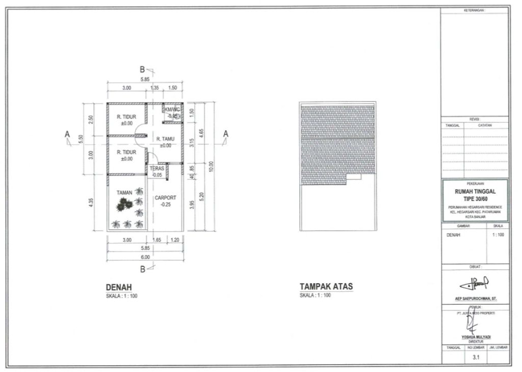
Harga: Rp 166.000.000
Luas Bangunan: 30m 2
Luas Lahan: 60m 2
Kamar Tidur: 2
Kamar Mandi: 1
a. Atap
Genteng Beton
b. Dinding
Bata Merah
c. Lantai & Pondasi
Keramik 40x40 & Footplate


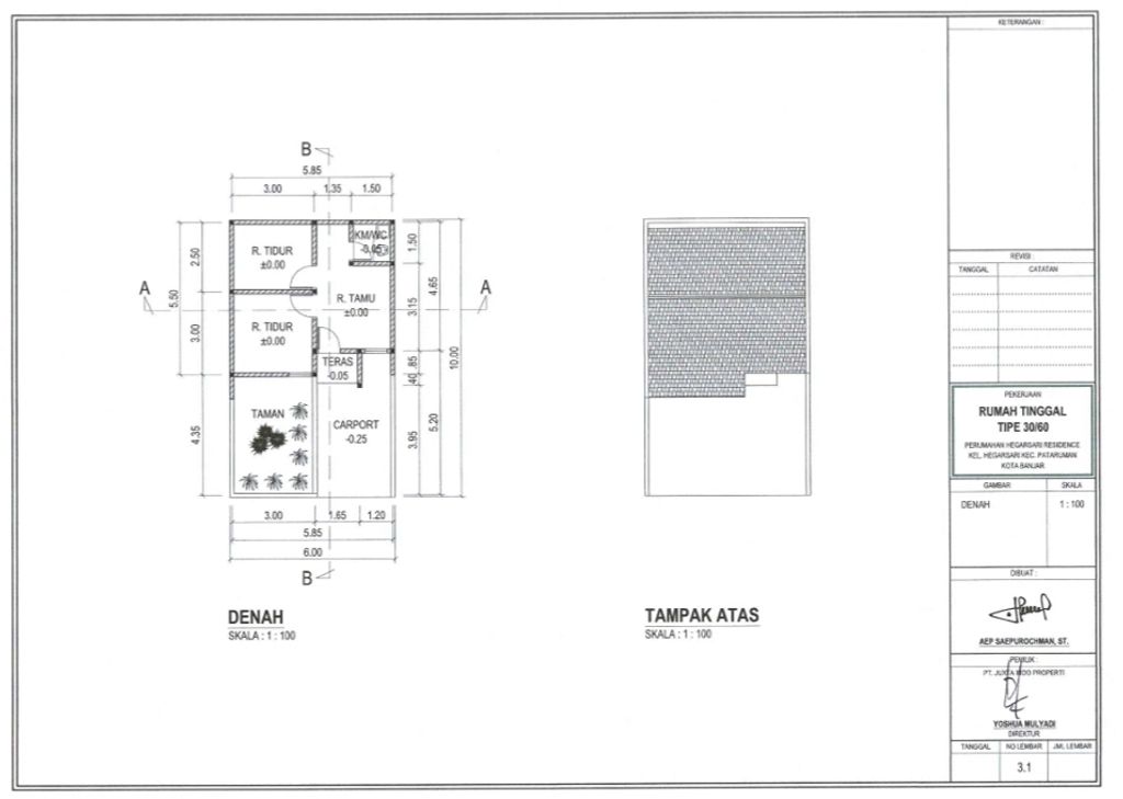
Harga: Rp 166.000.000
Luas Bangunan: 30m 2
Luas Lahan: 72m 2
Kamar Tidur: 2
Kamar Mandi: 1
a. Atap
Genteng Beton
b. Dinding
Bata Merah
c. Lantai & Pondasi
Keramik 40x40 & Footplate


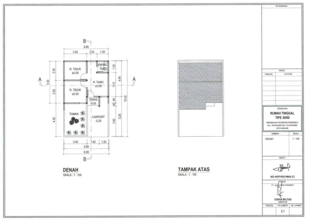
Harga: Rp 448.000.000
Luas Bangunan: 30m 2
Luas Lahan: 200m 2
Kamar Tidur: 2
Kamar Mandi: 1
a. Atap
Genteng Beton
b. Dinding
Bata Merah
c. Lantai & Pondasi
Keramik 40x40 & Footplate


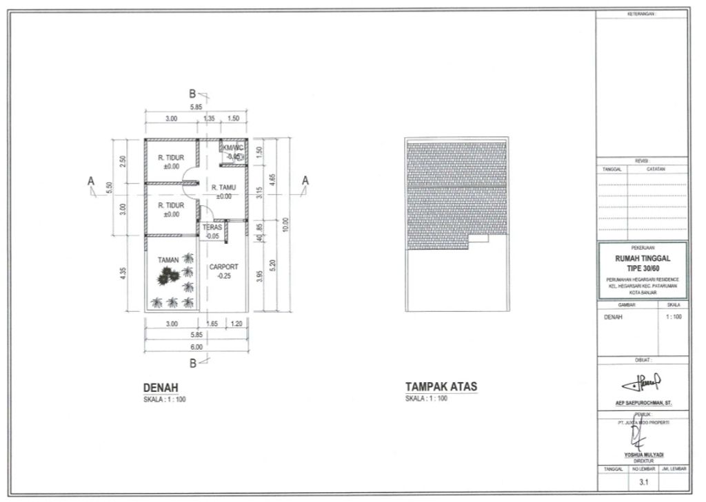
Harga: Rp 166.000.000
Luas Bangunan: 30m 2
Luas Lahan: 90m 2
Kamar Tidur: 1
Kamar Mandi: 1
a. Atap
Genteng Beton
b. Dinding
Bata Merah
c. Lantai & Pondasi
Keramik 40x40 & Footplate