ID Lokasi : BKL0420062022T001
JAWA TIMUR, KAB BANGKALAN, Kamal, Telang
PT BUMI LINGGA MADURA
PERKUMPULAN ASOSIASI PENGEMBANG PERUMAHAN DAN PERMUKIMAN SELURUH INDONESIA
(APERSI)
Subsidi : 2 Unit
Terjual Subsidi : 21 Unit
Komersil : 29 Unit
Terjual Komersil : 58 Unit
Lihat Siteplan DigitalReka Village no. A1 JAWA TIMUR, KAB BANGKALAN, Kamal, Telang
Telp : +62 811-3496-868
Email : bumilinggamadura@gmail.com
Website : https://blmproperty.id/





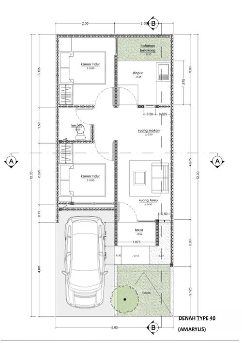
Harga: Rp 500.000.000
Luas Bangunan: 46m 2
Luas Lahan: 84m 2
Kamar Tidur: 2
Kamar Mandi: 2
a. Atap
Rangka Atatp Baja Rngan
Genteng Beton
b. Dinding
Bata Interlock
c. Lantai & Pondasi
Granit 60 x 60 & Pondasi Setempat 80x80 dan Strauss Pile


Harga: Rp 275.000.000
Luas Bangunan: 40m 2
Luas Lahan: 60m 2
Kamar Tidur: 2
Kamar Mandi: 1
a. Atap
Genteng Beton , Rangka Atap Baja Ringan
b. Dinding
Bata Interlock
c. Lantai & Pondasi
Granit 60 x 60 & Pondasi Setempat
Pondasi Batu Kumbung


Harga: Rp 150.500.000
Luas Bangunan: 30m 2
Luas Lahan: 60m 2
Kamar Tidur: 2
Kamar Mandi: 1
a. Atap
Atap Fiber semen, Rangka Atap Baja Ringan
b. Dinding
Dinding Bata Interlock
c. Lantai & Pondasi
Lantai Keramik 30 x 30 & Pondasi Batu Kumbung dan Pondasi Setempat


Harga: Rp 235.000.000
Luas Bangunan: 36m 2
Luas Lahan: 60m 2
Kamar Tidur: 2
Kamar Mandi: 1
a. Atap
Genteng Beton Flat, Rangka Atap Baja Ringan
b. Dinding
Dinding Bata Interlock
c. Lantai & Pondasi
Lantai Granit 60 x 60 & Pondasi Setempat dan Pondasi Batu Kumbung
Reka Village no. A1 JAWA TIMUR, KAB BANGKALAN, Kamal, Telang
Telp : +62 811-3496-868
Email : bumilinggamadura@gmail.com
Website : https://blmproperty.id/