GRIYA ALIFA AL-MADINA

ID Lokasi : BKN0320092020T001
RIAU, KAB KAMPAR, Tambang, Rimbo Panjang
ALIFA CITRA MULIA
REAL ESTATE INDONESIA (REI)


Status Rumah

Subsidi : 7 Unit

Terjual Subsidi : 192 Unit

Komersil : 1 Unit

Terjual Komersil : 4 Unit

Lihat Siteplan Digital

Peta Lokasi



Kantor Pemasaran

2nd Floor, Jl. Rambutan no. 9 RIAU, KOTA PEKANBARU, Marpoyan Damai, Tangkerang Barat

Telp : 0761-561626

Email : alifamulia@yahoo.com

Website :

Foto Lokasi


foto gerbang perumahan GRIYA ALIFA AL-MADINA
Foto Gerbang/Jalan Utama
foto contoh rumah perumahan GRIYA ALIFA AL-MADINA
Foto Rumah Contoh
foto posisi tengah perumahan GRIYA ALIFA AL-MADINA
Foto Posisi Tengah Lokasi

Tipe Rumah


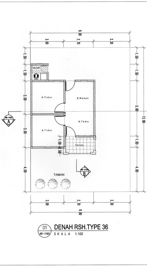
1. Tipe 36 (subsidi)
foto tampak rumah tipe 36 perumahan GRIYA ALIFA AL-MADINA
foto denah rumah tipe 36 perumahan GRIYA ALIFA AL-MADINA

Harga: Rp 130.000.000

Luas Bangunan: 36m 2

Luas Lahan: 108m 2

Kamar Tidur: 2

Kamar Mandi: 1

Spesifikasi Teknis

a. Atap
Bajaringan

b. Dinding
Bata Plaster

c. Lantai & Pondasi
Keranik & Beton Bertulang


Peta Lokasi


Kantor Pemasaran

2nd Floor, Jl. Rambutan no. 9 RIAU, KOTA PEKANBARU, Marpoyan Damai, Tangkerang Barat

Telp : 0761-561626

Email : alifamulia@yahoo.com

Website :