ID Lokasi : BKN0320092021T011
RIAU, KAB KAMPAR, Tambang, Rimbo Panjang
PT. PROPERTY HAMRA BERJAYA
REAL ESTATE INDONESIA
(REI)
Subsidi : 0 Unit
Terjual Subsidi : 35 Unit
Komersil : 0 Unit
Terjual Komersil : 0 Unit
Lihat Siteplan Digital




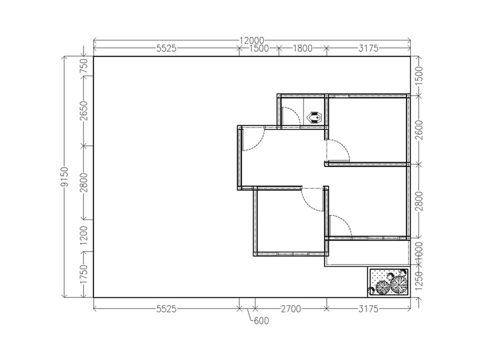
Harga: Rp 123.000.000
Luas Bangunan: 36m 2
Luas Lahan: 114m 2
Kamar Tidur: 2
Kamar Mandi: 1
a. Atap
Rangka Baja Ringan Atap Spandek Bergelombang
b. Dinding
Batubata dipleaster dan dicet
c. Lantai & Pondasi
Keramik & Pondasi cor bertulang rolak bata