ID Lokasi : BKN0620122025T006
RIAU, KAB KAMPAR, Siak Hulu, Pandau Jaya
PT PENDAWA SOLUSI KARYA
ASOSIASI PENGEMBANG RUMAH SEDERHANA SEHAT NASIONAL
(APERNAS)
Subsidi : 0 Unit
Terjual Subsidi : 16 Unit
Komersil : 0 Unit
Terjual Komersil : 0 Unit
Lihat Siteplan Digital




Harga: Rp 166.000.000
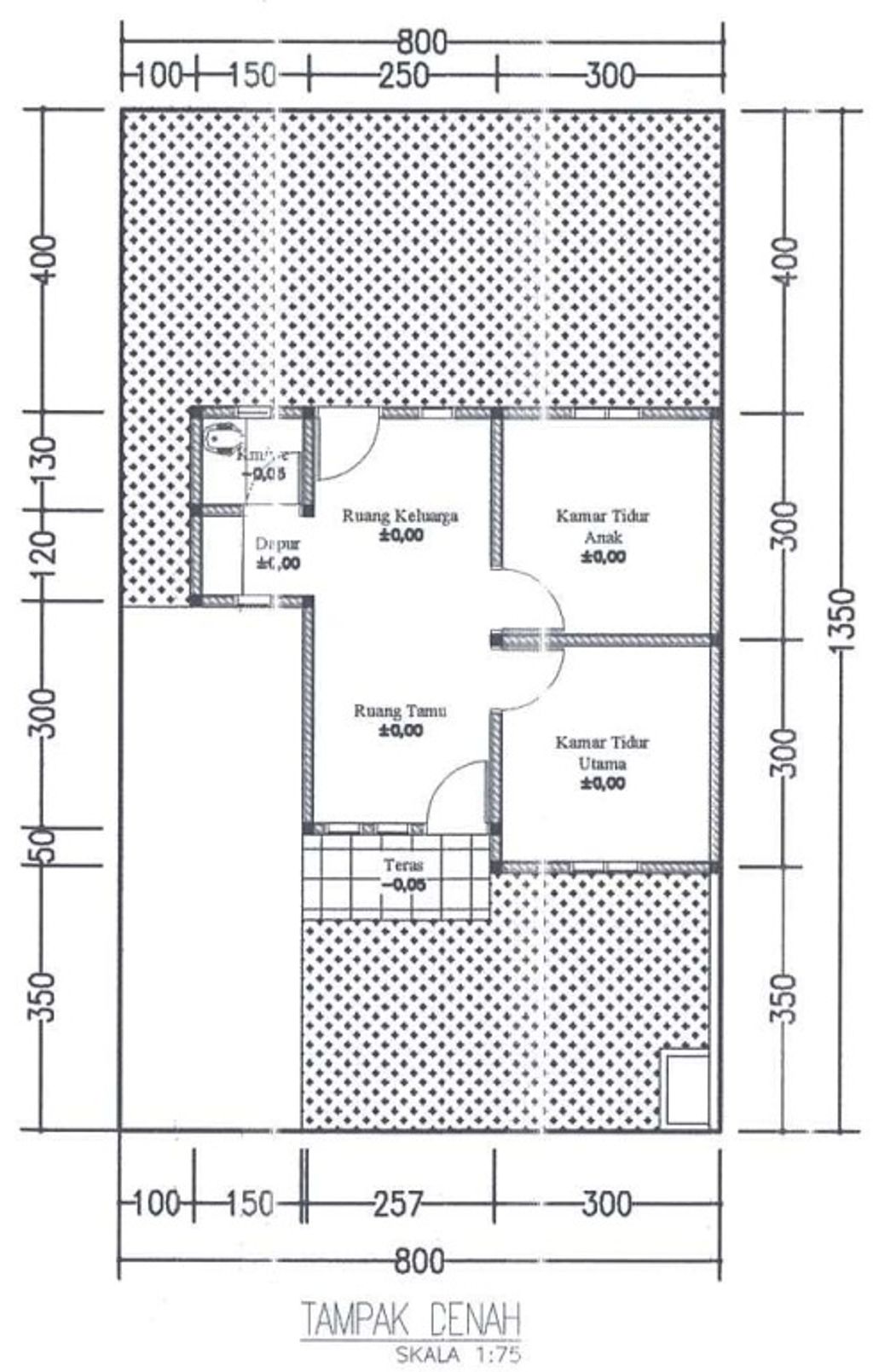
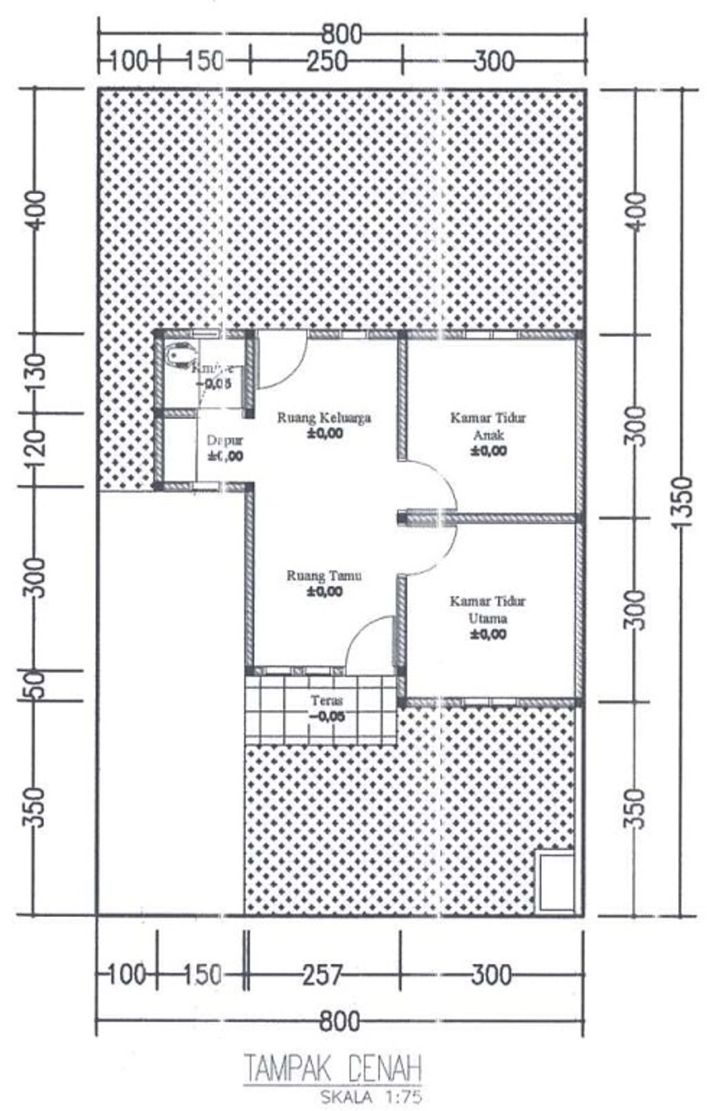
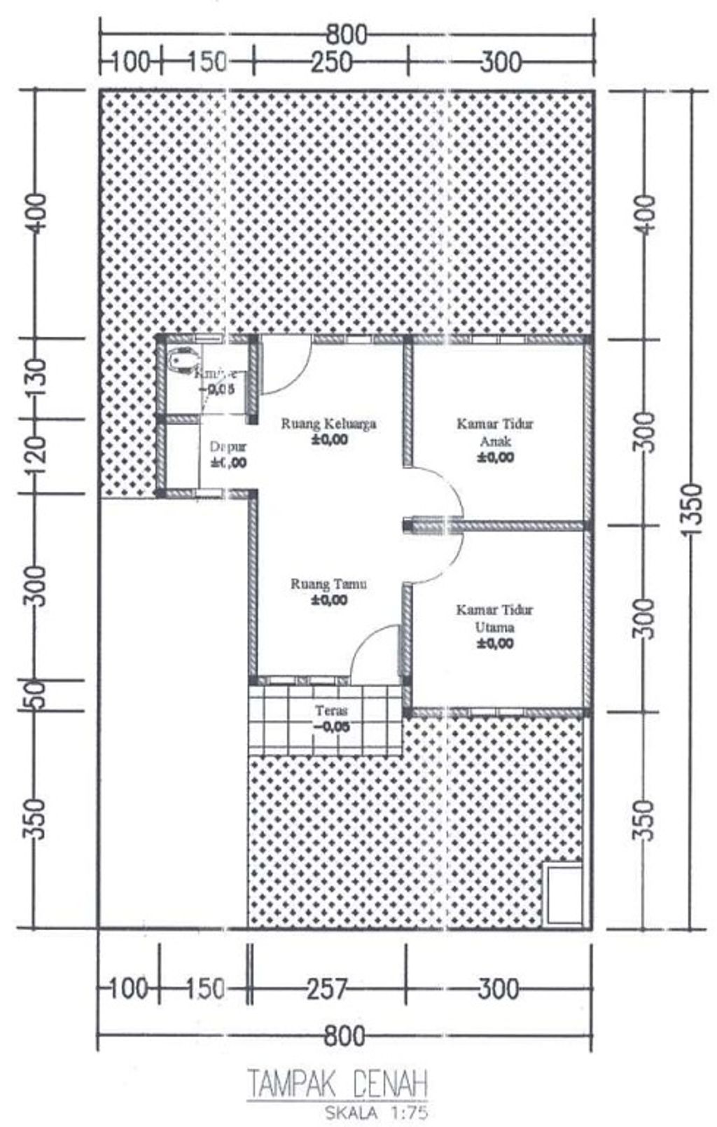
Luas Bangunan: 36m 2
Luas Lahan: 104m 2
Kamar Tidur: 2
Kamar Mandi: 1
a. Atap
Genteng Metal
b. Dinding
Plester Aci
c. Lantai & Pondasi
Keramik 40x40 & Cor Sloof


Harga: Rp 166.000.000
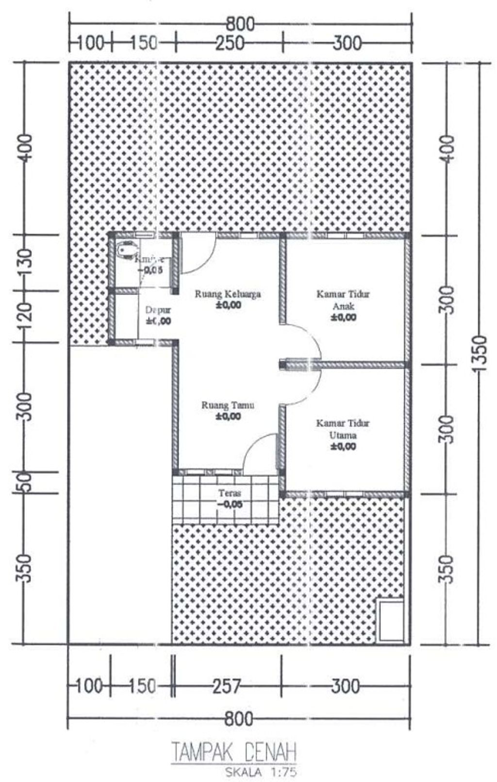
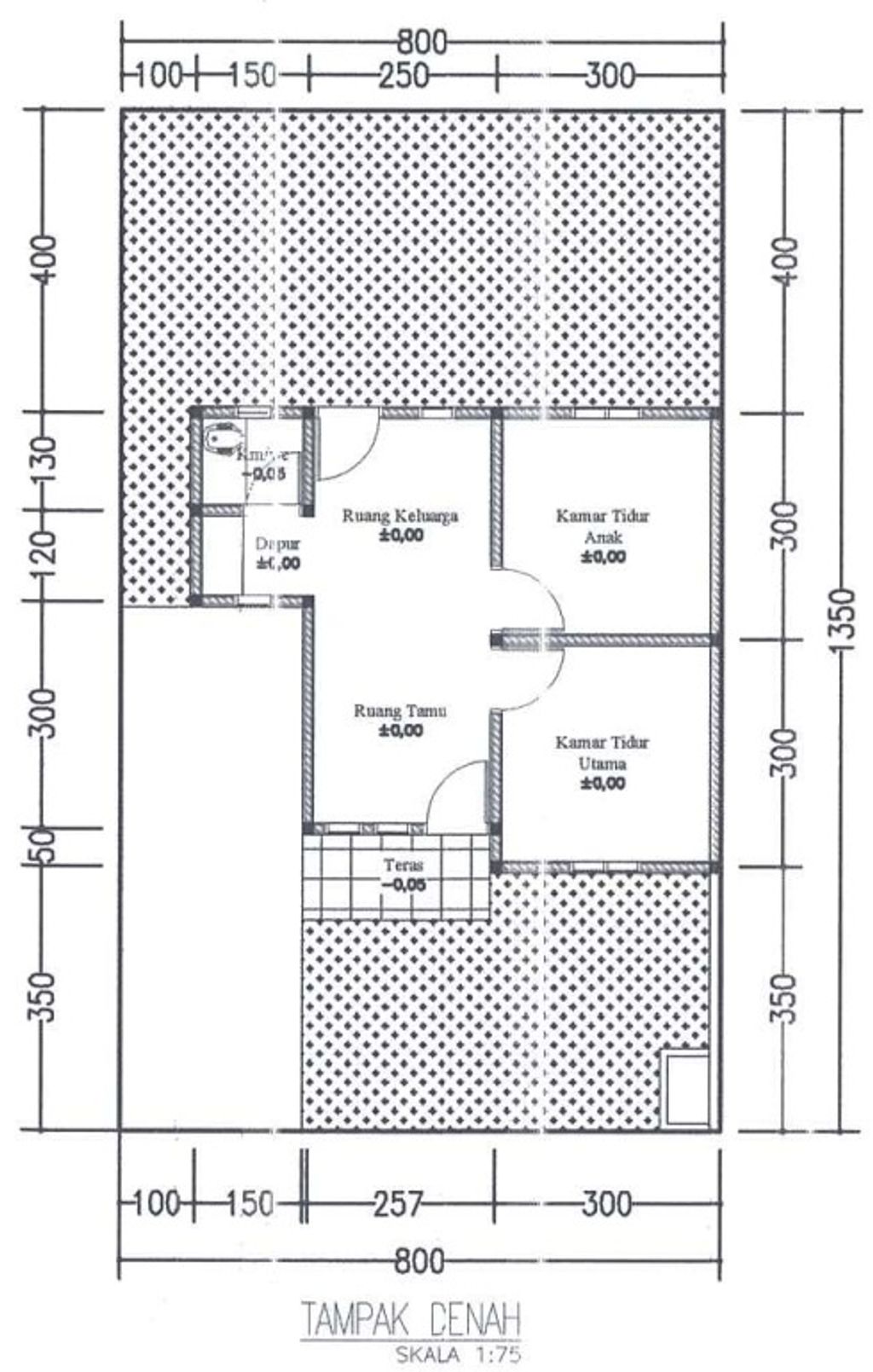
Luas Bangunan: 36m 2
Luas Lahan: 106m 2
Kamar Tidur: 2
Kamar Mandi: 1
a. Atap
Genteng Metal
b. Dinding
Plester Aci
c. Lantai & Pondasi
Keramik 40x40 & Cor Sloof


Harga: Rp 166.000.000
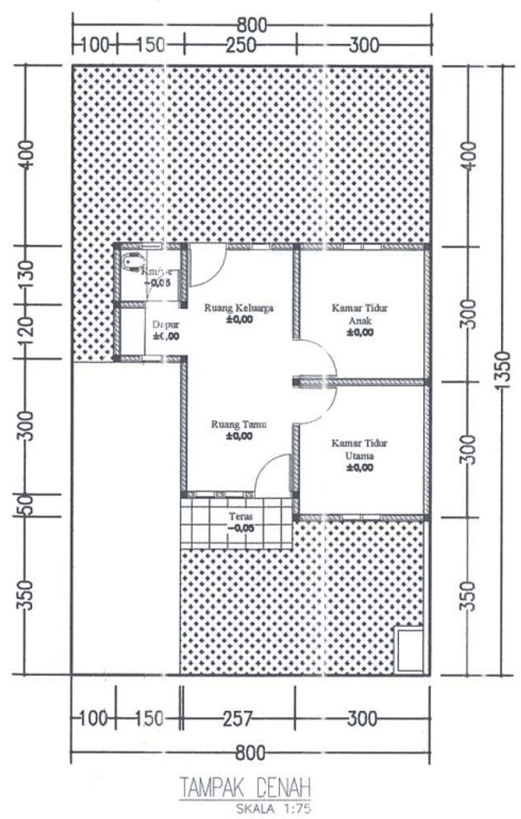
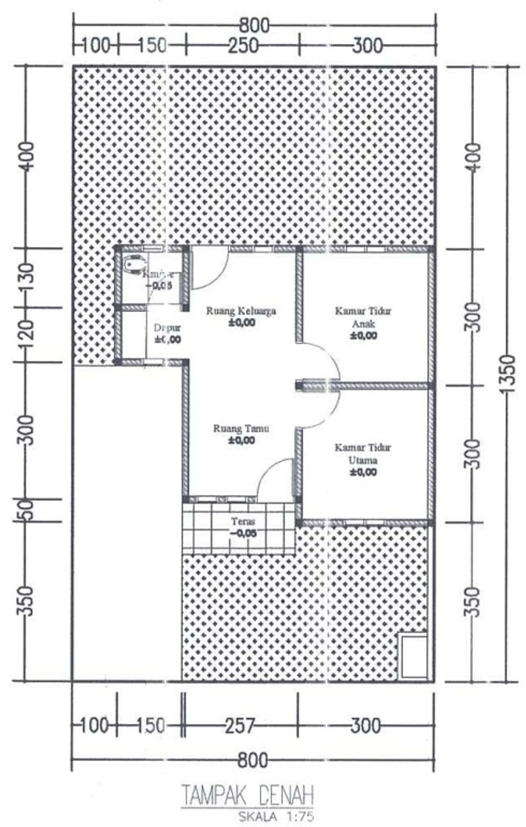
Luas Bangunan: 36m 2
Luas Lahan: 105m 2
Kamar Tidur: 2
Kamar Mandi: 1
a. Atap
Genteng Metal
b. Dinding
Plester Aci
c. Lantai & Pondasi
Keramik 40x40 & Cor Sloof


Harga: Rp 166.000.000
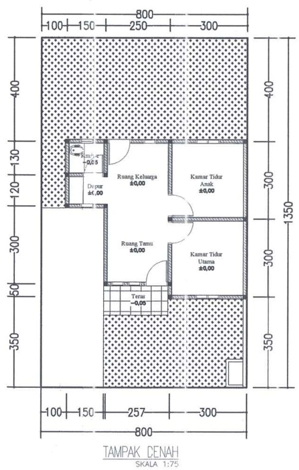
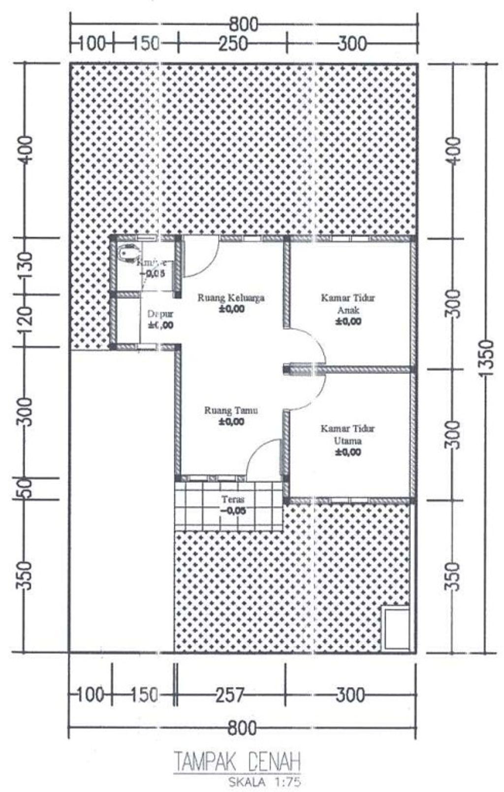
Luas Bangunan: 36m 2
Luas Lahan: 104.5m 2
Kamar Tidur: 2
Kamar Mandi: 1
a. Atap
Genteng Metal
b. Dinding
Plester Aci
c. Lantai & Pondasi
Keramik 40x40 & Cor Sloof


Harga: Rp 166.000.000
Luas Bangunan: 36m 2
Luas Lahan: 111m 2
Kamar Tidur: 2
Kamar Mandi: 1
a. Atap
Genteng Metal
b. Dinding
Plester Aci
c. Lantai & Pondasi
Keramik 40x40 & Cor Sloof


Harga: Rp 166.000.000
Luas Bangunan: 36m 2
Luas Lahan: 112m 2
Kamar Tidur: 2
Kamar Mandi: 1
a. Atap
Genteng Metal
b. Dinding
Plester Aci
c. Lantai & Pondasi
Keramik 40x40 & Cor Sloof


Harga: Rp 166.000.000
Luas Bangunan: 36m 2
Luas Lahan: 113m 2
Kamar Tidur: 2
Kamar Mandi: 1
a. Atap
Genteng Metal
b. Dinding
Plester Aci
c. Lantai & Pondasi
Keramik 40x40 & Cor Sloof


Harga: Rp 166.000.000
Luas Bangunan: 36m 2
Luas Lahan: 115m 2
Kamar Tidur: 2
Kamar Mandi: 1
a. Atap
Genteng Metal
b. Dinding
Plester Aci
c. Lantai & Pondasi
Keramik 40x40 & Cor Sloof


Harga: Rp 166.000.000
Luas Bangunan: 36m 2
Luas Lahan: 118m 2
Kamar Tidur: 2
Kamar Mandi: 1
a. Atap
Genteng Metal
b. Dinding
Plester Aci
c. Lantai & Pondasi
Keramik 40x40 & Cor Sloof