ID Lokasi : BKN0620122025T007
RIAU, KAB KAMPAR, Siak Hulu, Pandau Jaya
PT PENDAWA SOLUSI KARYA
ASOSIASI PENGEMBANG RUMAH SEDERHANA SEHAT NASIONAL
(APERNAS)
Subsidi : 19 Unit
Terjual Subsidi : 10 Unit
Komersil : 0 Unit
Terjual Komersil : 0 Unit
Lihat Siteplan Digital




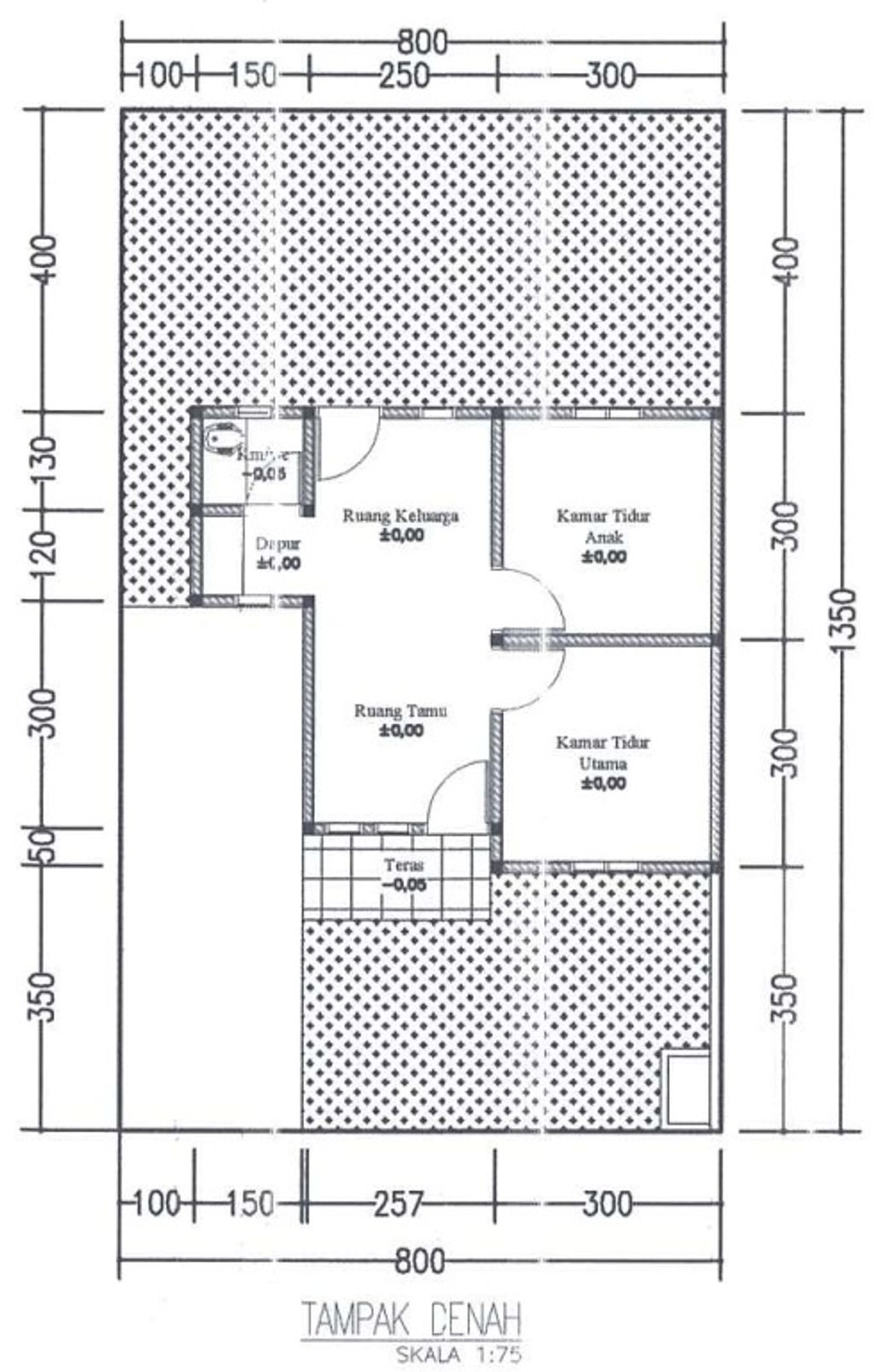
Harga: Rp 166.000.000
Luas Bangunan: 36m 2
Luas Lahan: 104m 2
Kamar Tidur: 2
Kamar Mandi: 1
a. Atap
Genteng Metal
b. Dinding
Plester Aci
c. Lantai & Pondasi
Keramik 40x40 & Cor Sloof


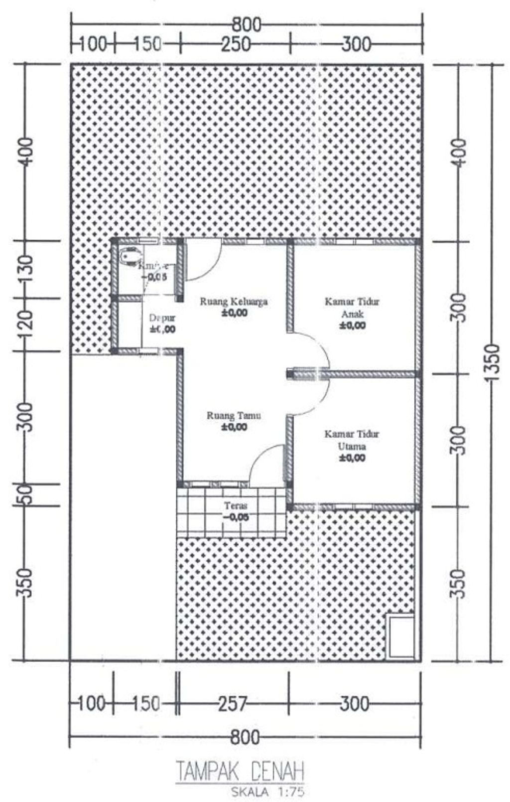
Harga: Rp 166.000.000
Luas Bangunan: 36m 2
Luas Lahan: 106.3m 2
Kamar Tidur: 2
Kamar Mandi: 1
a. Atap
Genteng Metal
b. Dinding
Plester Aci
c. Lantai & Pondasi
Keramik 40x40 & Cor Sloof


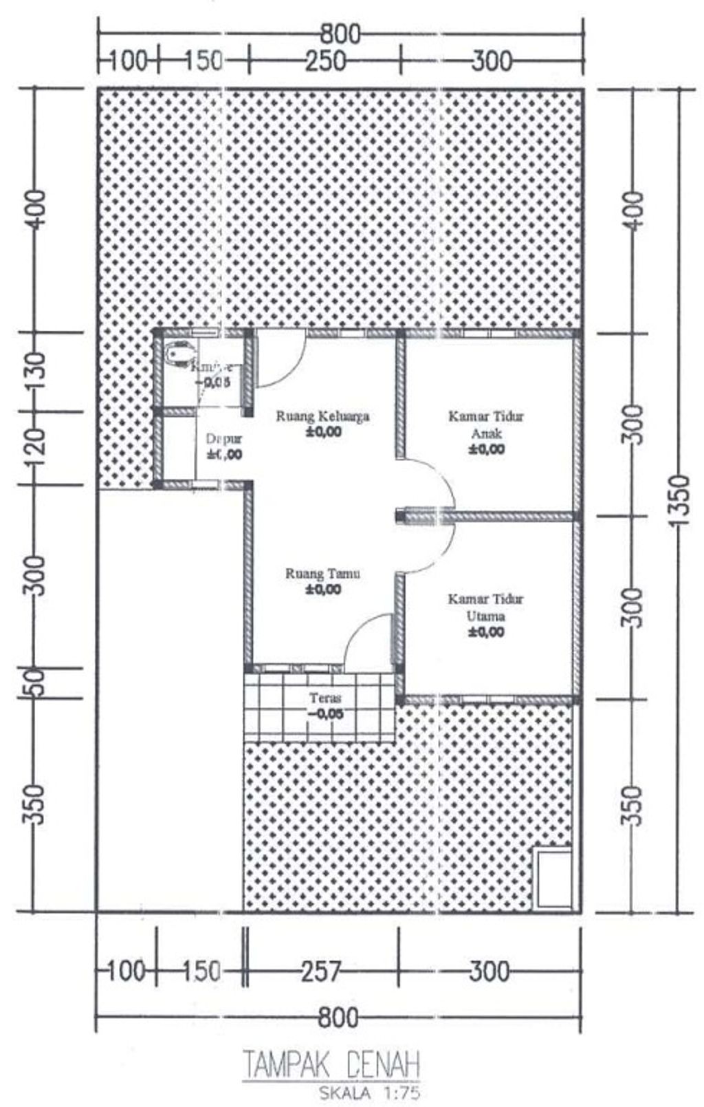
Harga: Rp 166.000.000
Luas Bangunan: 36m 2
Luas Lahan: 111.3m 2
Kamar Tidur: 2
Kamar Mandi: 1
a. Atap
Genteng Metal
b. Dinding
Plester Aci
c. Lantai & Pondasi
Keramik 40x40 & Cor Sloof


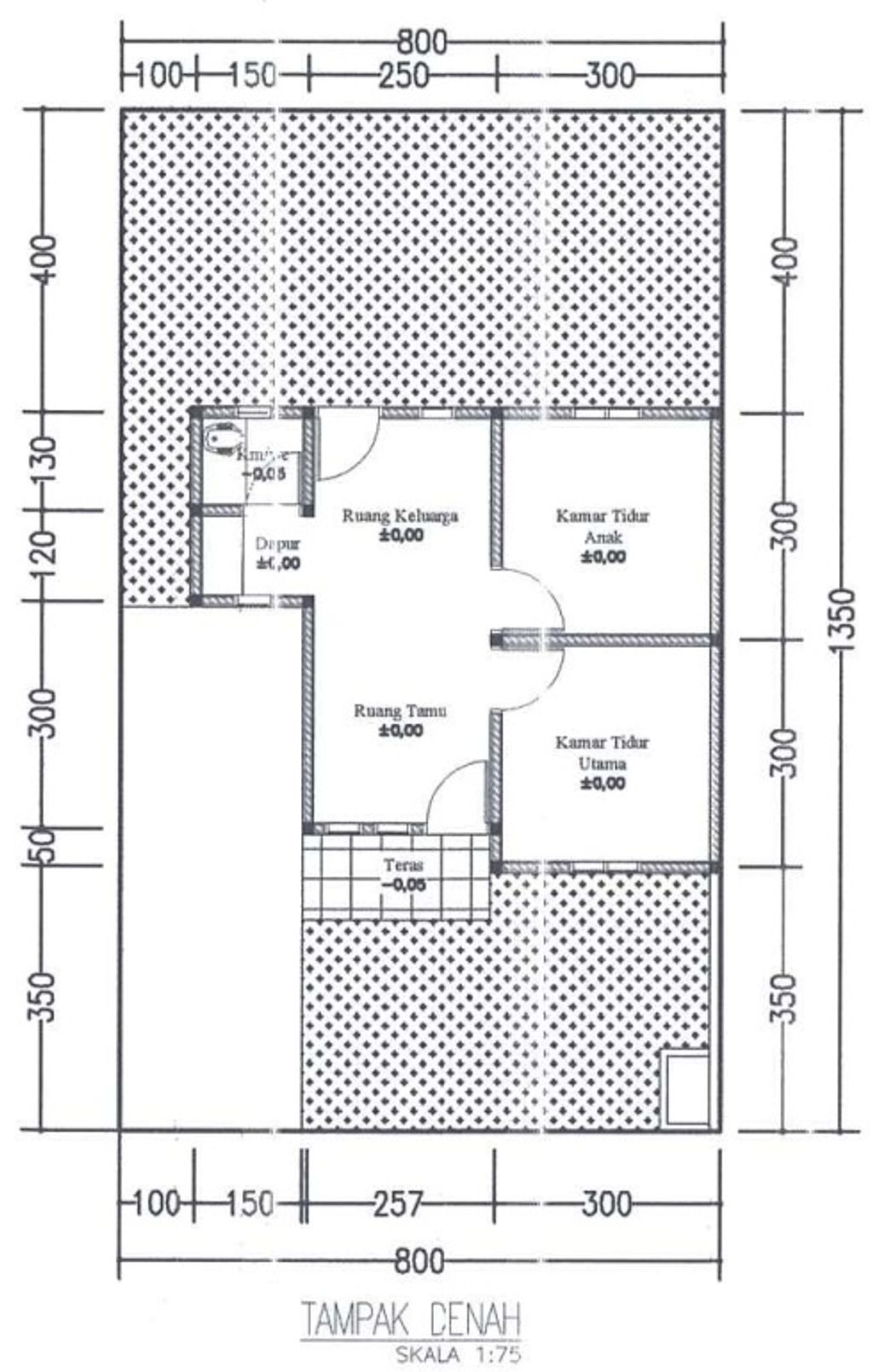
Harga: Rp 166.000.000
Luas Bangunan: 36m 2
Luas Lahan: 117.5m 2
Kamar Tidur: 2
Kamar Mandi: 1
a. Atap
Genteng Metal
b. Dinding
Plester Aci
c. Lantai & Pondasi
Keramik 40x40 & Cor Sloof