ID Lokasi : BKS1110022025T001
JAWA BARAT, KOTA BEKASI, Mustikajaya, Cimuning
BAGUS SARWO EDHY
ASOSIASI PENGEMBANG DAN PEMASAR RUMAH NASIONAL
(ASPRUMNAS)
Subsidi : 0 Unit
Terjual Subsidi : 0 Unit
Komersil : 1 Unit
Terjual Komersil : 1 Unit
Lihat Siteplan DigitalJl. Esplanade Avenue Blok BD-01 no. 28 JAWA BARAT, KAB BEKASI, Tambun Selatan, Lambangjaya
Telp : 02189090453
Email : asbalandproperty@gmail.com
Website : www.asbaland.com





Harga: Rp 400.000.000
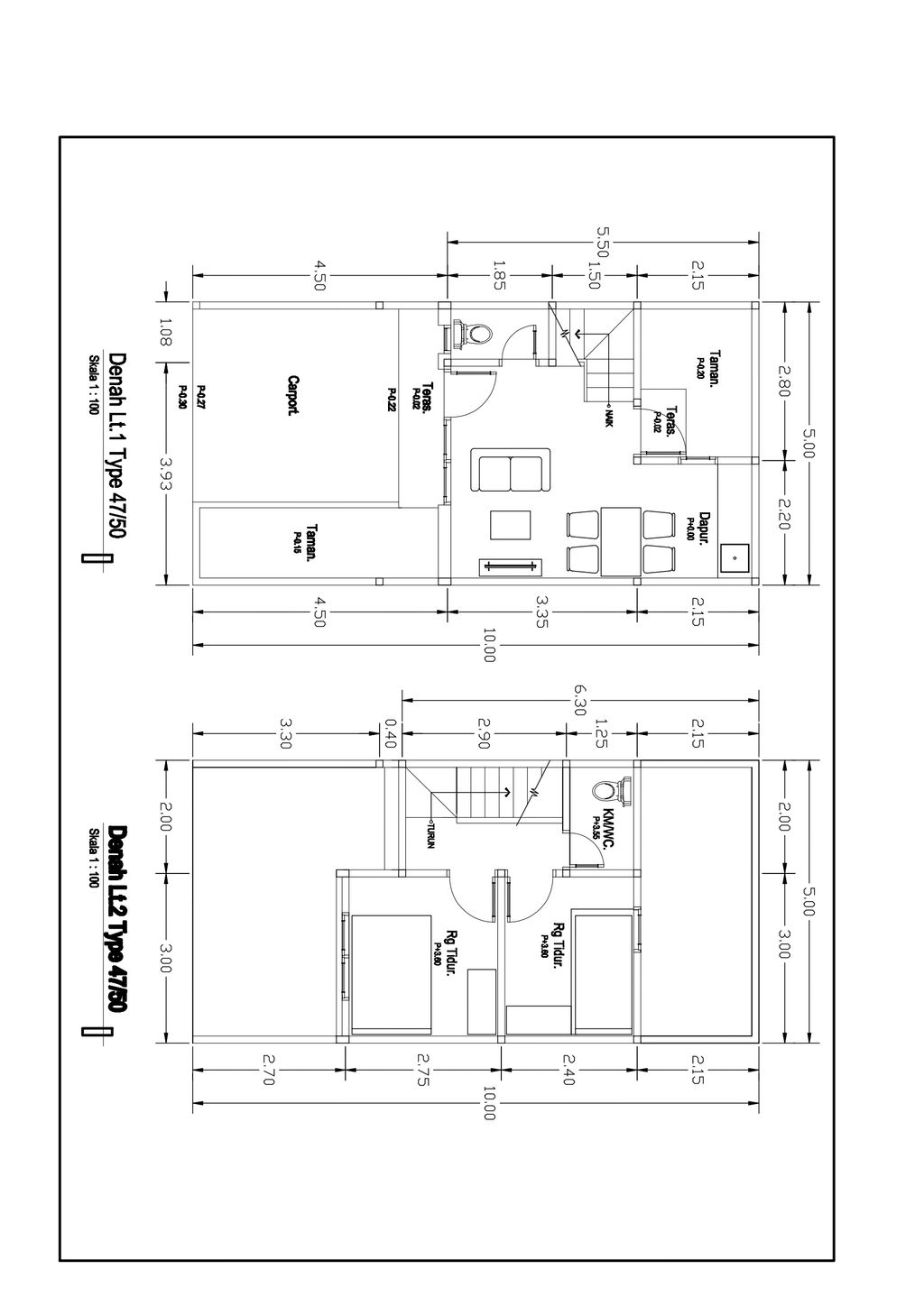
Luas Bangunan: 47m 2
Luas Lahan: 50m 2
Kamar Tidur: 2
Kamar Mandi: 1
a. Atap
Genteng Beton
b. Dinding
Hebel Plester
c. Lantai & Pondasi
Keramik 60x60 & Batu Kali


Harga: Rp 350.000.000
Luas Bangunan: 47m 2
Luas Lahan: 50m 2
Kamar Tidur: 2
Kamar Mandi: 1
a. Atap
Genteng Beton
b. Dinding
Hebel Plester
c. Lantai & Pondasi
Keramik 60x60 & Batu Kali
Jl. Esplanade Avenue Blok BD-01 no. 28 JAWA BARAT, KAB BEKASI, Tambun Selatan, Lambangjaya
Telp : 02189090453
Email : asbalandproperty@gmail.com
Website : www.asbaland.com