ID Lokasi : BKS1110022025T002
JAWA BARAT, KOTA BEKASI, Mustikajaya, Cimuning
PT PANDAWA SEJAHTERA BERSAMA PROPERTINDO
PERKUMPULAN ASOSIASI PENGEMBANG PERUMAHAN DAN PERMUKIMAN SELURUH INDONESIA
(APERSI)
Subsidi : 0 Unit
Terjual Subsidi : 0 Unit
Komersil : 38 Unit
Terjual Komersil : 0 Unit
Lihat Siteplan Digital




Harga: Rp 0
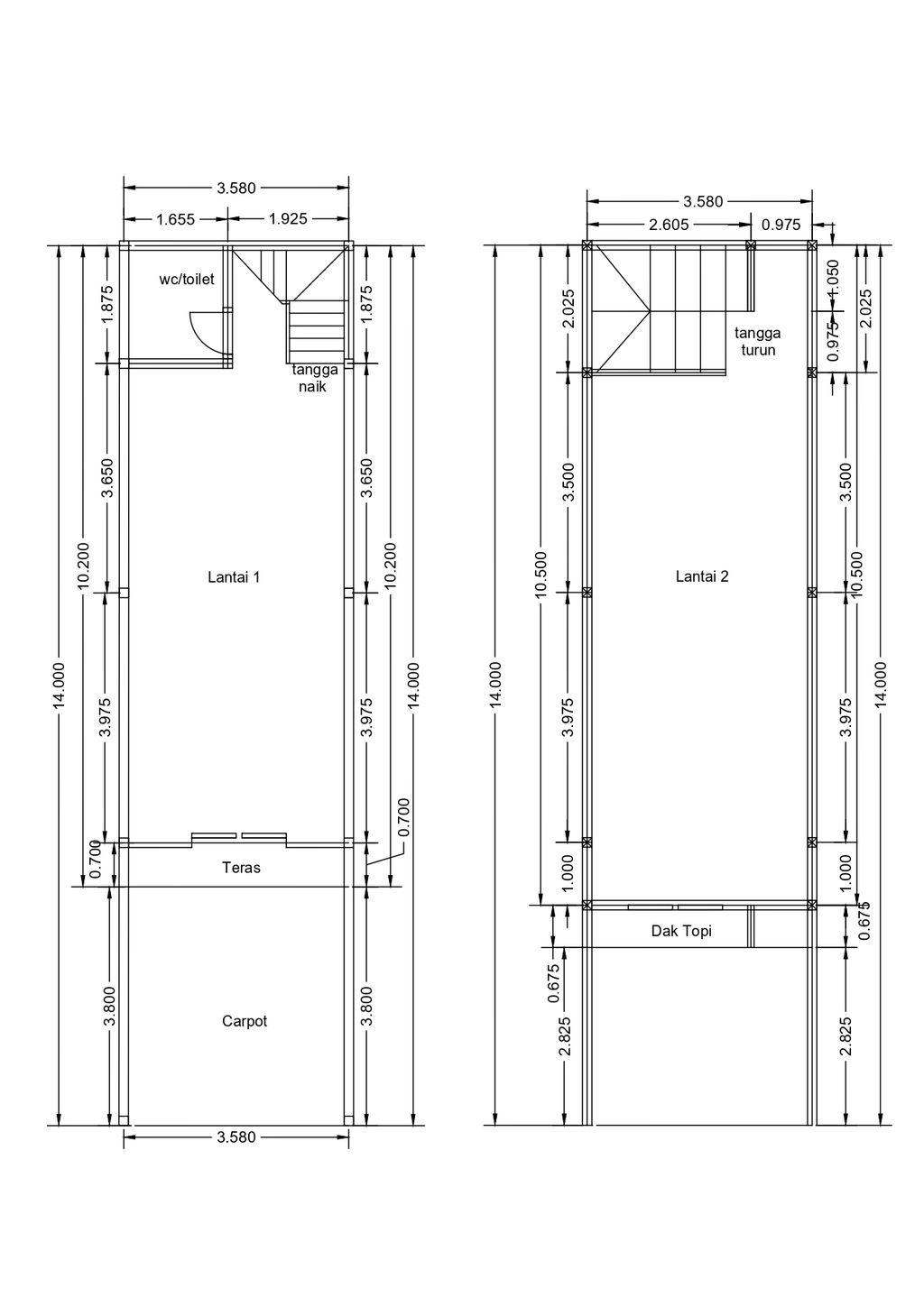
Luas Bangunan: 40m 2
Luas Lahan: 75m 2
Kamar Tidur: 2
Kamar Mandi: 1
a. Atap
Rangka Baja Ringan + Atap Metal Berpasir
b. Dinding
Dinding Herbel
c. Lantai & Pondasi
Keramik + Granit Tile & Batu Kali


Harga: Rp 0
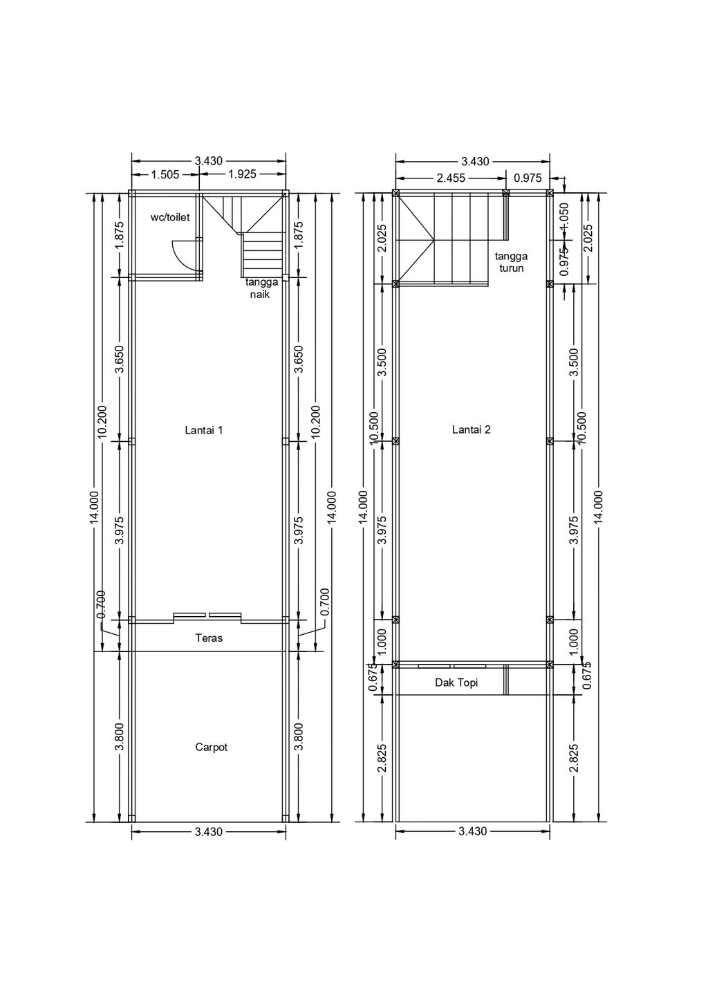
Luas Bangunan: 36m 2
Luas Lahan: 64m 2
Kamar Tidur: 2
Kamar Mandi: 1
a. Atap
Rangka Baja Ringan + Atap Metal Berpasir
b. Dinding
Dinding Herbel
c. Lantai & Pondasi
Keramik + Granit Tile & Batu Kali


Harga: Rp 0
Luas Bangunan: 36m 2
Luas Lahan: 67m 2
Kamar Tidur: 2
Kamar Mandi: 1
a. Atap
Rangka Baja Ringan + Atap Metal Berpasir
b. Dinding
Dinding Herbel
c. Lantai & Pondasi
Keramik + Granit Tile & Batu Kali


Harga: Rp 0
Luas Bangunan: 36m 2
Luas Lahan: 65m 2
Kamar Tidur: 2
Kamar Mandi: 1
a. Atap
Rangka Baja Ringan + Atap Metal Berpasir
b. Dinding
Dinding Herbel
c. Lantai & Pondasi
Keramik + Granit Tile & Batu Kali


Harga: Rp 0
Luas Bangunan: 36m 2
Luas Lahan: 66m 2
Kamar Tidur: 2
Kamar Mandi: 1
a. Atap
Rangka Baja Ringan + Atap Metal Berpasir
b. Dinding
Dinding Herbel
c. Lantai & Pondasi
Keramik + Granit Tile & Batu Kali


Harga: Rp 0
Luas Bangunan: 40m 2
Luas Lahan: 81m 2
Kamar Tidur: 2
Kamar Mandi: 1
a. Atap
Rangka Baja Ringan + Atap Metal Berpasir
b. Dinding
Dinding Herbel
c. Lantai & Pondasi
Keramik + Granit Tile & Batu Kali


Harga: Rp 0
Luas Bangunan: 36m 2
Luas Lahan: 60m 2
Kamar Tidur: 2
Kamar Mandi: 1
a. Atap
Rangka Baja Ringan + Atap Metal Berpasir
b. Dinding
Dinding Herbel
c. Lantai & Pondasi
Keramik + Granit Tile & Batu Kali


Harga: Rp 0
Luas Bangunan: 36m 2
Luas Lahan: 61m 2
Kamar Tidur: 2
Kamar Mandi: 1
a. Atap
Rangka Baja Ringan + Atap Metal Berpasir
b. Dinding
Dinding Herbel
c. Lantai & Pondasi
Keramik + Granit Tile & Batu Kali


Harga: Rp 0
Luas Bangunan: 36m 2
Luas Lahan: 62m 2
Kamar Tidur: 2
Kamar Mandi: 1
a. Atap
Rangka Baja Ringan + Atap Metal Berpasir
b. Dinding
Dinding Herbel
c. Lantai & Pondasi
Keramik + Granit Tile & Batu Kali


Harga: Rp 0
Luas Bangunan: 40m 2
Luas Lahan: 87m 2
Kamar Tidur: 2
Kamar Mandi: 1
a. Atap
Rangka Baja Ringan + Atap Metal Berpasir
b. Dinding
Dinding Herbel
c. Lantai & Pondasi
Keramik + Granit Tile & Batu Kali


Harga: Rp 0
Luas Bangunan: 70m 2
Luas Lahan: 50m 2
Kamar Tidur: 0
Kamar Mandi: 1
a. Atap
Rangka Baja Ringan + Atap Metal Berpasir
b. Dinding
Dinding Herbel
c. Lantai & Pondasi
Keramik + Granit Tile & Batu Kali


Harga: Rp 0
Luas Bangunan: 68m 2
Luas Lahan: 48m 2
Kamar Tidur: 0
Kamar Mandi: 1
a. Atap
Rangka Baja Ringan + Atap Metal Berpasir
b. Dinding
Dinding Herbel
c. Lantai & Pondasi
Keramik + Granit Tile & Batu Kali