ID Lokasi : BKS1110022025T003
JAWA BARAT, KOTA BEKASI, Mustikajaya, Cimuning
PT PANDAWA SEJAHTERA BERSAMA PROPERTINDO
PERKUMPULAN ASOSIASI PENGEMBANG PERUMAHAN DAN PERMUKIMAN SELURUH INDONESIA
(APERSI)
Subsidi : 0 Unit
Terjual Subsidi : 0 Unit
Komersil : 19 Unit
Terjual Komersil : 3 Unit
Lihat Siteplan Digital




Harga: Rp 0
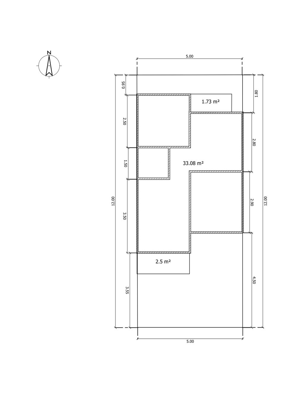
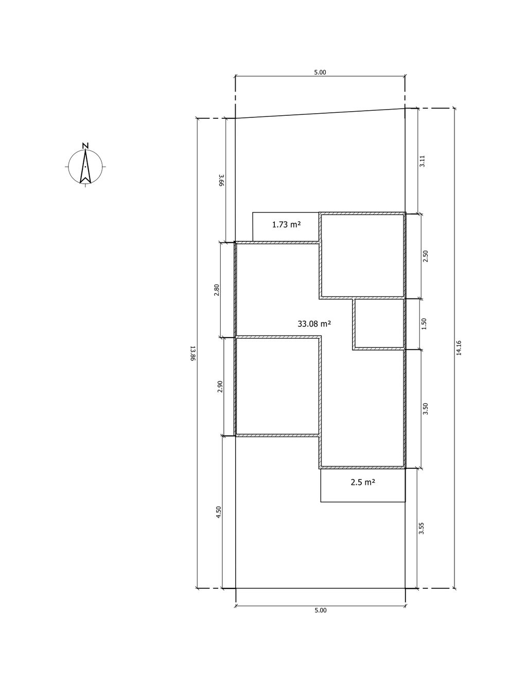
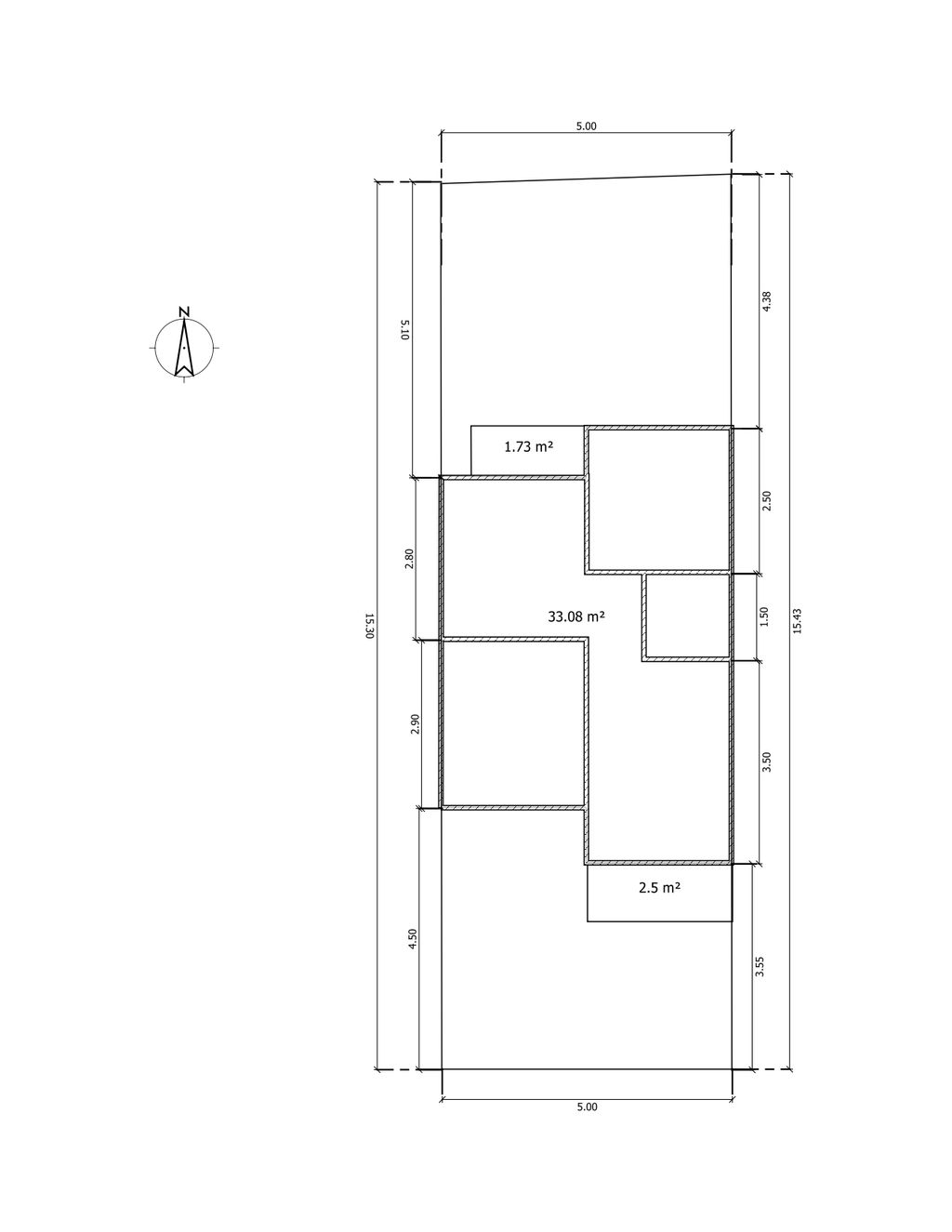
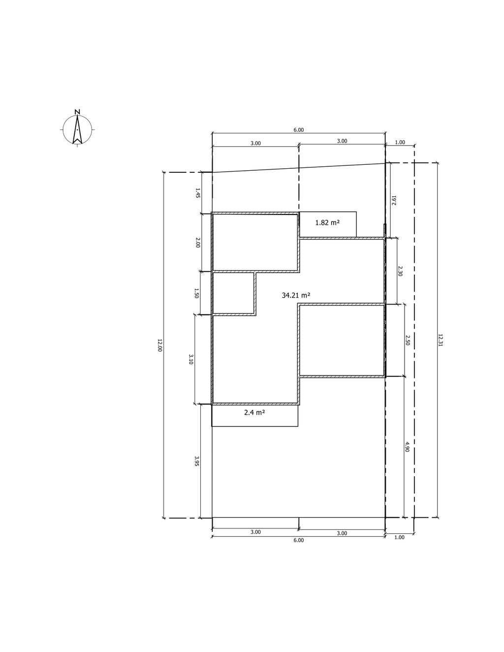
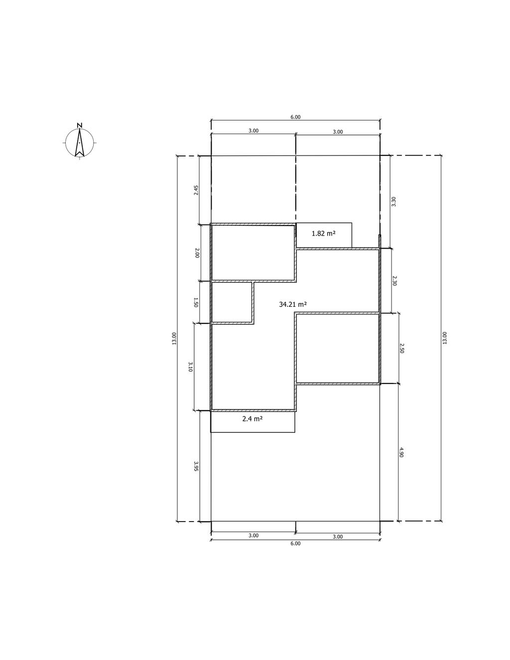
Luas Bangunan: 36m 2
Luas Lahan: 60m 2
Kamar Tidur: 2
Kamar Mandi: 1
a. Atap
Rangka Baja Ringan + Atap Metal Berpasir
b. Dinding
Dinding Herbel
c. Lantai & Pondasi
Keramik + Granit Tile & Batu Kali


Harga: Rp 0
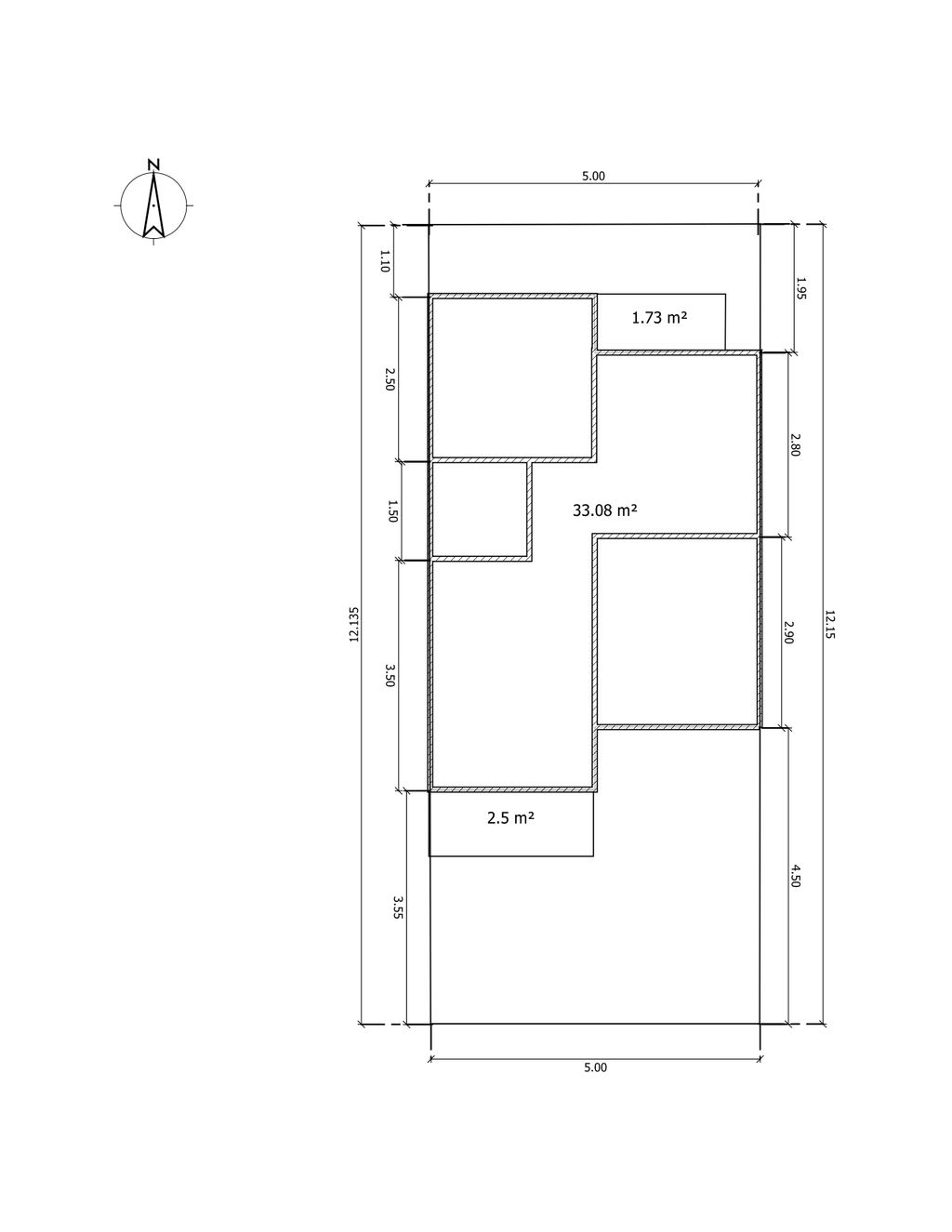
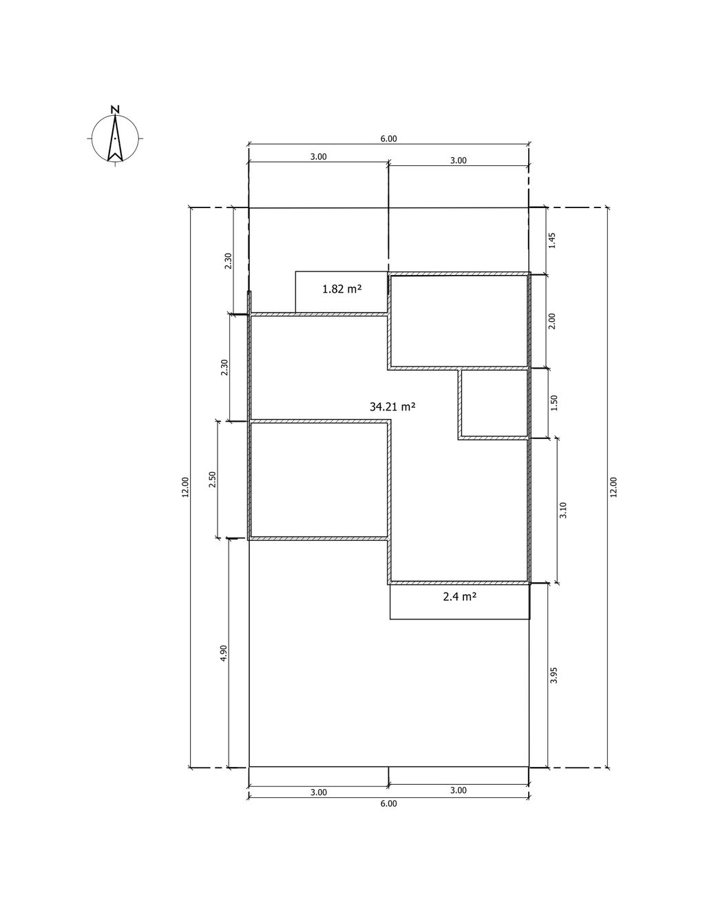
Luas Bangunan: 36m 2
Luas Lahan: 61m 2
Kamar Tidur: 2
Kamar Mandi: 1
a. Atap
Rangka Baja Ringan + Atap Metal Berpasir
b. Dinding
Dinding Herbel
c. Lantai & Pondasi
Keramik + Granit Tile & Batu Kali


Harga: Rp 0
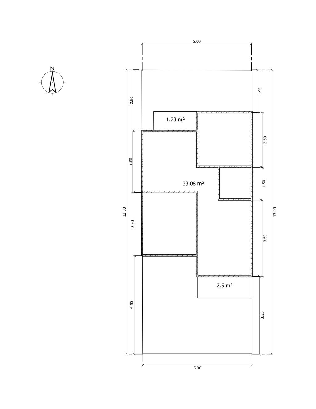
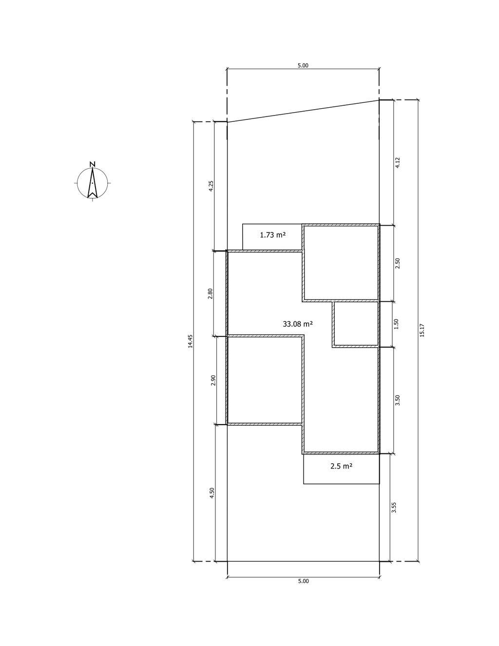
Luas Bangunan: 36m 2
Luas Lahan: 65m 2
Kamar Tidur: 2
Kamar Mandi: 1
a. Atap
Rangka Baja Ringan + Atap Metal Berpasir
b. Dinding
Dindinh Herbel
c. Lantai & Pondasi
Keramik+Granit Tile & Batu Kali


Harga: Rp 0
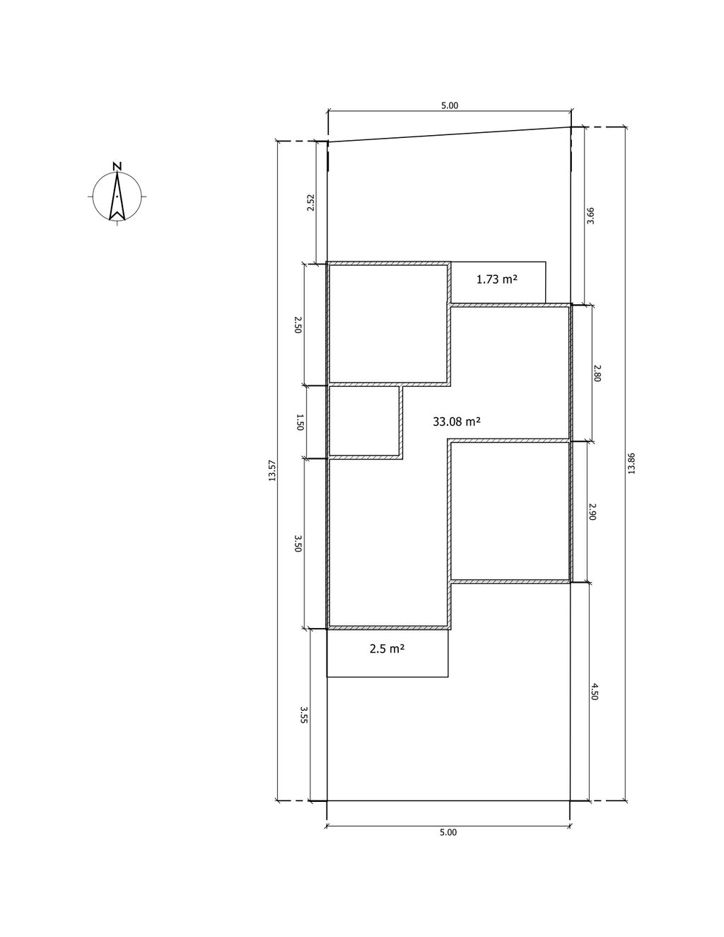
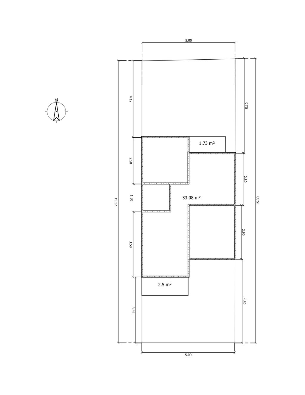
Luas Bangunan: 36m 2
Luas Lahan: 68m 2
Kamar Tidur: 2
Kamar Mandi: 1
a. Atap
Rangka Baja Ringan + Atap Metal Berpasir
b. Dinding
Dinding Herbel
c. Lantai & Pondasi
Keramik + Granit Tile & Batu Kali


Harga: Rp 0
Luas Bangunan: 36m 2
Luas Lahan: 70m 2
Kamar Tidur: 2
Kamar Mandi: 1
a. Atap
Rangka Baja Ringan + Atap Metal Berpasir
b. Dinding
Dinding Herbel
c. Lantai & Pondasi
Keramik+ Granit Tile & Batu Kali


Harga: Rp 0
Luas Bangunan: 36m 2
Luas Lahan: 72m 2
Kamar Tidur: 2
Kamar Mandi: 1
a. Atap
Rangka Baja Ringan + Atap Metal Berpasir
b. Dinding
Dinding Herbel
c. Lantai & Pondasi
Keramik + Granit Tile & Batu Kali


Harga: Rp 0
Luas Bangunan: 36m 2
Luas Lahan: 73m 2
Kamar Tidur: 2
Kamar Mandi: 1
a. Atap
Rangka Baja Ringan + Atap Mrtal Berpasir
b. Dinding
Dinding Herbel
c. Lantai & Pondasi
Keramik + Granit Tile & Batu Kali


Harga: Rp 0
Luas Bangunan: 36m 2
Luas Lahan: 76m 2
Kamar Tidur: 2
Kamar Mandi: 1
a. Atap
Rangka Baja Ringan + Atap Metal Berpasir
b. Dinding
Dinding Herbel
c. Lantai & Pondasi
Keramik + Granit Tile & Batu Kali


Harga: Rp 0
Luas Bangunan: 36m 2
Luas Lahan: 77m 2
Kamar Tidur: 2
Kamar Mandi: 1
a. Atap
Rangka Baja Ringan + Atap Metal Berpasir
b. Dinding
Dinding Herbel
c. Lantai & Pondasi
Keramik + Granit Tile & Batu Kali


Harga: Rp 0
Luas Bangunan: 36m 2
Luas Lahan: 86m 2
Kamar Tidur: 2
Kamar Mandi: 1
a. Atap
Raangka Baja Ringan + Atap Metal Berpasir
b. Dinding
Dinding Herbel
c. Lantai & Pondasi
Keramik + Granit Tile & Batu Kali


Harga: Rp 0
Luas Bangunan: 36m 2
Luas Lahan: 845m 2
Kamar Tidur: 2
Kamar Mandi: 1
a. Atap
Rangka Baja Ringan + Atap Metal Berpasir
b. Dinding
Dinding Herbel
c. Lantai & Pondasi
Keramik + Granit Tile & Batu Kali


Harga: Rp 0
Luas Bangunan: 36m 2
Luas Lahan: 75m 2
Kamar Tidur: 2
Kamar Mandi: 1
a. Atap
Rangka Baja Ringan + Atap Metal Berpasir
b. Dinding
Dinding Herbel
c. Lantai & Pondasi
Keramik + Granit Tile & Batu Kali