ID Lokasi : BLK0310032025T001
            
            SULAWESI SELATAN, KAB BULUKUMBA, Bonto Bahari, Benjala
            
            TANAH LEMBANG SEJAHTERA
            
            PERKUMPULAN ASOSIASI PENGEMBANG PERUMAHAN DAN PERMUKIMAN SELURUH INDONESIA
            (APERSI)
          
Subsidi : 60 Unit
Terjual Subsidi : 2 Unit
Komersil : 0 Unit
Terjual Komersil : 0 Unit
Lihat Siteplan Digital




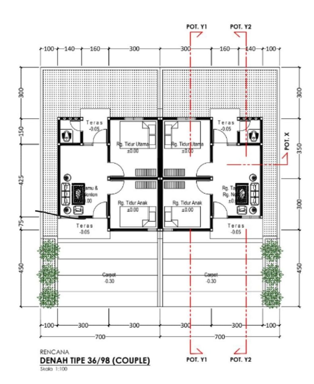
Harga: Rp 173.000.000
Luas Bangunan: 36m 2
Luas Lahan: 98m 2
Kamar Tidur: 2
Kamar Mandi: 1
a. Atap
                      
                      SPANDEK
b. Dinding
                      
                      PASANGAN BATU BATA PLASTER DAN CAT
c. Lantai & Pondasi
                      
                      KERAMIK 40X40 & PASANGAN BATU KALI