Griya Al-Fath Regency 3

ID Lokasi : BLN0620032025T001
KALIMANTAN SELATAN, KAB TANAH BUMBU, Simpang Empat, Sari Gadung
AIDIA MANDIRI PERKASA
PERKUMPULAN ASOSIASI PENGEMBANG PERUMAHAN DAN PERMUKIMAN SELURUH INDONESIA (APERSI)


Status Rumah

Subsidi : 144 Unit

Terjual Subsidi : 0 Unit

Komersil : 0 Unit

Terjual Komersil : 0 Unit

Lihat Siteplan Digital

Peta Lokasi



Kantor Pemasaran

Jl. Insgub Simpang Empat no. 01 KALIMANTAN SELATAN, KAB TANAH BUMBU, Simpang Empat, Kampung Baru

Telp : 085194143884

Email : aidiamandiriperkasa@gmail.com

Website :

Foto Lokasi


foto gerbang perumahan Griya Al-Fath Regency 3
Foto Gerbang/Jalan Utama
foto contoh rumah perumahan Griya Al-Fath Regency 3
Foto Rumah Contoh
foto posisi tengah perumahan Griya Al-Fath Regency 3
Foto Posisi Tengah Lokasi

Tipe Rumah


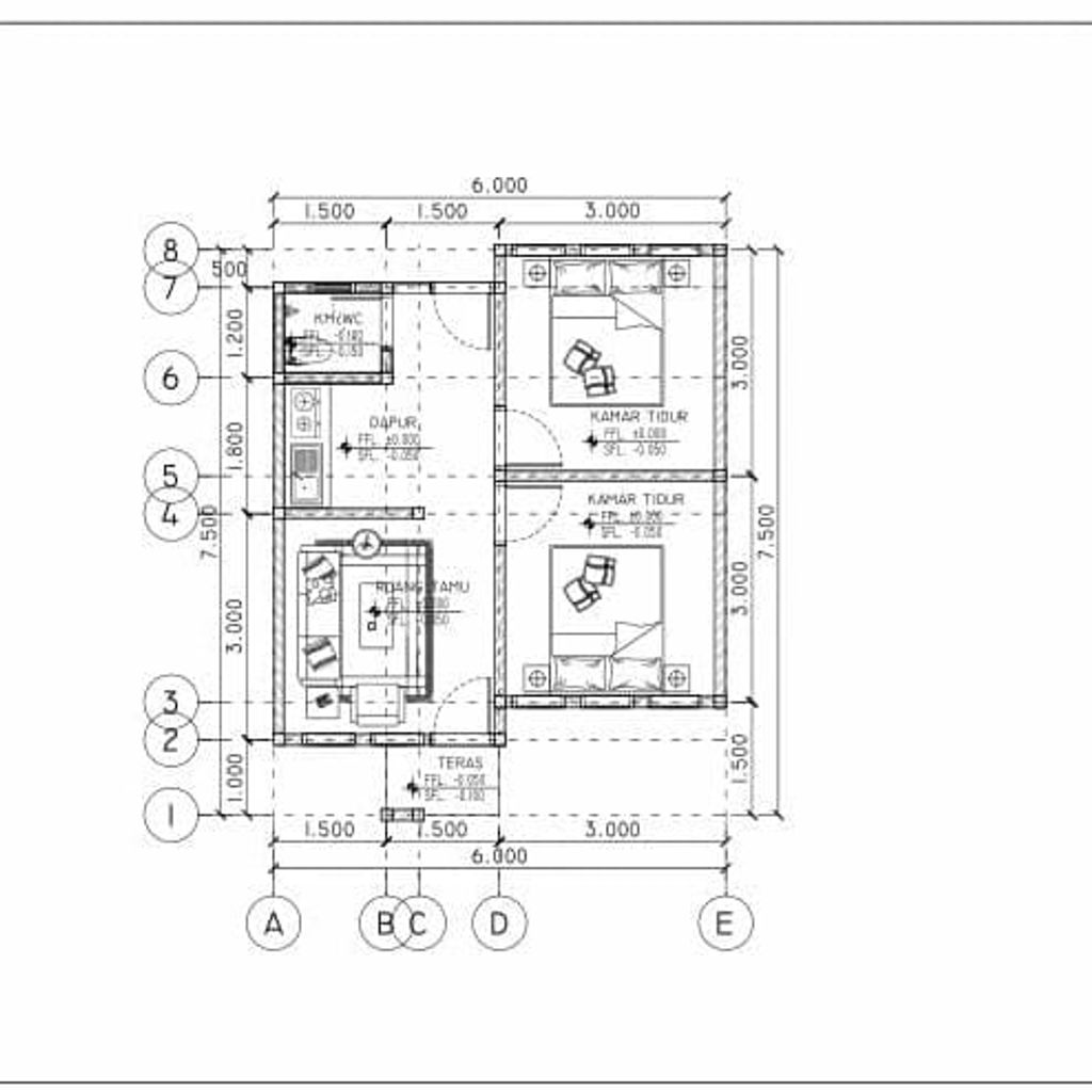
1. Tipe 36 subsidi (subsidi)
foto tampak rumah tipe 36 subsidi perumahan Griya Al-Fath Regency 3
foto denah rumah tipe 36 subsidi perumahan Griya Al-Fath Regency 3

Harga: Rp 177.000.000

Luas Bangunan: 36m 2

Luas Lahan: 126m 2

Kamar Tidur: 2

Kamar Mandi: 1

Spesifikasi Teknis

a. Atap
multiroof

b. Dinding
batako

c. Lantai & Pondasi
keramik & batu gunung


Peta Lokasi


Kantor Pemasaran

Jl. Insgub Simpang Empat no. 01 KALIMANTAN SELATAN, KAB TANAH BUMBU, Simpang Empat, Kampung Baru

Telp : 085194143884

Email : aidiamandiriperkasa@gmail.com

Website :