ID Lokasi : BPP0510082025T001
KALIMANTAN TIMUR, KOTA BALIKPAPAN, Balikpapan Selatan, Sepinggan Baru
MUTIARA BAHAGIA ABADI
REAL ESTATE INDONESIA
(REI)
Subsidi : 0 Unit
Terjual Subsidi : 0 Unit
Komersil : 2 Unit
Terjual Komersil : 0 Unit
Lihat Siteplan DigitalKomplek Perumahan Balikpapan Regency Jl. Kol Syarifuddin Yoes (Ring Road II) Balikpapan 76115 no. - KALIMANTAN TIMUR, KOTA BALIKPAPAN, Balikpapan Selatan, Sepinggan Baru
Telp : 0542-876575
Email : Legal.balikpapanregency@gmail.com
Website : -


Harga: Rp 433.000.000
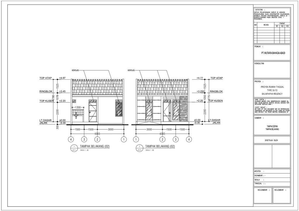
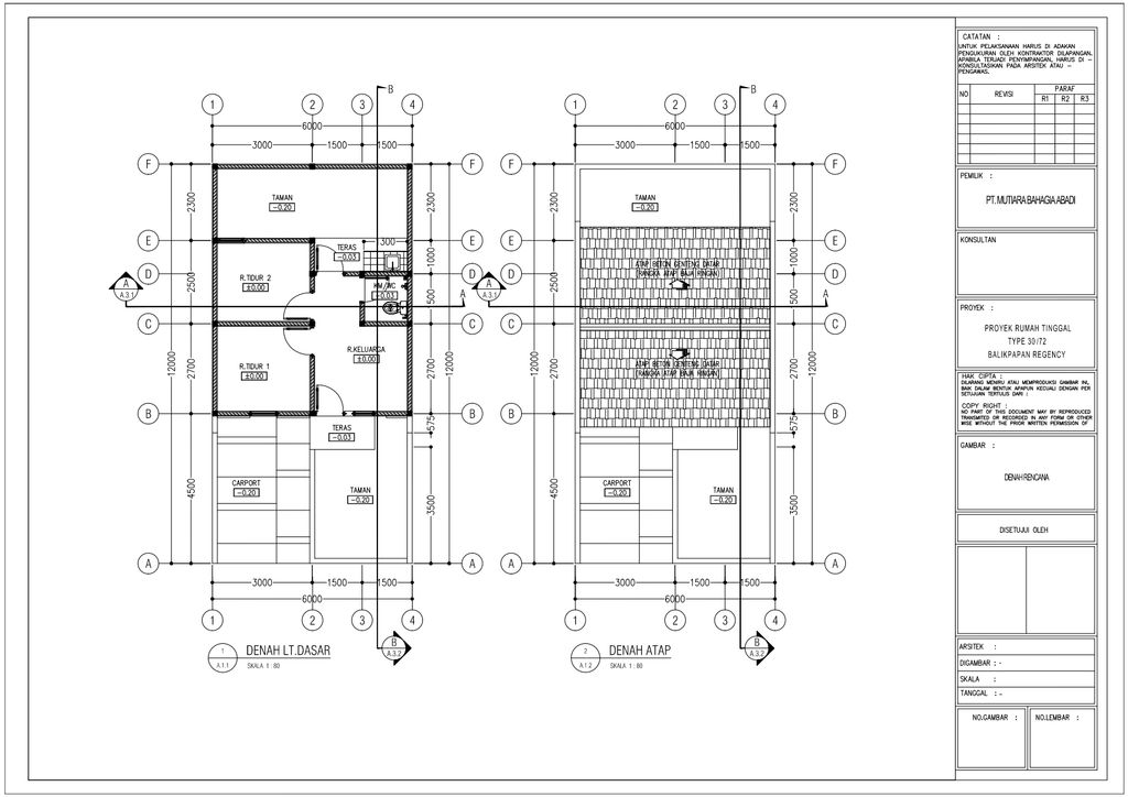
Luas Bangunan: 30m 2
Luas Lahan: 72m 2
Kamar Tidur: 2
Kamar Mandi: 1
a. Atap
Rangka atap = baja ringan,
Penutup atap = genteng beton
b. Dinding
Bata merah diplester, finishing cat
c. Lantai & Pondasi
a. Bangunan utama = Keramik 40/40
b. Teras = Keramik 30/30
c. Lantai Kamar Mandi = Keramik 25/25
d. Dinding Kamar Mandi = 25/40 & Batu Kali
Komplek Perumahan Balikpapan Regency Jl. Kol Syarifuddin Yoes (Ring Road II) Balikpapan 76115 no. - KALIMANTAN TIMUR, KOTA BALIKPAPAN, Balikpapan Selatan, Sepinggan Baru
Telp : 0542-876575
Email : Legal.balikpapanregency@gmail.com
Website : -