Perumahan Pelita Hill

ID Lokasi : BSB0410052025T001
KEPULAUAN RIAU, KAB BINTAN, Gunung Kijang, Kawal
SINAR INDO MITRA
Himpunan Pengembang Permukiman dan Perumahan Rakyat (HIMPERRA)


Status Rumah

Subsidi : 44 Unit

Terjual Subsidi : 2 Unit

Komersil : 0 Unit

Terjual Komersil : 0 Unit

Lihat Siteplan Digital

Peta Lokasi



Kantor Pemasaran

Jl. Cendrawasih Km. 8 Atas no. 188 KEPULAUAN RIAU, KOTA TANJUNG PINANG, Tanjung Pinang Timur, Batu IX

Telp : 0811778938

Email : sinarindom@gmail.com

Website :

Foto Lokasi


foto gerbang perumahan Perumahan Pelita Hill
Foto Gerbang/Jalan Utama
foto contoh rumah perumahan Perumahan Pelita Hill
Foto Rumah Contoh
foto posisi tengah perumahan Perumahan Pelita Hill
Foto Posisi Tengah Lokasi

Tipe Rumah


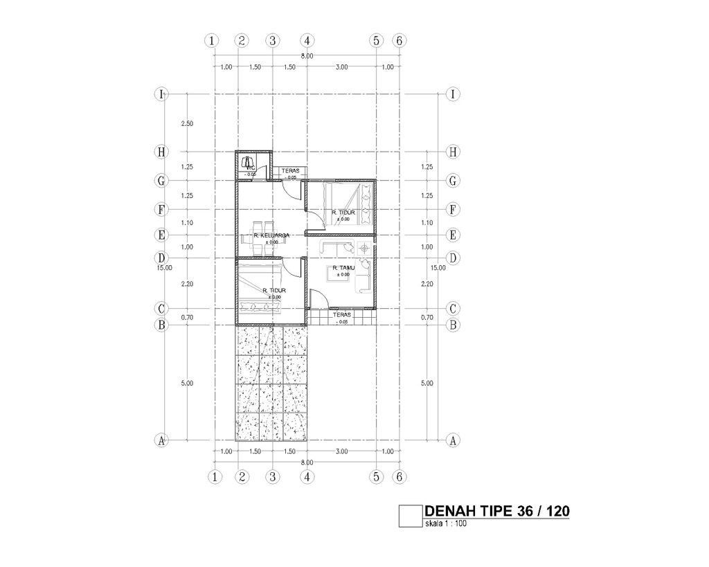
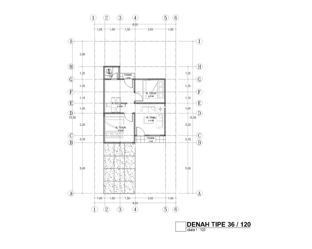
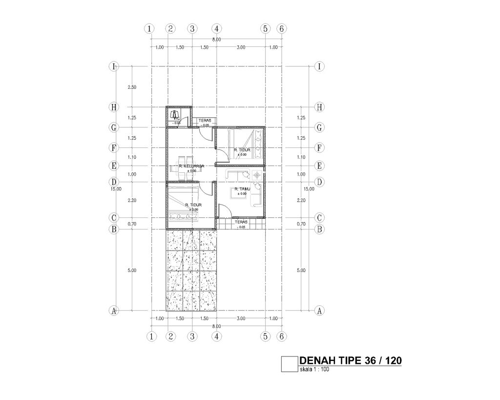
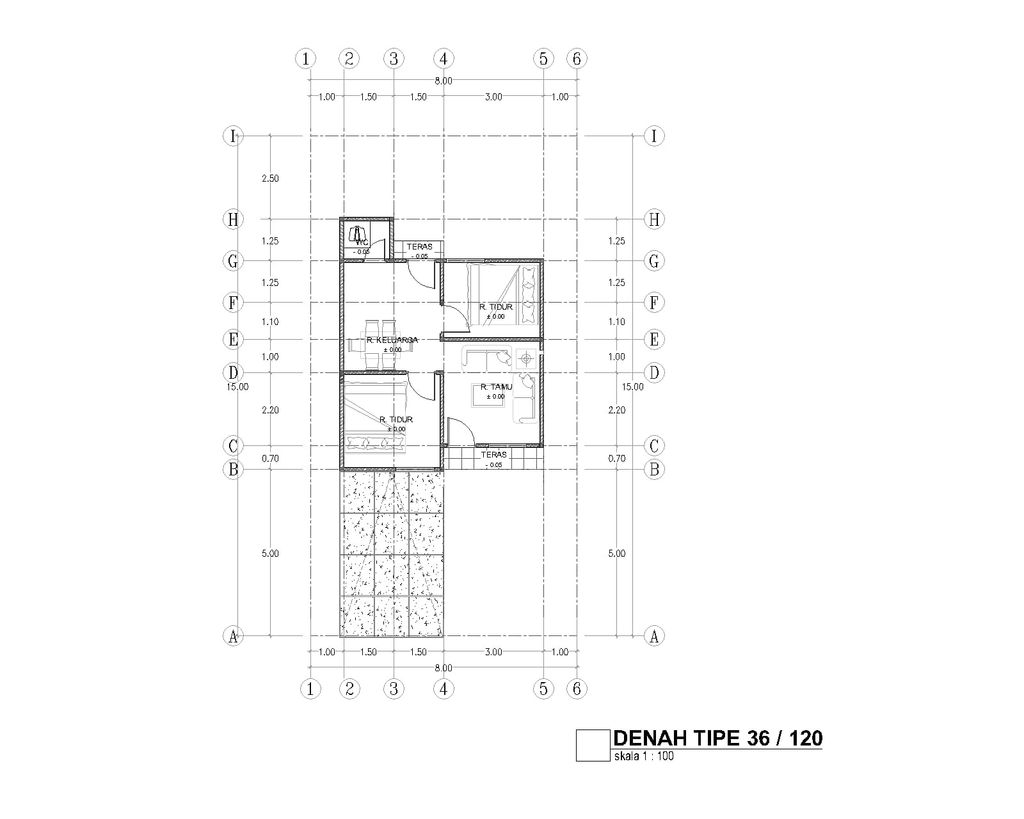
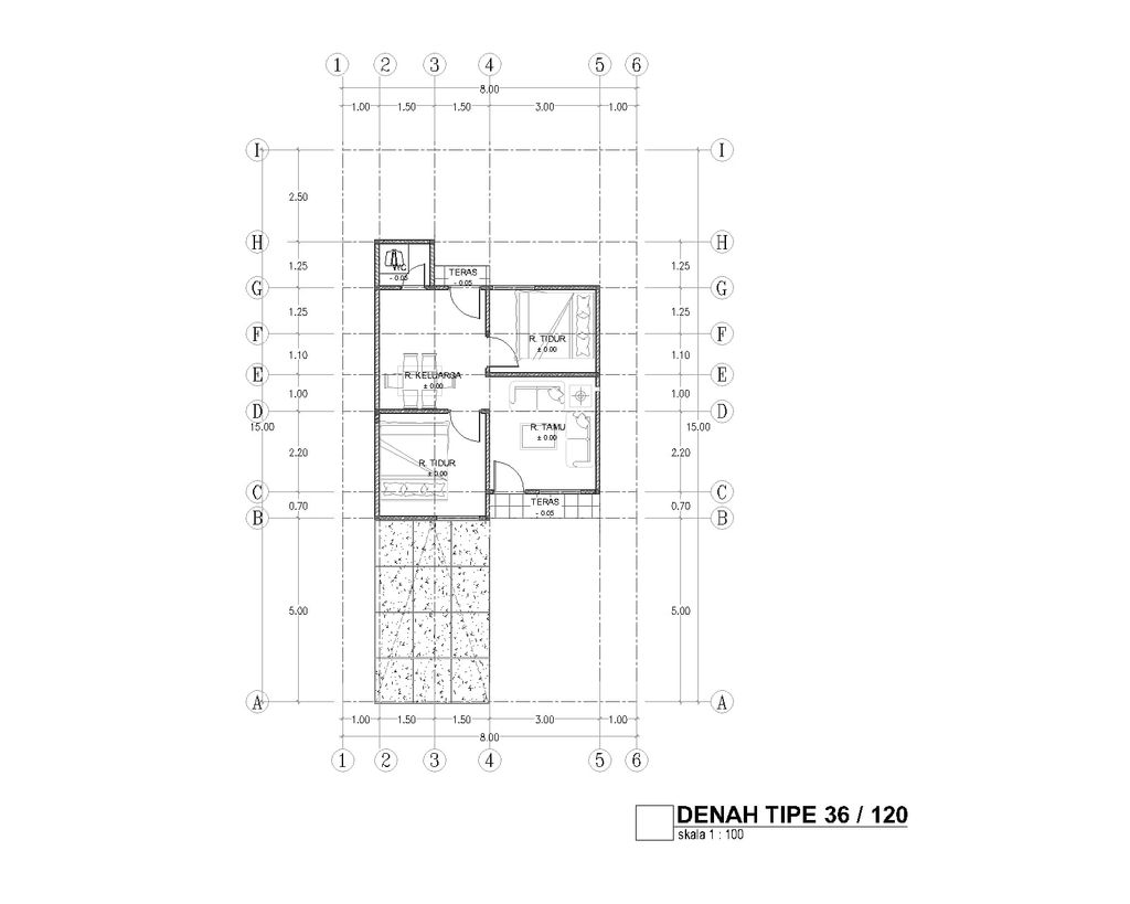
1. Tipe 36/120 (subsidi)
foto tampak rumah tipe 36/120 perumahan Perumahan Pelita Hill
foto denah rumah tipe 36/120 perumahan Perumahan Pelita Hill

Harga: Rp 173.000.000

Luas Bangunan: 36m 2

Luas Lahan: 120m 2

Kamar Tidur: 2

Kamar Mandi: 1

Spesifikasi Teknis

a. Atap
Kerangka Atap : Baja Ringan Penutup Atap : Spandek Lurus

b. Dinding
Batako Padat + cat

c. Lantai & Pondasi
Keramik & Beton Bertulang

2. Tipe 36/135 (subsidi)
foto tampak rumah tipe 36/135 perumahan Perumahan Pelita Hill
foto denah rumah tipe 36/135 perumahan Perumahan Pelita Hill

Harga: Rp 173.000.000

Luas Bangunan: 36m 2

Luas Lahan: 135m 2

Kamar Tidur: 2

Kamar Mandi: 1

Spesifikasi Teknis

a. Atap
Kerangka Atap : Baja Ringan Penutup Atap : Spandek Lurus

b. Dinding
Batako Padat

c. Lantai & Pondasi
Keramik & Beton Bertulang

3. Tipe 36/124 (subsidi)
foto tampak rumah tipe 36/124 perumahan Perumahan Pelita Hill
foto denah rumah tipe 36/124 perumahan Perumahan Pelita Hill

Harga: Rp 17.300.000

Luas Bangunan: 36m 2

Luas Lahan: 124m 2

Kamar Tidur: 2

Kamar Mandi: 1

Spesifikasi Teknis

a. Atap
Kerangka Atap : Baja Ringan Penutup Atap : Spandek Lurus

b. Dinding
Batako Padat

c. Lantai & Pondasi
Keramik & Beton Bertulang

4. Tipe 36/138 (subsidi)
foto tampak rumah tipe 36/138 perumahan Perumahan Pelita Hill
foto denah rumah tipe 36/138 perumahan Perumahan Pelita Hill

Harga: Rp 173.000.000

Luas Bangunan: 36m 2

Luas Lahan: 138m 2

Kamar Tidur: 2

Kamar Mandi: 1

Spesifikasi Teknis

a. Atap
Kerangka Atap : Baja Ringan Penutup Atap : Spandek Lurus

b. Dinding
Batako Padat

c. Lantai & Pondasi
Keramik & Beton Bertulang

5. Tipe 36/123 (subsidi)
foto tampak rumah tipe 36/123 perumahan Perumahan Pelita Hill
foto denah rumah tipe 36/123 perumahan Perumahan Pelita Hill

Harga: Rp 173.000.000

Luas Bangunan: 36m 2

Luas Lahan: 123m 2

Kamar Tidur: 2

Kamar Mandi: 1

Spesifikasi Teknis

a. Atap
Kerangka Atap : Baja Ringan Penutup Atap : Spandek Lurus

b. Dinding
Batako Padat

c. Lantai & Pondasi
Keramik & Beton Bertulang

6. Tipe 36/126 (subsidi)
foto tampak rumah tipe 36/126 perumahan Perumahan Pelita Hill
foto denah rumah tipe 36/126 perumahan Perumahan Pelita Hill

Harga: Rp 173.000.000

Luas Bangunan: 36m 2

Luas Lahan: 126m 2

Kamar Tidur: 2

Kamar Mandi: 1

Spesifikasi Teknis

a. Atap
Kerangka Atap : Baja Ringan Penutup Atap : Spandek Lurus

b. Dinding
Batako Padat

c. Lantai & Pondasi
Keramik & Beton Bertulang

7. Tipe 36/165 (subsidi)
foto tampak rumah tipe 36/165 perumahan Perumahan Pelita Hill
foto denah rumah tipe 36/165 perumahan Perumahan Pelita Hill

Harga: Rp 173.000.000

Luas Bangunan: 36m 2

Luas Lahan: 165m 2

Kamar Tidur: 2

Kamar Mandi: 1

Spesifikasi Teknis

a. Atap
Kerangka Atap : Baja Ringan Penutup Atap : Spandek Lurus

b. Dinding
Batako Padat

c. Lantai & Pondasi
Keramik & Beton Bertulang

8. Tipe 36/198 (subsidi)
foto tampak rumah tipe 36/198 perumahan Perumahan Pelita Hill
foto denah rumah tipe 36/198 perumahan Perumahan Pelita Hill

Harga: Rp 173.000.000

Luas Bangunan: 36m 2

Luas Lahan: 198m 2

Kamar Tidur: 2

Kamar Mandi: 1

Spesifikasi Teknis

a. Atap
Kerangka Atap : Baja Ringan Penutup Atap : Spandek Lurus

b. Dinding
Batako Padat

c. Lantai & Pondasi
Keramik & Beton Bertulang

9. Tipe 36/121 (subsidi)
foto tampak rumah tipe 36/121 perumahan Perumahan Pelita Hill
foto denah rumah tipe 36/121 perumahan Perumahan Pelita Hill

Harga: Rp 173.000.000

Luas Bangunan: 36m 2

Luas Lahan: 121m 2

Kamar Tidur: 2

Kamar Mandi: 1

Spesifikasi Teknis

a. Atap
Kerangka Atap : Baja Ringan Penutup Atap : Spandek Lurus

b. Dinding
Batako Padat

c. Lantai & Pondasi
Keramik & Beton Bertulang


Peta Lokasi


Kantor Pemasaran

Jl. Cendrawasih Km. 8 Atas no. 188 KEPULAUAN RIAU, KOTA TANJUNG PINANG, Tanjung Pinang Timur, Batu IX

Telp : 0811778938

Email : sinarindom@gmail.com

Website :