ID Lokasi : BTM0710042026T002
KEPULAUAN RIAU, KOTA BATAM, Sei Beduk, Tanjung Piayu
PT PUTRA INDONESIA RAYA
REAL ESTATE INDONESIA
(REI)
Subsidi : 59 Unit
Terjual Subsidi : 14 Unit
Komersil : 0 Unit
Terjual Komersil : 0 Unit
Lihat Siteplan Digital




Harga: Rp 173.000.000
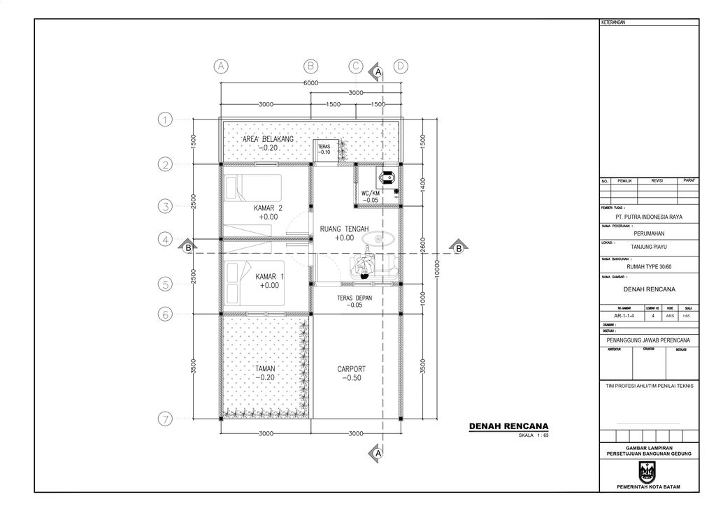
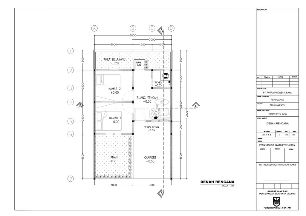
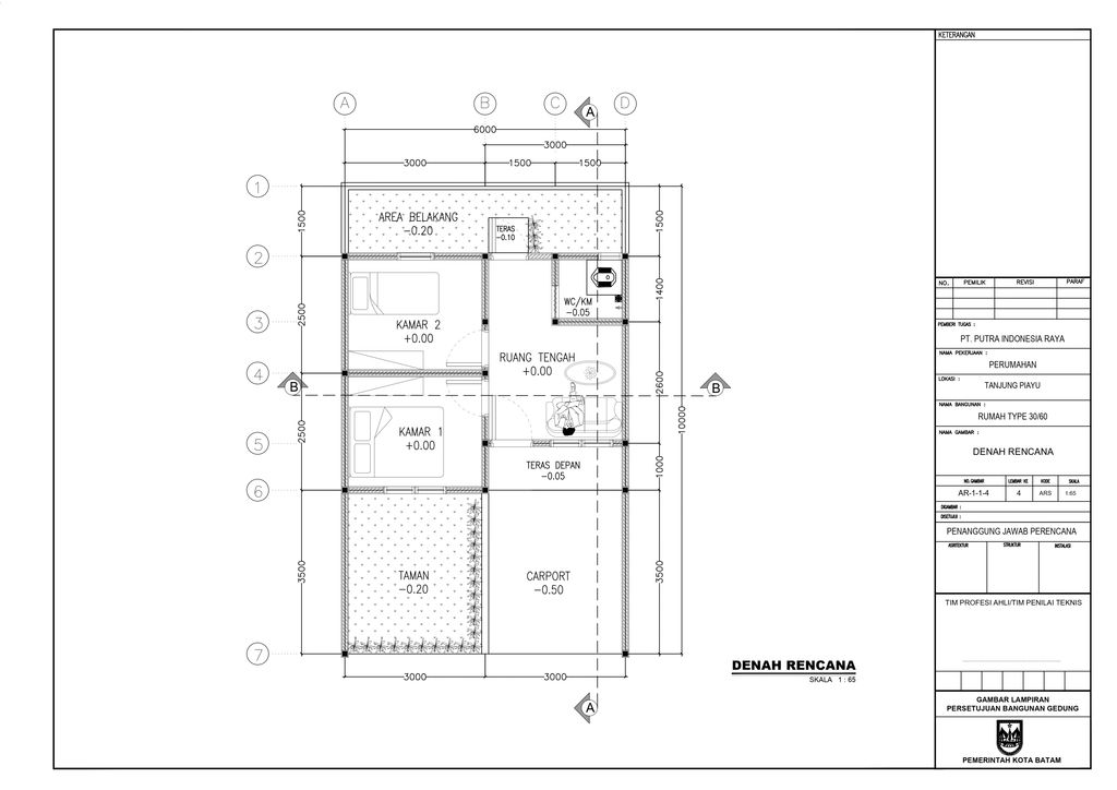
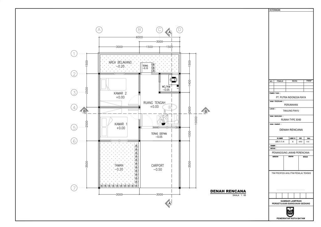
Luas Bangunan: 30m 2
Luas Lahan: 60m 2
Kamar Tidur: 2
Kamar Mandi: 1
a. Atap
BAJA RINGAN, ATAP SPANDEK
b. Dinding
BATAKO PLASTER, ACI DAN FINISHING CAT
c. Lantai & Pondasi
KERAMIK & BETON BERTULANG


Harga: Rp 277.500.000
Luas Bangunan: 30m 2
Luas Lahan: 85m 2
Kamar Tidur: 2
Kamar Mandi: 1
a. Atap
Bajar Ringan, Spandek
b. Dinding
Batako, Plaster, Aci finishing Cat
c. Lantai & Pondasi
Keramik & Beton Bertulang


Harga: Rp 390.870.000
Luas Bangunan: 30m 2
Luas Lahan: 147m 2
Kamar Tidur: 2
Kamar Mandi: 1
a. Atap
Baja Ringan, Spandek
b. Dinding
Batako, Plaster, Aci dan Cat
c. Lantai & Pondasi
Keramik & Beton Bertulang


Harga: Rp 258.500.000
Luas Bangunan: 30m 2
Luas Lahan: 80m 2
Kamar Tidur: 2
Kamar Mandi: 1
a. Atap
Baja Ringan, spandek
b. Dinding
Batako, Plester, aci halus dan cat
c. Lantai & Pondasi
keramik & beton bertulang


Harga: Rp 316.000.000
Luas Bangunan: 30m 2
Luas Lahan: 113m 2
Kamar Tidur: 2
Kamar Mandi: 1
a. Atap
Baja ringan, spandek
b. Dinding
Batako, Plaster, Aci halus dan Cat
c. Lantai & Pondasi
Keramik & Beton Bertulang


Harga: Rp 313.000.000
Luas Bangunan: 30m 2
Luas Lahan: 108m 2
Kamar Tidur: 2
Kamar Mandi: 1
a. Atap
Baja ringan, spandek
b. Dinding
Batako, plester, aci dan cat
c. Lantai & Pondasi
keramik & Beton bertulang


Harga: Rp 145.100.000
Luas Bangunan: 30m 2
Luas Lahan: 125m 2
Kamar Tidur: 2
Kamar Mandi: 1
a. Atap
Baja ringah, spandek
b. Dinding
Batako, plaster, aci dan cat
c. Lantai & Pondasi
keramik & Beton bertulang


Harga: Rp 253.900.000
Luas Bangunan: 30m 2
Luas Lahan: 83m 2
Kamar Tidur: 2
Kamar Mandi: 1
a. Atap
Baja ringan, Spandek
b. Dinding
Batako, Plaster, Aci dan Cat
c. Lantai & Pondasi
Keramik & Beton Bertulang


Harga: Rp 268.000.000
Luas Bangunan: 30m 2
Luas Lahan: 84m 2
Kamar Tidur: 2
Kamar Mandi: 1
a. Atap
Baja Ringann, Spandek
b. Dinding
Batako, Plaster, Aci halus dan Cat
c. Lantai & Pondasi
Keramik & Beton Bertulang


Harga: Rp 279.748.000
Luas Bangunan: 30m 2
Luas Lahan: 90m 2
Kamar Tidur: 2
Kamar Mandi: 1
a. Atap
Baja Ringan, SPandek
b. Dinding
Batako, Plaster, Aci dan Cat
c. Lantai & Pondasi
Keramik & Beton Bertulang