ID Lokasi : BYL0720082026T001
JAWA TENGAH, KAB BOYOLALI, Teras, Teras
PT TIGA MITRA ADHIJAYA
PERKUMPULAN ASOSIASI PENGEMBANG PERUMAHAN DAN PERMUKIMAN SELURUH INDONESIA
(APERSI)
Subsidi : 133 Unit
Terjual Subsidi : 0 Unit
Komersil : 0 Unit
Terjual Komersil : 0 Unit
Lihat Siteplan DigitalSidomulyo, RT.02/RW.03 no. 000 JAWA TENGAH, KAB BOYOLALI, Teras, Teras
Telp : 082324626468
Email : tigamitraadhijaya@gmail.com
Website : -





Harga: Rp 166.000.000
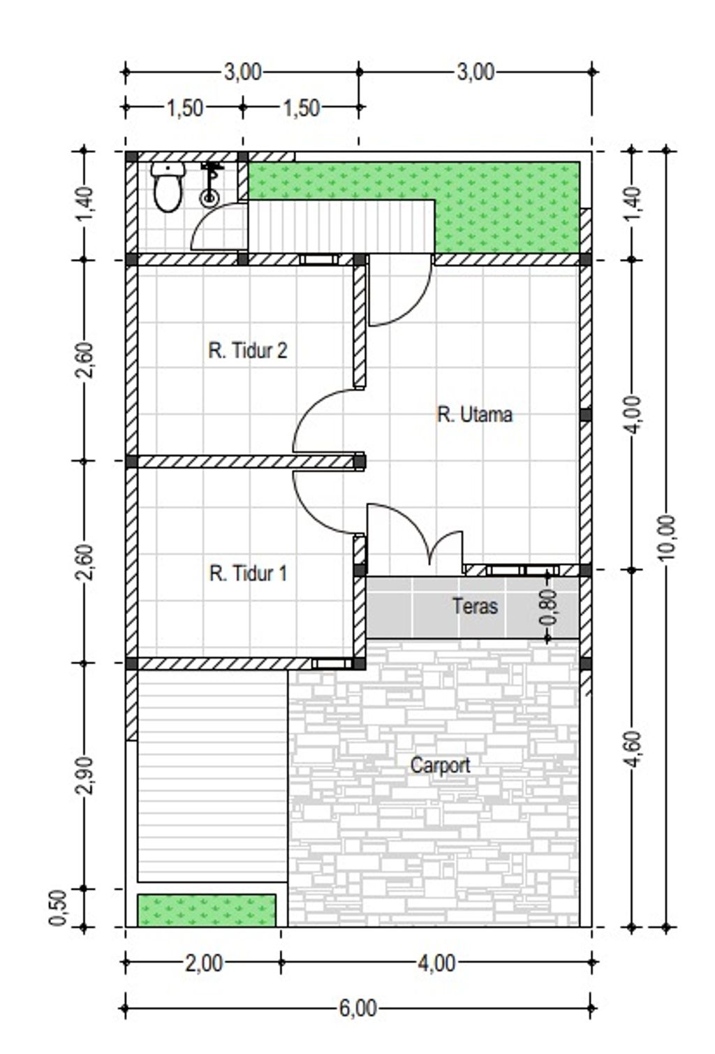
Luas Bangunan: 30m 2
Luas Lahan: 60m 2
Kamar Tidur: 2
Kamar Mandi: 1
a. Atap
BAJA RINGAN
b. Dinding
BATA RINGAN
c. Lantai & Pondasi
KERAMIK 40X40CM & BATU KALI
Sidomulyo, RT.02/RW.03 no. 000 JAWA TENGAH, KAB BOYOLALI, Teras, Teras
Telp : 082324626468
Email : tigamitraadhijaya@gmail.com
Website : -