ID Lokasi : BYL0920072021T001
JAWA TENGAH, KAB BOYOLALI, Banyudono, Ngaru-aru
PT TRI MANUNGGAL MAKARTI
REAL ESTATE INDONESIA
(REI)
Subsidi : 0 Unit
Terjual Subsidi : 0 Unit
Komersil : 24 Unit
Terjual Komersil : 3 Unit
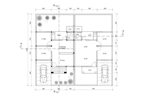
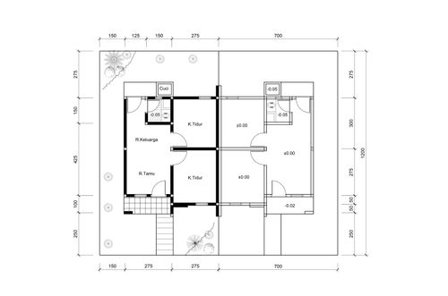
Lihat Siteplan Digital




Harga: Rp 295.000.000
Luas Bangunan: 36m 2
Luas Lahan: 95m 2
Kamar Tidur: 2
Kamar Mandi: 1
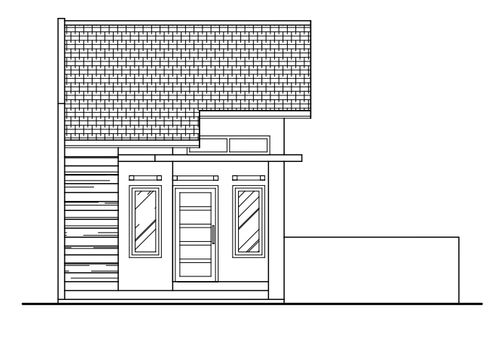
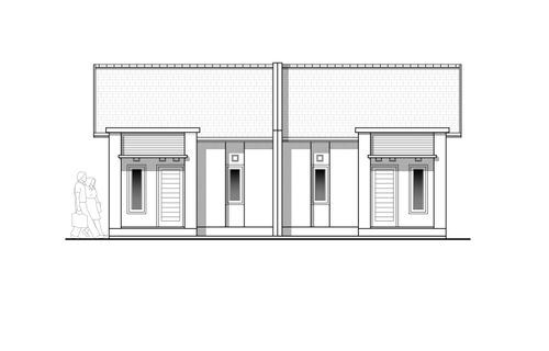
a. Atap
Konstruksi atap baja ringan
genteng beton
b. Dinding
Pasangan bata merah
Finishing plaster aci cat
c. Lantai & Pondasi
Cor rabat lantai tebal 10cm
Keramik 40x40cm & Pondasi batu kali


Harga: Rp 140.000.000
Luas Bangunan: 36m 2
Luas Lahan: 95m 2
Kamar Tidur: 2
Kamar Mandi: 1
a. Atap
BAJA RINGAN
GENTENG BETON
b. Dinding
BATU BATA
PLESTER ACI DAN CAT
c. Lantai & Pondasi
KERAMIK 40 X 40 & BATU KALI


Harga: Rp 140.000.000
Luas Bangunan: 36m 2
Luas Lahan: 82m 2
Kamar Tidur: 2
Kamar Mandi: 1
a. Atap
BAJA RINGAN
GENTENG BETON
b. Dinding
BATUB BATA
PLESTER ACI DAN CAT
c. Lantai & Pondasi
KERAMIK 40 X 40 & BATU KALI


Harga: Rp 140.000.000
Luas Bangunan: 36m 2
Luas Lahan: 83m 2
Kamar Tidur: 2
Kamar Mandi: 1
a. Atap
BAJA RINGAN
GENTENG BETON
b. Dinding
DINDING BATU BATA
PLESTER ACI DAN CAT
c. Lantai & Pondasi
KERAMIK 40 X 40 & PONDASI BATU KALI


Harga: Rp 140.000.000
Luas Bangunan: 36m 2
Luas Lahan: 104m 2
Kamar Tidur: 2
Kamar Mandi: 1
a. Atap
BAJA RINGAN
GENTENG BETON
b. Dinding
BATU BATA
PLESTER ACI DAN CAT
c. Lantai & Pondasi
KERAMIK 40 X 40 & BATU KALI


Harga: Rp 140.000.000
Luas Bangunan: 36m 2
Luas Lahan: 65m 2
Kamar Tidur: 2
Kamar Mandi: 1
a. Atap
ATAP BAJA RINGAN
GENTENG BETON
b. Dinding
BATU BATA
PLESTER DAN ACI
c. Lantai & Pondasi
KERAMIK 40 X 40 & BATU KALI


Harga: Rp 200.000.000
Luas Bangunan: 38m 2
Luas Lahan: 85m 2
Kamar Tidur: 2
Kamar Mandi: 1
a. Atap
BAJA RINGAN
GENTENG BETON
b. Dinding
BATU BATA
PLESTER ACI DAN CAT
c. Lantai & Pondasi
KERAMIK 40 X 40 & BATU KALI


Harga: Rp 140.000.000
Luas Bangunan: 36m 2
Luas Lahan: 80m 2
Kamar Tidur: 2
Kamar Mandi: 1
a. Atap
BAJA RINGAN
GENTENG BETON
b. Dinding
BATU BATA
PLESTER ACI AN CAT
c. Lantai & Pondasi
KERAMIK 40 X 40 & BATU KALI


Harga: Rp 200.000.000
Luas Bangunan: 36m 2
Luas Lahan: 96m 2
Kamar Tidur: 2
Kamar Mandi: 1
a. Atap
BAJA RINGAN
GENTENG BETON
b. Dinding
BATU BATA
c. Lantai & Pondasi
KERAMIK 40 X 40 & BATU KALI


Harga: Rp 200.000.000
Luas Bangunan: 38m 2
Luas Lahan: 83m 2
Kamar Tidur: 2
Kamar Mandi: 1
a. Atap
BAJA RINGAN
GENTENG BETON
b. Dinding
BATU BATA
c. Lantai & Pondasi
KERAMIK 40 X 40 & BATU KALI


Harga: Rp 200.000.000
Luas Bangunan: 38m 2
Luas Lahan: 100m 2
Kamar Tidur: 2
Kamar Mandi: 1
a. Atap
KONTRUKSI ATAP BAJA RINGAN
GENTENG BETON
b. Dinding
BATU BATA PLESTER ACI DAN CAT
c. Lantai & Pondasi
KERAMIK 40 X 40 & BATU KALI


Harga: Rp 200.000.000
Luas Bangunan: 50m 2
Luas Lahan: 112m 2
Kamar Tidur: 2
Kamar Mandi: 1
a. Atap
BAJA RINGAN
GENTENG BETON
b. Dinding
BATU BATA
c. Lantai & Pondasi
KERAMIK 40 X 40 & BATU KALI


Harga: Rp 130.000.000
Luas Bangunan: 30m 2
Luas Lahan: 83m 2
Kamar Tidur: 2
Kamar Mandi: 0
a. Atap
BAJA RINGAN
GENTENG BETON
b. Dinding
BATU BATA PLESTER ASI DAN CAT
c. Lantai & Pondasi
KERAMIK 40 X 40 & BATU KALI


Harga: Rp 200.000.000
Luas Bangunan: 38m 2
Luas Lahan: 89m 2
Kamar Tidur: 2
Kamar Mandi: 1
a. Atap
BAJA RINGAN
GENTENG BETON
b. Dinding
BATU BATA PLESTER ACI DAN CAT
c. Lantai & Pondasi
KERAMIK 40 X 40 & BATU KALI


Harga: Rp 130.000.000
Luas Bangunan: 36m 2
Luas Lahan: 84m 2
Kamar Tidur: 2
Kamar Mandi: 1
a. Atap
KONTRUKSI ATAP BAJA RINGAN
GENTENG BETON
b. Dinding
BATU BATA PLESTER ACI DAN CAT
c. Lantai & Pondasi
KERAMIK 40 X 40 & BATU KALI


Harga: Rp 130.000.000
Luas Bangunan: 30m 2
Luas Lahan: 65m 2
Kamar Tidur: 2
Kamar Mandi: 0
a. Atap
BAJA RINGAN
GENTENG BETON
b. Dinding
DINDING BATU BATA
PLESTER ACI DAN CAT
c. Lantai & Pondasi
KERAMIK 40 X 40 & BATU KALI


Harga: Rp 200.000.000
Luas Bangunan: 50m 2
Luas Lahan: 105m 2
Kamar Tidur: 2
Kamar Mandi: 1
a. Atap
Baja ringan
Genteng beton
b. Dinding
Bata merah
Plester aci cat
c. Lantai & Pondasi
Keramik 40x40cm & Batu kali


Harga: Rp 221.000.000
Luas Bangunan: 36m 2
Luas Lahan: 83m 2
Kamar Tidur: 2
Kamar Mandi: 1
a. Atap
KONSTRUKSI KUDA - KUDA KAYU
Finishing genteng beton
b. Dinding
Pasangan dinding bata merah
c. Lantai & Pondasi
Cor rabat lantai tebal 10cm
Finishing keramik 30x30cm & Pasangan pondasi batu kali