ID Lokasi : BYW2520042025T001
JAWA TIMUR, KAB BANYUWANGI, Blimbingsari, Gintangan
PT SITI BAROKHA INDAH
PERKUMPULAN ASOSIASI PENGEMBANG PERUMAHAN DAN PERMUKIMAN SELURUH INDONESIA
(APERSI)
Subsidi : 113 Unit
Terjual Subsidi : 0 Unit
Komersil : 0 Unit
Terjual Komersil : 0 Unit
Lihat Siteplan Digital




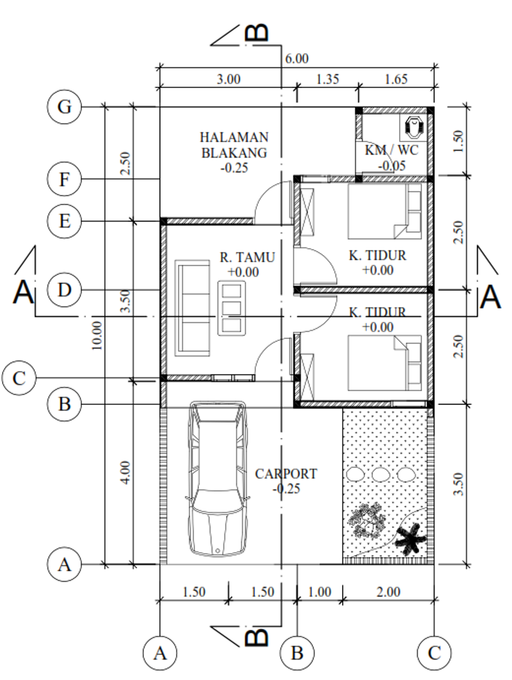
Harga: Rp 166.000.000
Luas Bangunan: 30m 2
Luas Lahan: 60m 2
Kamar Tidur: 2
Kamar Mandi: 1
a. Atap
Genteng Cor
b. Dinding
Bata Merah
c. Lantai & Pondasi
Kramik 40x40 & Batu Kali