ID Lokasi : CBI0720092025T001
JAWA BARAT, KAB BOGOR, Cileungsi, Situsari
PT BANGUN CIPTA GRIYA NUSANTARA
PERKUMPULAN ASOSIASI PENGEMBANG PERUMAHAN DAN PERMUKIMAN SELURUH INDONESIA
(APERSI)
Subsidi : 51 Unit
Terjual Subsidi : 8 Unit
Komersil : 33 Unit
Terjual Komersil : 19 Unit
Lihat Siteplan Digital




Harga: Rp 319.500.800
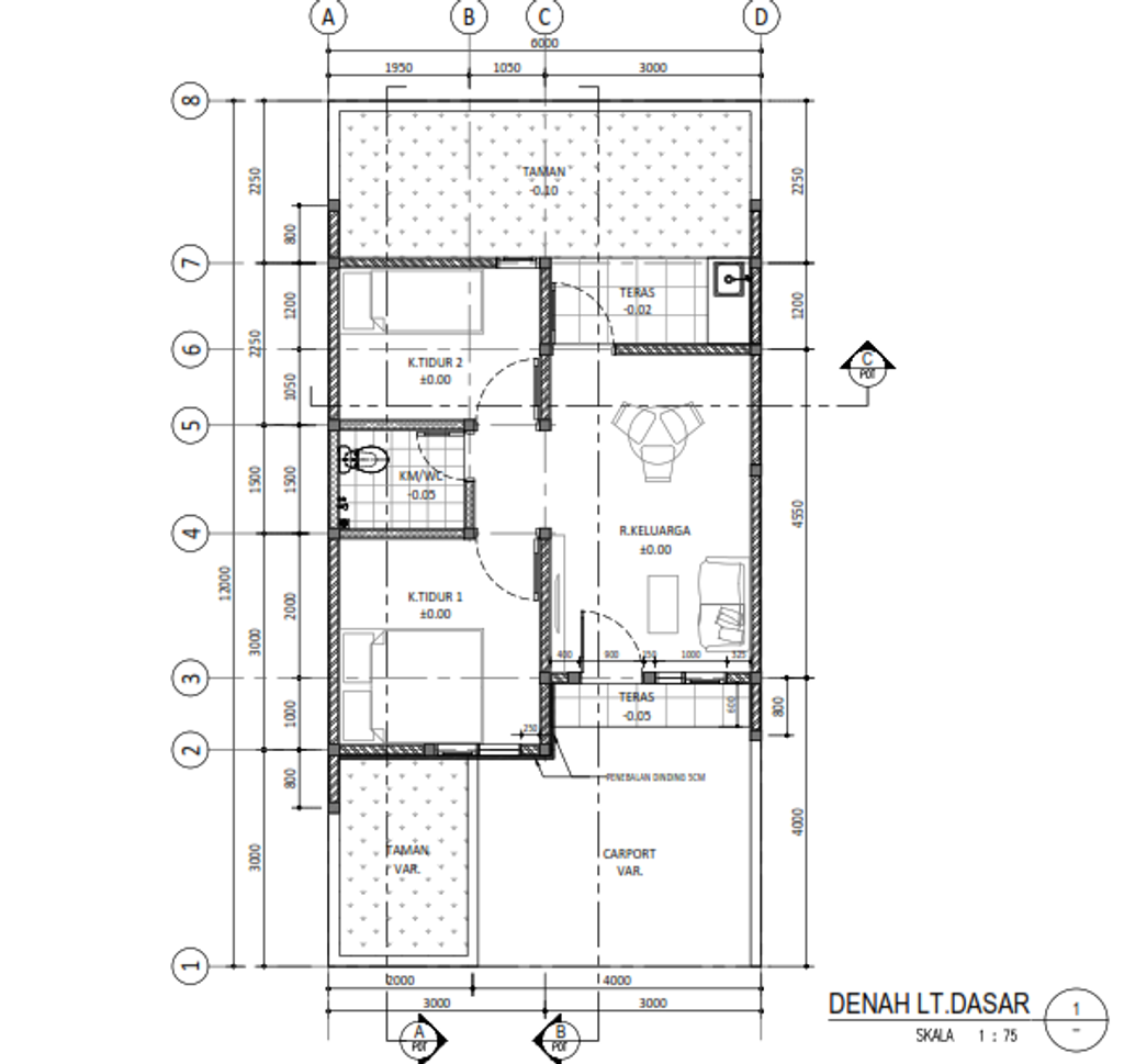
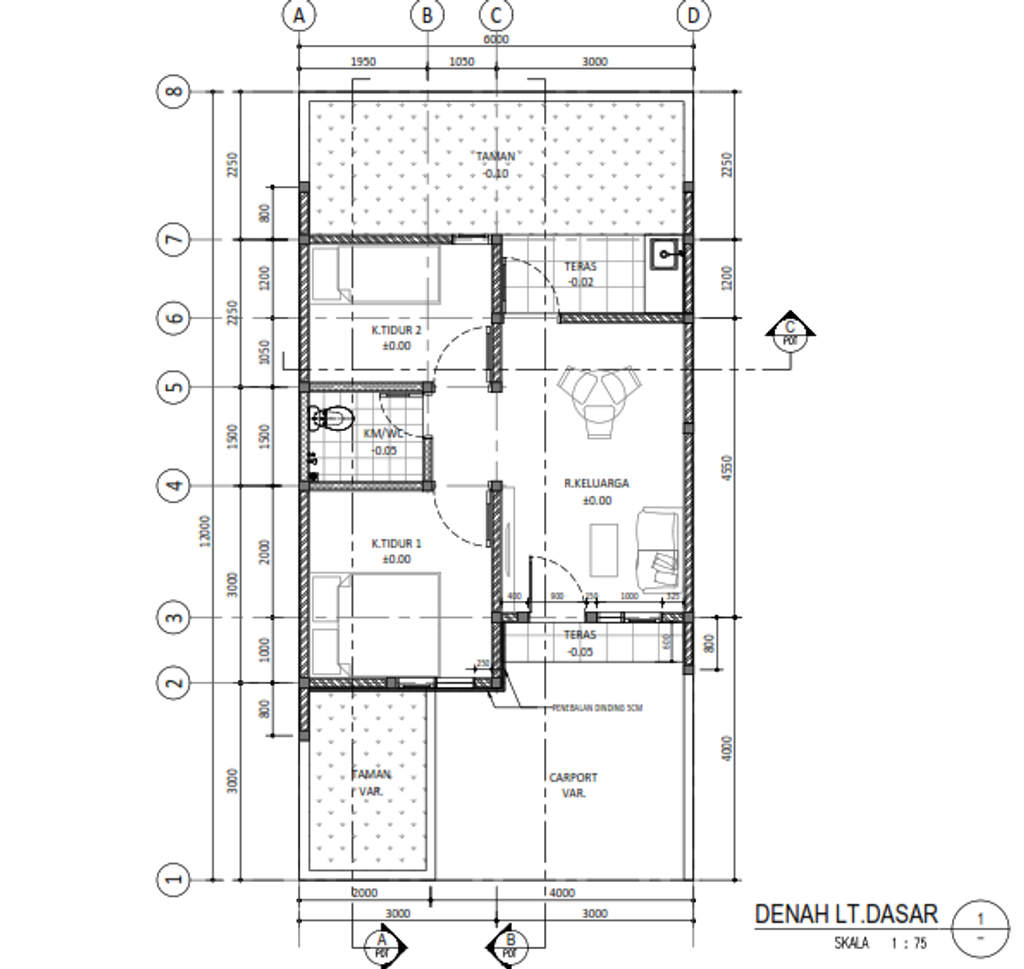
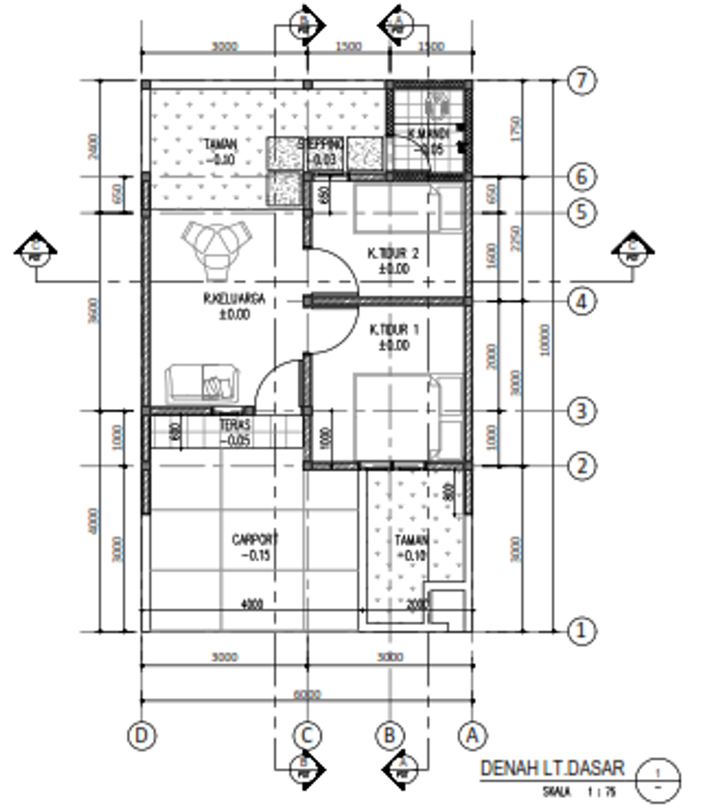
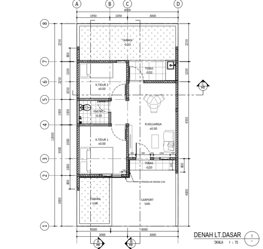
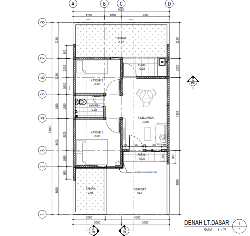
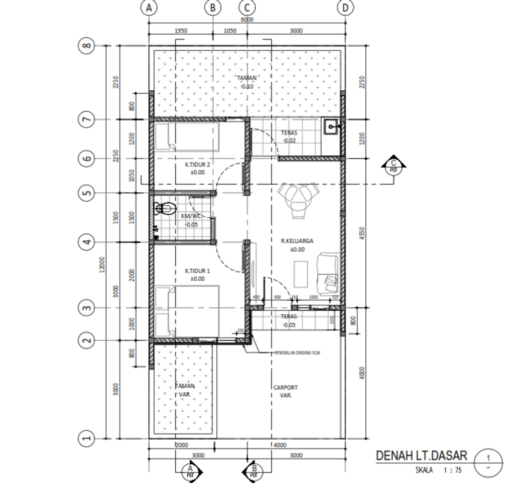
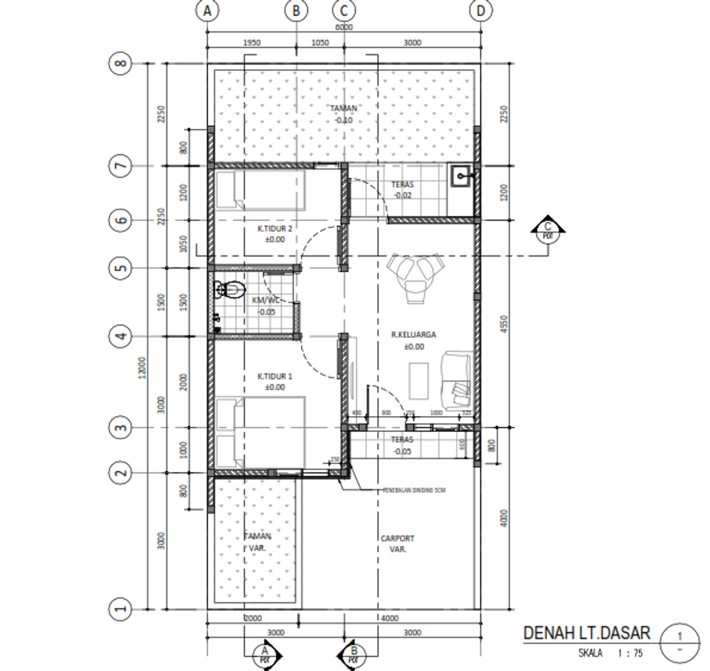
Luas Bangunan: 36m 2
Luas Lahan: 108m 2
Kamar Tidur: 2
Kamar Mandi: 1
a. Atap
GRC 9mm, rangka hollow
baja ringan 0,75
genteng beton flat, mahkota, hitam
b. Dinding
pasangan batako double plester aci dan cat
c. Lantai & Pondasi
pasangan keramik 40/40 warna putih, mulia/accura & pasangan batu kali


Harga: Rp 309.915.776
Luas Bangunan: 36m 2
Luas Lahan: 108m 2
Kamar Tidur: 2
Kamar Mandi: 1
a. Atap
GRC 9mm, rangka hollow baja ringan 0,75 genteng beton flat, mahkota, hitam
b. Dinding
pasangan batako double plester aci dan cat
c. Lantai & Pondasi
pasangan keramik 40/40 warna putih, mulia/accura & pasangan batu kali


Harga: Rp 289.738.870
Luas Bangunan: 36m 2
Luas Lahan: 72m 2
Kamar Tidur: 2
Kamar Mandi: 1
a. Atap
GRC 9mm, rangka hollow baja ringan 0,75 genteng beton flat, mahkota, hitam
b. Dinding
pasangan batako double plester aci dan cat
c. Lantai & Pondasi
pasangan keramik 40/40 warna putih, mulia/accura & pasangan batu kali


Harga: Rp 278.251.927
Luas Bangunan: 36m 2
Luas Lahan: 72m 2
Kamar Tidur: 2
Kamar Mandi: 1
a. Atap
GRC 9mm, rangka hollow baja ringan 0,75 genteng beton flat, mahkota, hitam
b. Dinding
pasangan batako double plester aci dan cat
c. Lantai & Pondasi
pasangan keramik 40/40 warna putih, mulia/accura & pasangan batu kali


Harga: Rp 337.073.344
Luas Bangunan: 36m 2
Luas Lahan: 108m 2
Kamar Tidur: 2
Kamar Mandi: 1
a. Atap
GRC 9mm, rangka hollow baja ringan 0,75 genteng beton flat, mahkota, hitam
b. Dinding
pasangan batako double plester aci dan cat
c. Lantai & Pondasi
pasangan keramik 40/40 warna putih, mulia/accura & pasangan batu kali


Harga: Rp 326.961.144
Luas Bangunan: 36m 2
Luas Lahan: 108m 2
Kamar Tidur: 2
Kamar Mandi: 1
a. Atap
GRC 9mm, rangka hollow baja ringan 0,75 genteng beton flat, mahkota, hitam
b. Dinding
pasangan batako double plester aci dan cat
c. Lantai & Pondasi
pasangan keramik 40/40 warna putih, mulia/accura & pasangan batu kali


Harga: Rp 296.025.456
Luas Bangunan: 36m 2
Luas Lahan: 84m 2
Kamar Tidur: 2
Kamar Mandi: 1
a. Atap
GRC 9mm, rangka hollow baja ringan 0,75 genteng beton flat, mahkota, hitam
b. Dinding
pasangan batako double plester aci dan cat
c. Lantai & Pondasi
pasangan keramik 40/40 warna putih, mulia/accura & pasangan batu kali


Harga: Rp 319.839.919
Luas Bangunan: 36m 2
Luas Lahan: 93m 2
Kamar Tidur: 2
Kamar Mandi: 1
a. Atap
GRC 9mm, rangka hollow baja ringan 0,75 genteng beton flat, mahkota, hitam
b. Dinding
pasangan batako double plester aci dan cat
c. Lantai & Pondasi
pasangan keramik 40/40 warna putih, mulia/accura & pasangan batu kali


Harga: Rp 321.766.800
Luas Bangunan: 36m 2
Luas Lahan: 84m 2
Kamar Tidur: 2
Kamar Mandi: 1
a. Atap
GRC 9mm, rangka hollow baja ringan 0,75 genteng beton flat, mahkota, hitam
b. Dinding
pasangan batako double plester aci dan cat
c. Lantai & Pondasi
pasangan keramik 40/40 warna putih, mulia/accura & pasangan batu kali


Harga: Rp 348.136.000
Luas Bangunan: 36m 2
Luas Lahan: 120m 2
Kamar Tidur: 2
Kamar Mandi: 1
a. Atap
GRC 9mm, rangka hollow baja ringan 0,75 genteng beton flat, mahkota, hitam
b. Dinding
pasangan batako double plester aci dan cat
c. Lantai & Pondasi
pasangan keramik 40/40 warna putih, mulia/accura & pasangan batu kali


Harga: Rp 185.000.000
Luas Bangunan: 30m 2
Luas Lahan: 60m 2
Kamar Tidur: 2
Kamar Mandi: 1
a. Atap
Baja ringan (galvallum)
b. Dinding
Batako Plester Aci
c. Lantai & Pondasi
Keramik 30x30 & Pondasi Batu Kali


Harga: Rp 344.975.568
Luas Bangunan: 36m 2
Luas Lahan: 100m 2
Kamar Tidur: 2
Kamar Mandi: 1
a. Atap
GRC 9mm, rangka hollow baja ringan 0,75 genteng beton flat, mahkota, hitam
b. Dinding
pasangan batako double plester aci dan cat
c. Lantai & Pondasi
pasangan keramik 40/40 warna putih, mulia/accura & pasangan batu kali


Harga: Rp 185.000.000
Luas Bangunan: 36m 2
Luas Lahan: 72m 2
Kamar Tidur: 2
Kamar Mandi: 1
a. Atap
Baja ringan (galvallum)
b. Dinding
Batako Plester Aci
c. Lantai & Pondasi
Keramik 30x30 & Pondasi Batu Kali


Harga: Rp 416.294.178
Luas Bangunan: 36m 2
Luas Lahan: 159m 2
Kamar Tidur: 2
Kamar Mandi: 1
a. Atap
GRC 9mm, rangka hollow baja ringan 0,75 genteng beton flat, mahkota, hitam
b. Dinding
pasangan batako double plester aci dan cat
c. Lantai & Pondasi
pasangan keramik 40/40 warna putih, mulia/accura & pasangan batu kali


Harga: Rp 281.046.704
Luas Bangunan: 36m 2
Luas Lahan: 72m 2
Kamar Tidur: 2
Kamar Mandi: 1
a. Atap
GRC 9mm, rangka hollow baja ringan 0,75 genteng beton flat, mahkota, hitam
b. Dinding
pasangan batako double plester aci dan cat
c. Lantai & Pondasi
pasangan keramik 40/40 warna putih, mulia/accura & pasangan batu kali


Harga: Rp 281.046.704
Luas Bangunan: 36m 2
Luas Lahan: 72m 2
Kamar Tidur: 1
Kamar Mandi: 1
a. Atap
GRC 9mm, rangka hollow baja ringan 0,75 genteng beton flat, mahkota, hitam
b. Dinding
pasangan batako double plester aci dan cat
c. Lantai & Pondasi
pasangan keramik 40/40 warna putih, mulia/accura & pasangan batu kali


Harga: Rp 185.000.000
Luas Bangunan: 36m 2
Luas Lahan: 84m 2
Kamar Tidur: 2
Kamar Mandi: -1
a. Atap
GRC 9mm, rangka hollow baja ringan 0,75 genteng beton flat, mahkota, hitam
b. Dinding
pasangan batako double plester aci dan cat
c. Lantai & Pondasi
pasangan keramik 40/40 warna putih, mulia/accura & pasangan batu kali