ID Lokasi : CBI1220022024T001
JAWA BARAT, KAB BOGOR, Kemang, Parakanjaya
PT AVINDO BANGUN GEMILANG
REAL ESTATE INDONESIA
(REI)
Subsidi : 0 Unit
Terjual Subsidi : 0 Unit
Komersil : 61 Unit
Terjual Komersil : 67 Unit
Lihat Siteplan DigitalRuko Perumahan KMR, Jl. Raya Salabenda no. A-8 JAWA BARAT, KAB BOGOR, Kemang, Parakanjaya
Telp : 02518638999
Email : avindobg@ymail.com
Website : https://hirotoland.com/





Harga: Rp 612.000.000
Luas Bangunan: 36m 2
Luas Lahan: 60m 2
Kamar Tidur: 2
Kamar Mandi: 1
a. Atap
Rangka baja ringan penutup atap genteng beton
b. Dinding
Dinding bata merah finish plesteran, acian dan cat
c. Lantai & Pondasi
Lantai ruang utama dan kamar granit ; kamar mandi keramik kasar ; teras keramik kasar
& Pondasi sitepile beton dan pondasi batu belah


Harga: Rp 667.000.000
Luas Bangunan: 42m 2
Luas Lahan: 72m 2
Kamar Tidur: 2
Kamar Mandi: 1
a. Atap
Rangka baja ringan penutup atap genteng beton
b. Dinding
Dinding bata merah finish plesteran, acian dan cat
c. Lantai & Pondasi
Lantai ruang utama dan kamar granit ; kamar mandi keramik kasar ; teras keramik kasar & Pondasi sitepile beton dan pondasi batu belah


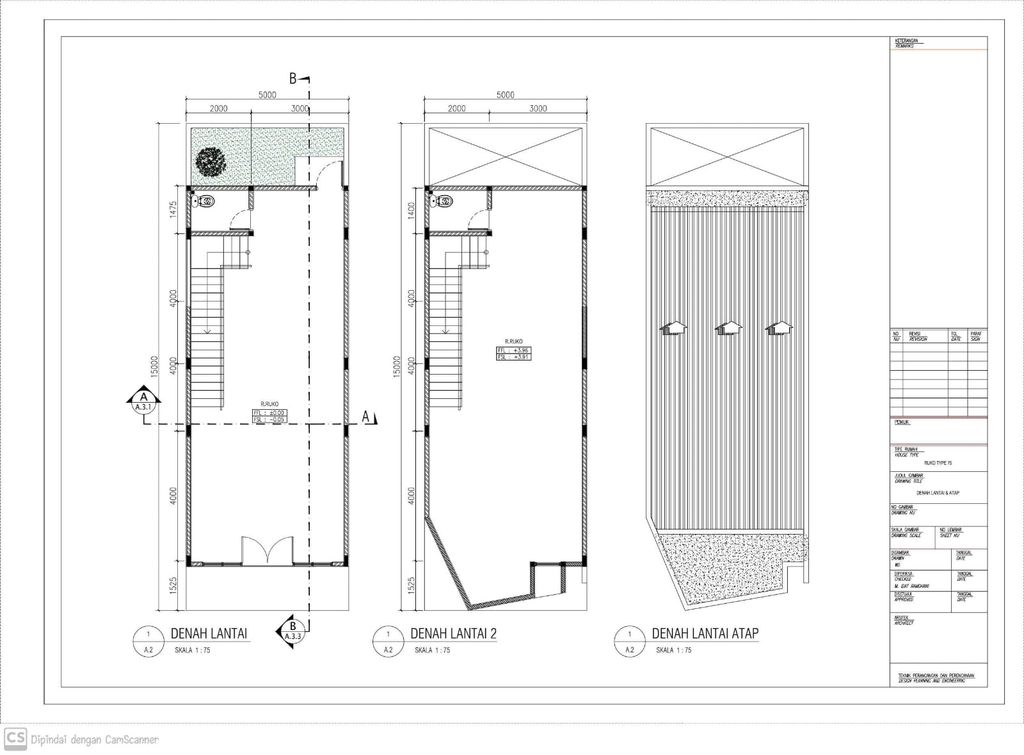
Harga: Rp 2.500.000.000
Luas Bangunan: 75m 2
Luas Lahan: 130m 2
Kamar Tidur: 0
Kamar Mandi: 2
a. Atap
Baja Ringan
b. Dinding
Bata Merah
c. Lantai & Pondasi
Homogeneus Tile ( HT ) & Pondasi Tapak + Batu Belah


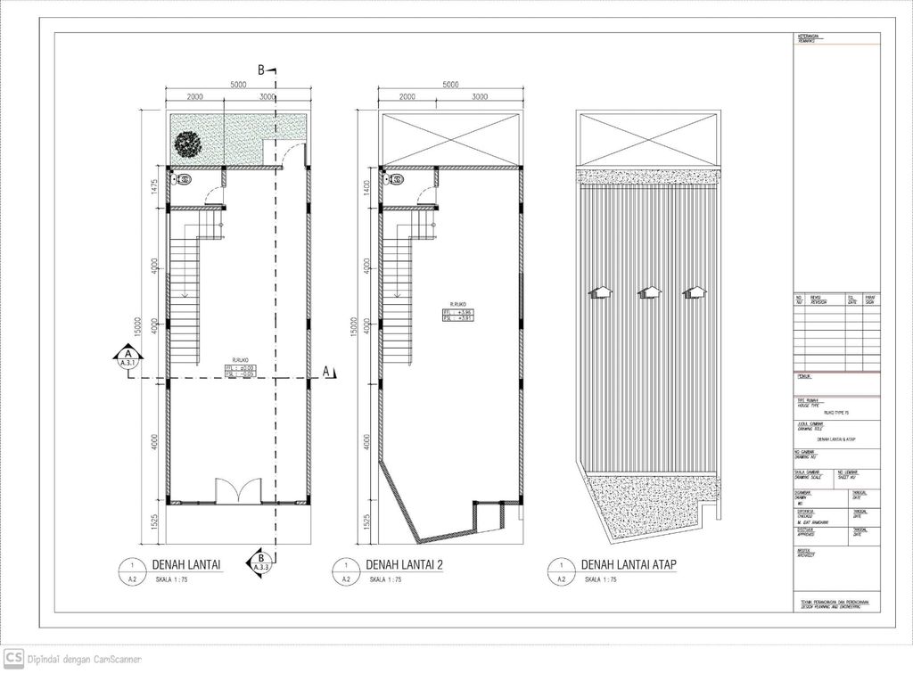
Harga: Rp 2.500.000.000
Luas Bangunan: 75m 2
Luas Lahan: 130m 2
Kamar Tidur: 0
Kamar Mandi: 2
a. Atap
Baja Ringan
b. Dinding
Bata Merah
c. Lantai & Pondasi
Homogeneus Tile ( HT ) & Pondasi Tapak + Batu Belah
Ruko Perumahan KMR, Jl. Raya Salabenda no. A-8 JAWA BARAT, KAB BOGOR, Kemang, Parakanjaya
Telp : 02518638999
Email : avindobg@ymail.com
Website : https://hirotoland.com/