ID Lokasi : CBI1520012023T001
JAWA BARAT, KAB BOGOR, Ciampea, Ciampea
PT. TAMAN PANTAI KRONJO
Himpunan Pengembang Permukiman dan Perumahan Rakyat
(HIMPERRA)
Subsidi : 1 Unit
Terjual Subsidi : 62 Unit
Komersil : 8 Unit
Terjual Komersil : 8 Unit
Lihat Siteplan Digital




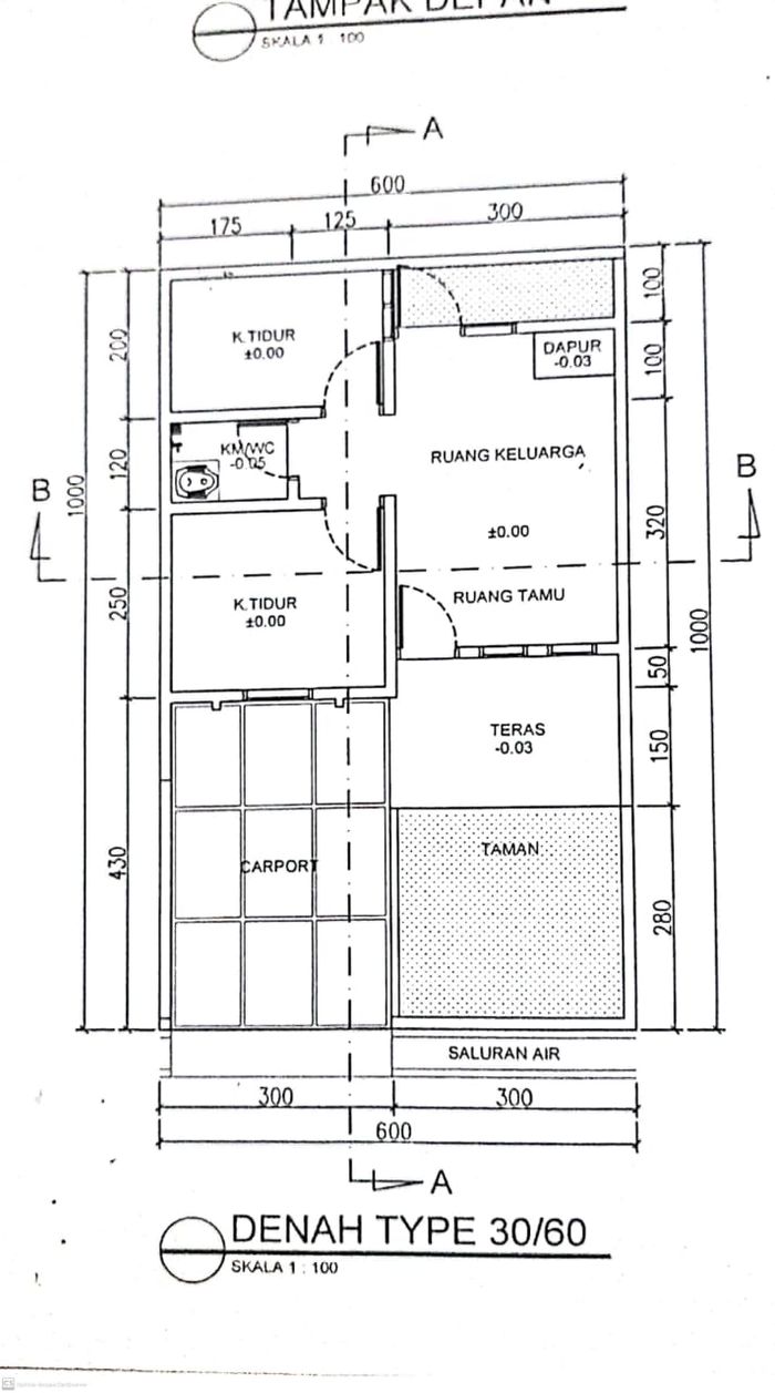
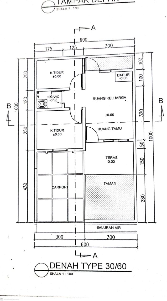
Harga: Rp 168.000.000
Luas Bangunan: 30m 2
Luas Lahan: 60m 2
Kamar Tidur: 2
Kamar Mandi: 1
a. Atap
genteng Beton
b. Dinding
Hebel
c. Lantai & Pondasi
Keramik & batu kali


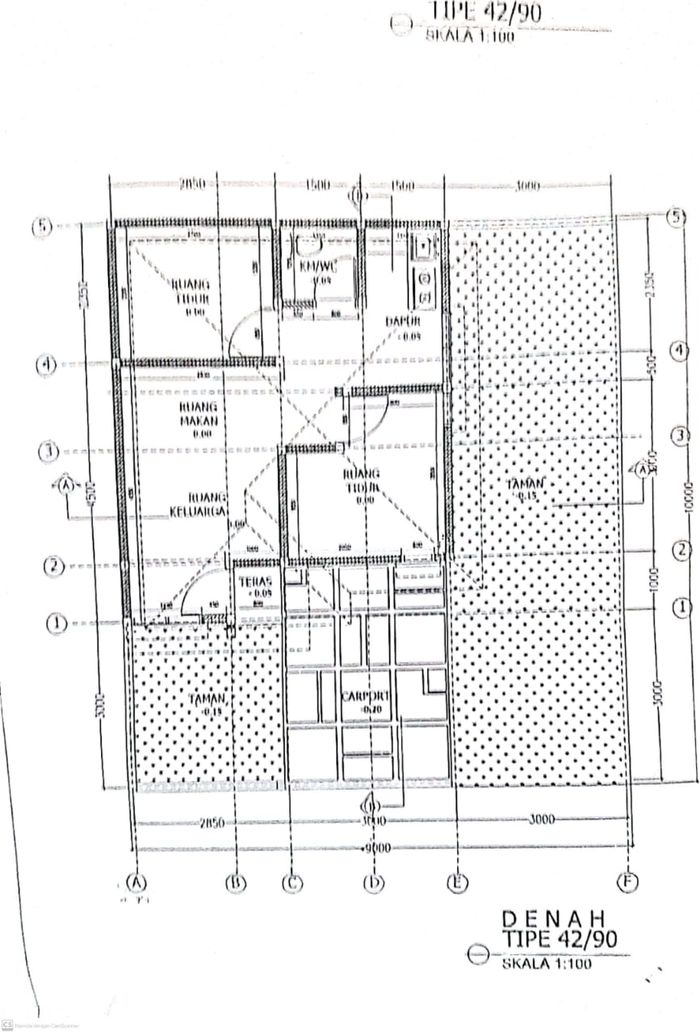
Harga: Rp 454.000.000
Luas Bangunan: 42m 2
Luas Lahan: 90m 2
Kamar Tidur: 2
Kamar Mandi: 1
a. Atap
Baja Ringan Genteng Beton
b. Dinding
Hebel
c. Lantai & Pondasi
Keramik & Batu Kali


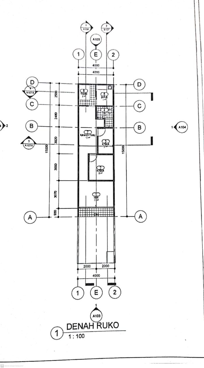
Harga: Rp 326.000.000
Luas Bangunan: 30m 2
Luas Lahan: 60m 2
Kamar Tidur: 2
Kamar Mandi: 1
a. Atap
Genteng Beton
b. Dinding
Hebel
c. Lantai & Pondasi
Keramik & Batu kali


Harga: Rp 400.000.000
Luas Bangunan: 60m 2
Luas Lahan: 60m 2
Kamar Tidur: 2
Kamar Mandi: 1
a. Atap
Spandek
b. Dinding
Hebel
c. Lantai & Pondasi
Keramik & batu Kali