ID Lokasi : CKR0120042025T001
JAWA BARAT, KAB BEKASI, Tarumajaya, Pahlawan Setia
PT PERMATA RIZQI ALAM RAYA
PERKUMPULAN ASOSIASI PENGEMBANG PERUMAHAN DAN PERMUKIMAN SELURUH INDONESIA
(APERSI)
Subsidi : 0 Unit
Terjual Subsidi : 0 Unit
Komersil : 47 Unit
Terjual Komersil : 43 Unit
Lihat Siteplan Digital




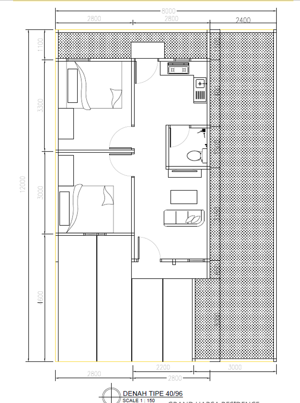
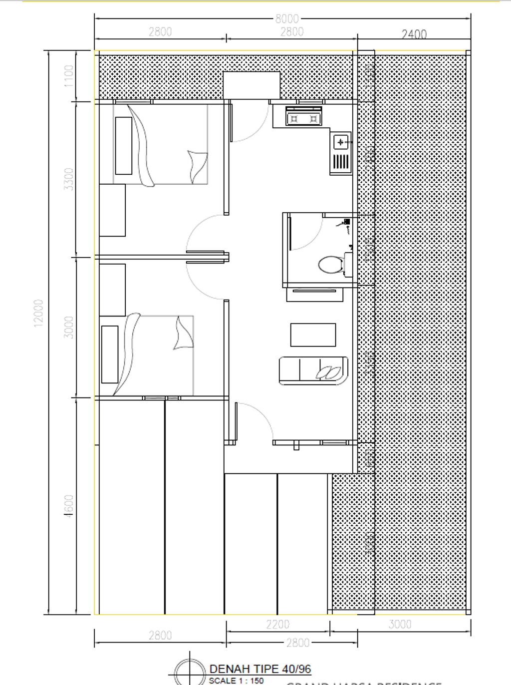
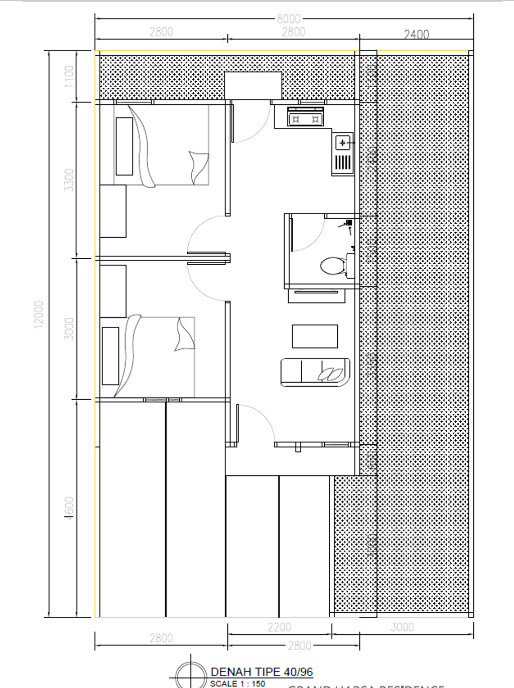
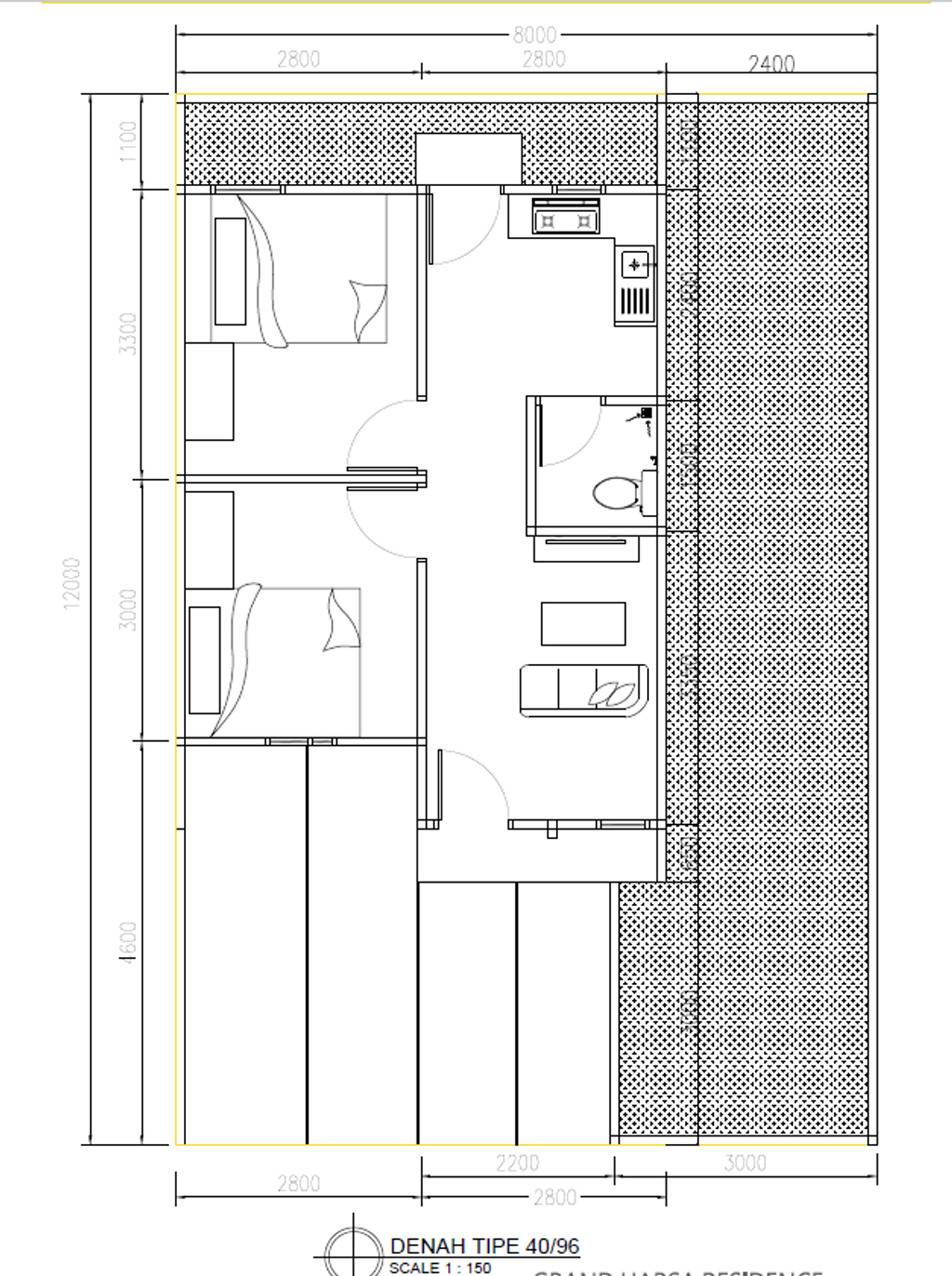
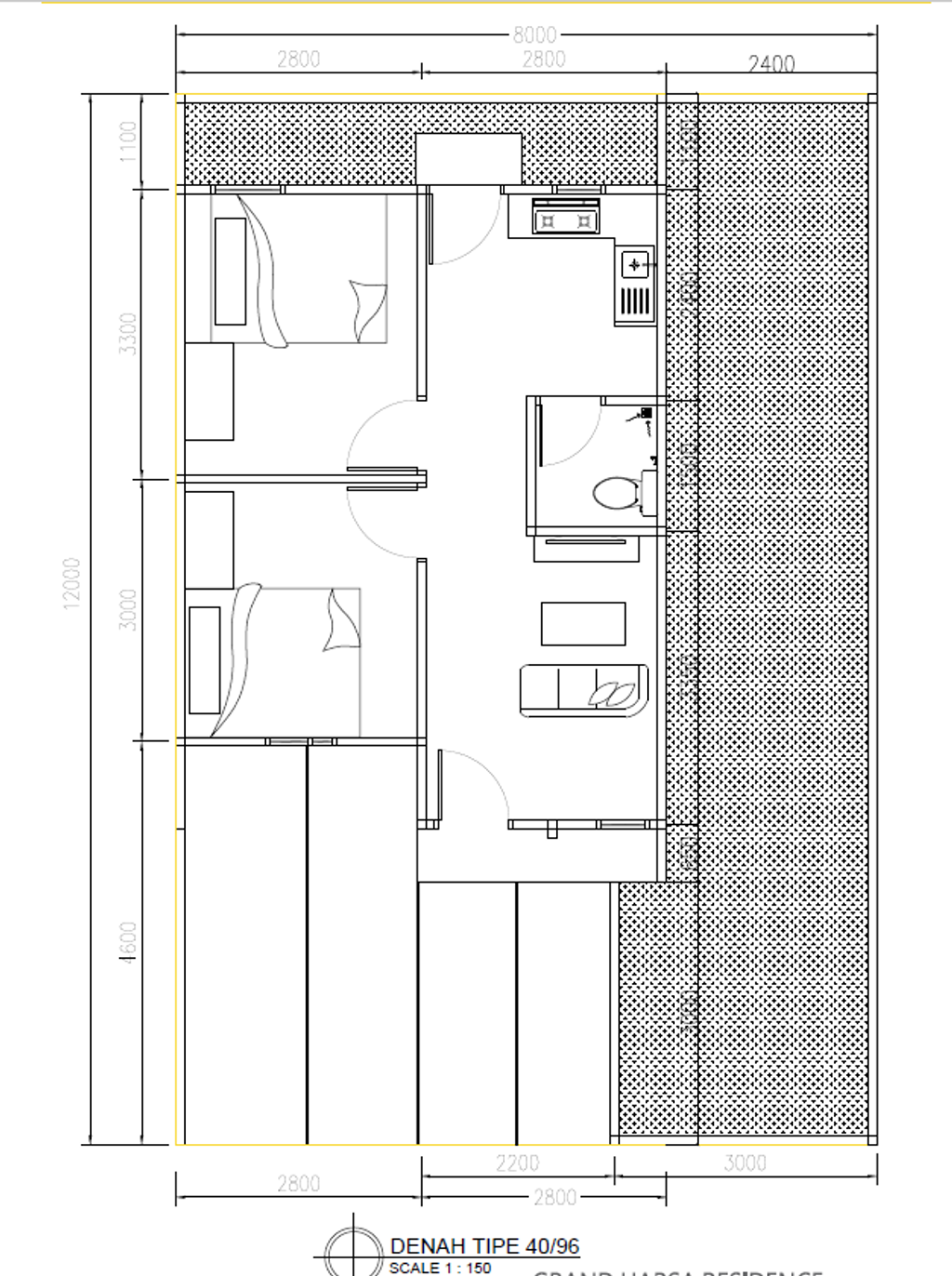
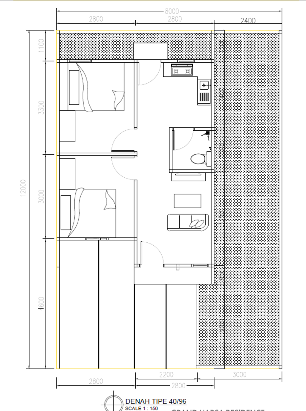
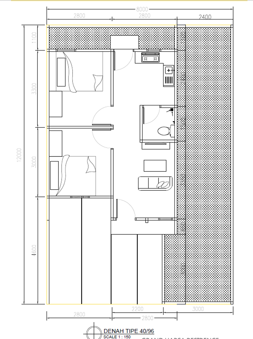
Harga: Rp 623.000.000
Luas Bangunan: 40m 2
Luas Lahan: 96m 2
Kamar Tidur: 2
Kamar Mandi: 1
a. Atap
METAL BAJA
b. Dinding
HEBEL
c. Lantai & Pondasi
GRANIT DAN KERAMIK & BATU KALI


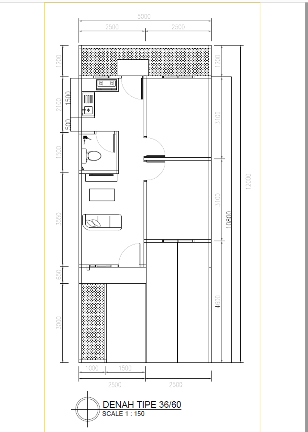
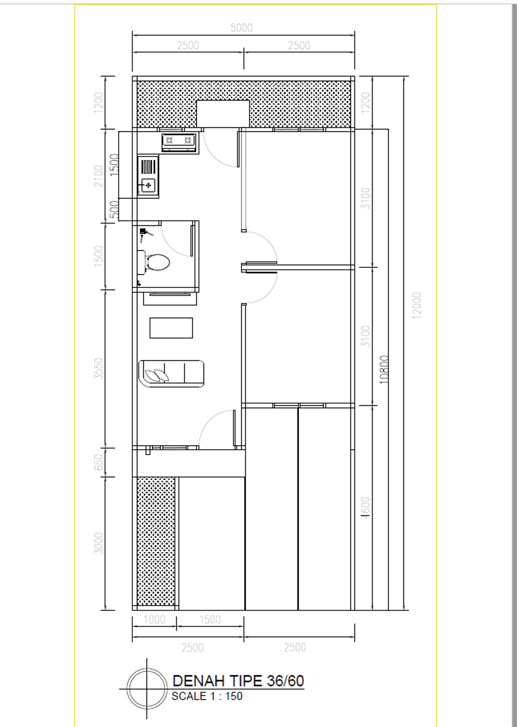
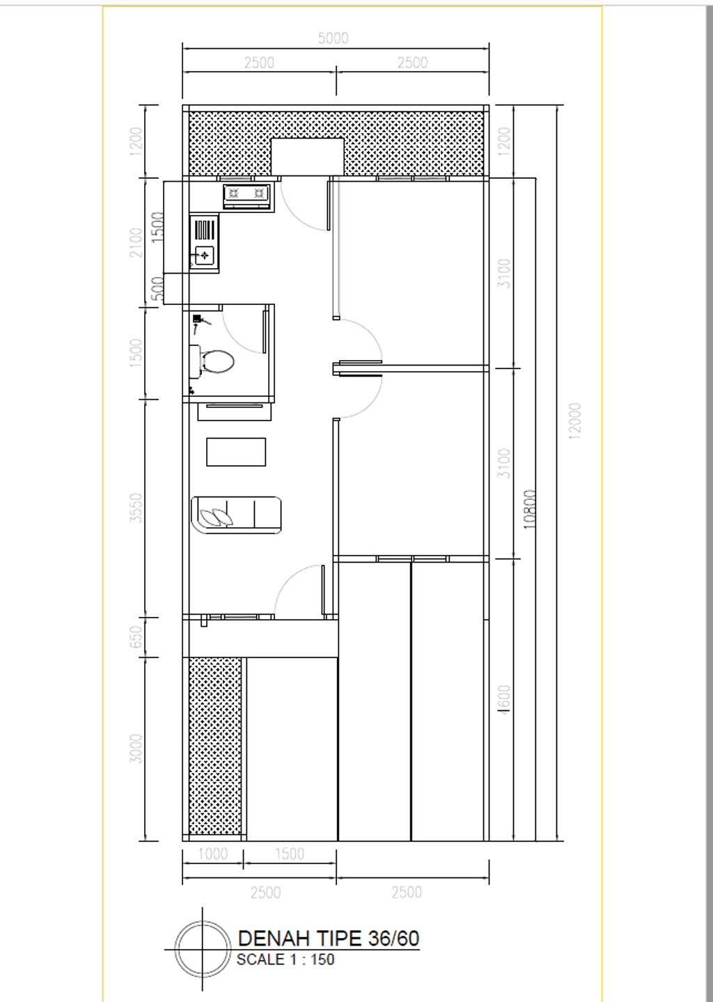
Harga: Rp 475.000.000
Luas Bangunan: 36m 2
Luas Lahan: 60m 2
Kamar Tidur: 2
Kamar Mandi: 1
a. Atap
Metal Baja
b. Dinding
Hebel
c. Lantai & Pondasi
Granit dan Lantai & Batu Kali


Harga: Rp 478.000.000
Luas Bangunan: 36m 2
Luas Lahan: 61m 2
Kamar Tidur: 2
Kamar Mandi: 1
a. Atap
Metal Baja
b. Dinding
Hebel
c. Lantai & Pondasi
Granit dan Keramik & Batu Kali


Harga: Rp 503.000.000
Luas Bangunan: 36m 2
Luas Lahan: 65m 2
Kamar Tidur: 2
Kamar Mandi: 1
a. Atap
Metal Baja
b. Dinding
Hebel
c. Lantai & Pondasi
Granit dan Keramik & Batu Kali


Harga: Rp 715.000.000
Luas Bangunan: 40m 2
Luas Lahan: 132m 2
Kamar Tidur: 2
Kamar Mandi: 1
a. Atap
Metal Baja
b. Dinding
Hebel
c. Lantai & Pondasi
Granit dan Keramik & Batu Kali


Harga: Rp 571.000.000
Luas Bangunan: 40m 2
Luas Lahan: 82m 2
Kamar Tidur: 2
Kamar Mandi: 1
a. Atap
Metal Baja
b. Dinding
Hebel
c. Lantai & Pondasi
Granit dan Keramik & Batu Kali


Harga: Rp 673.000.000
Luas Bangunan: 40m 2
Luas Lahan: 116m 2
Kamar Tidur: 2
Kamar Mandi: 1
a. Atap
Metal Baja
b. Dinding
Hebel
c. Lantai & Pondasi
Granit dan Keramik & Batu Kali


Harga: Rp 571.000.000
Luas Bangunan: 40m 2
Luas Lahan: 79m 2
Kamar Tidur: 2
Kamar Mandi: 1
a. Atap
Metal Baja
b. Dinding
Hebel
c. Lantai & Pondasi
Granit dan Keramik & Batu Kali


Harga: Rp 553.000.000
Luas Bangunan: 40m 2
Luas Lahan: 76m 2
Kamar Tidur: 2
Kamar Mandi: 1
a. Atap
Metal Baja
b. Dinding
Hebel
c. Lantai & Pondasi
Granit dan Keramik & Batu Kali


Harga: Rp 547.000.000
Luas Bangunan: 74m 2
Luas Lahan: 60m 2
Kamar Tidur: 2
Kamar Mandi: 1
a. Atap
Mrtal Baja
b. Dinding
Hebel
c. Lantai & Pondasi
Granit dan Keramik & Batu Kali


Harga: Rp 494.000.000
Luas Bangunan: 36m 2
Luas Lahan: 63m 2
Kamar Tidur: 2
Kamar Mandi: 1
a. Atap
Metal Baja
b. Dinding
Hebel
c. Lantai & Pondasi
Granit dan Keramik & Batu Kali


Harga: Rp 539.000.000
Luas Bangunan: 40m 2
Luas Lahan: 72m 2
Kamar Tidur: 2
Kamar Mandi: 1
a. Atap
Metal Baja
b. Dinding
Hebel
c. Lantai & Pondasi
Granit dan Keramik & Batu Kali