ID Lokasi : CKR0620072025T001
JAWA BARAT, KAB BEKASI, Tambun Selatan, Mekarsari
PT BERLIAN SEJAHTRA BERSAMA
PERKUMPULAN ASOSIASI PENGEMBANG PERUMAHAN DAN PERMUKIMAN SELURUH INDONESIA
(APERSI)
Subsidi : 0 Unit
Terjual Subsidi : 0 Unit
Komersil : 10 Unit
Terjual Komersil : 16 Unit
Lihat Siteplan Digital




Harga: Rp 0
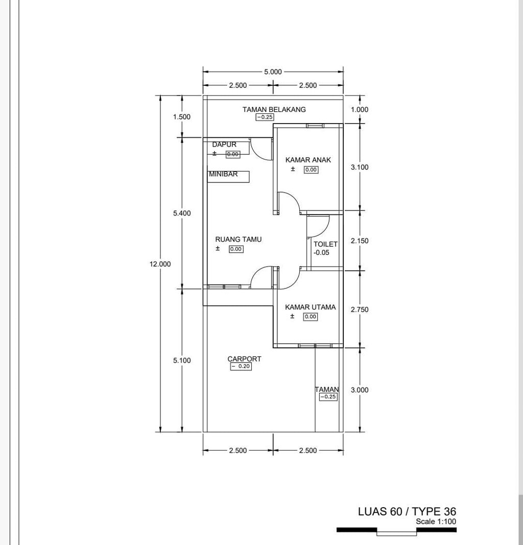
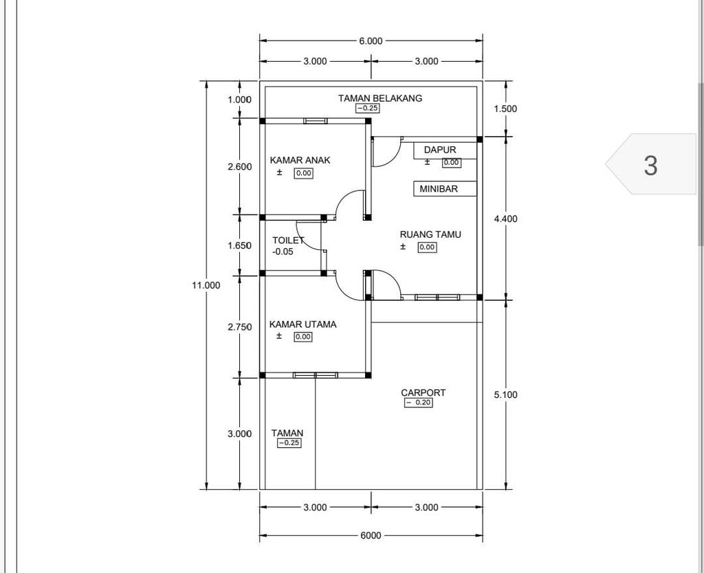
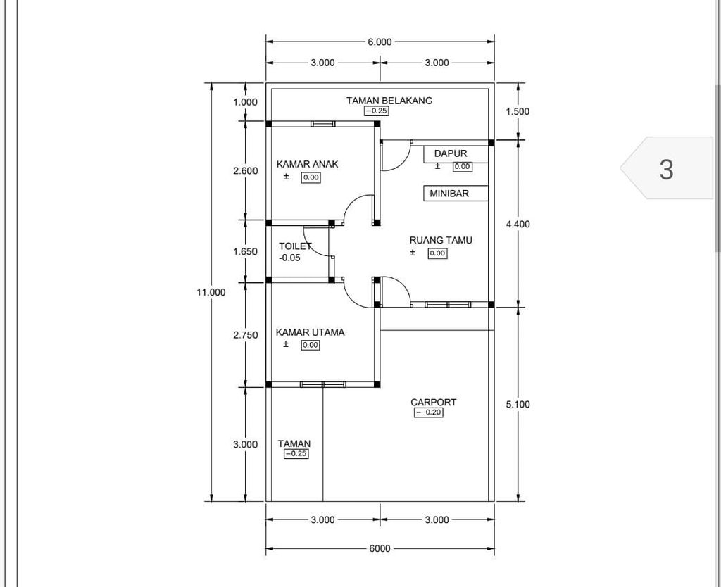
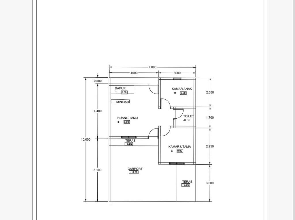
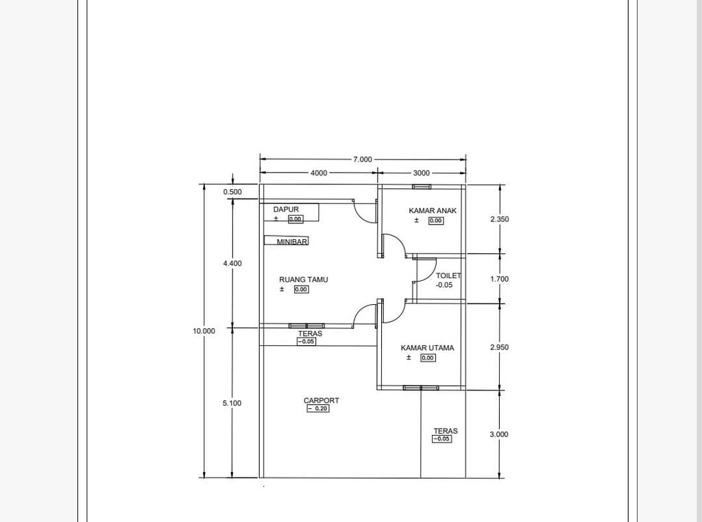
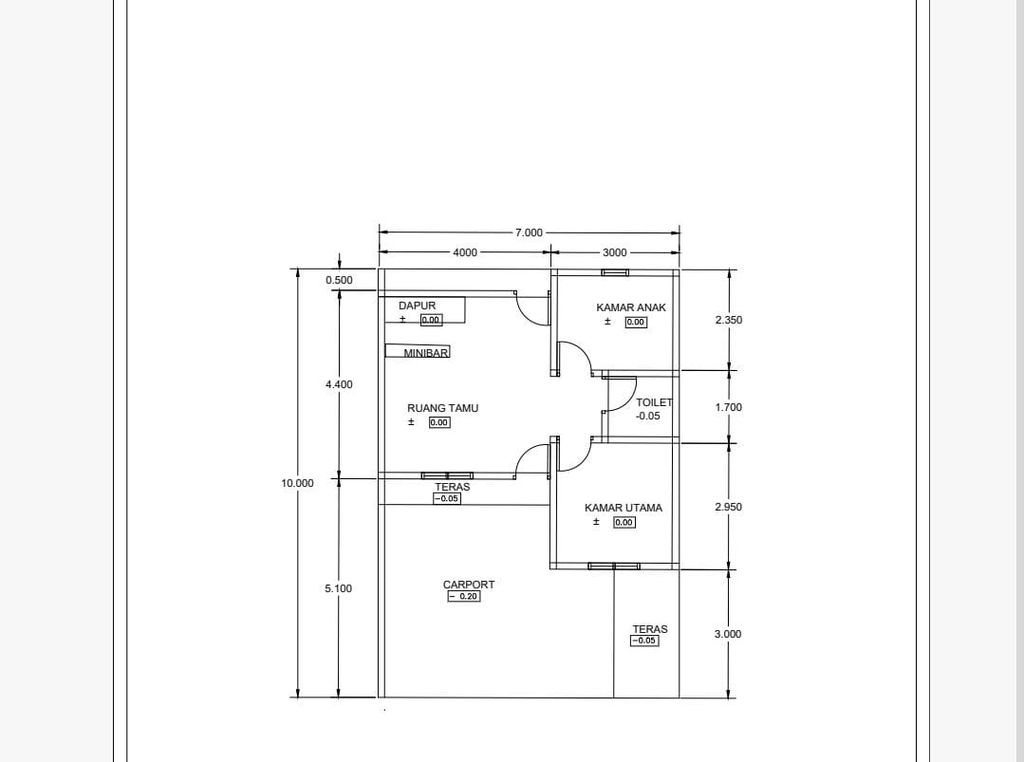
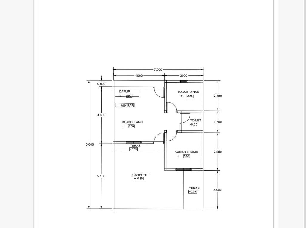
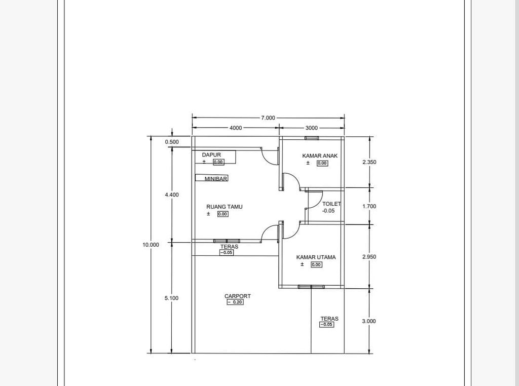
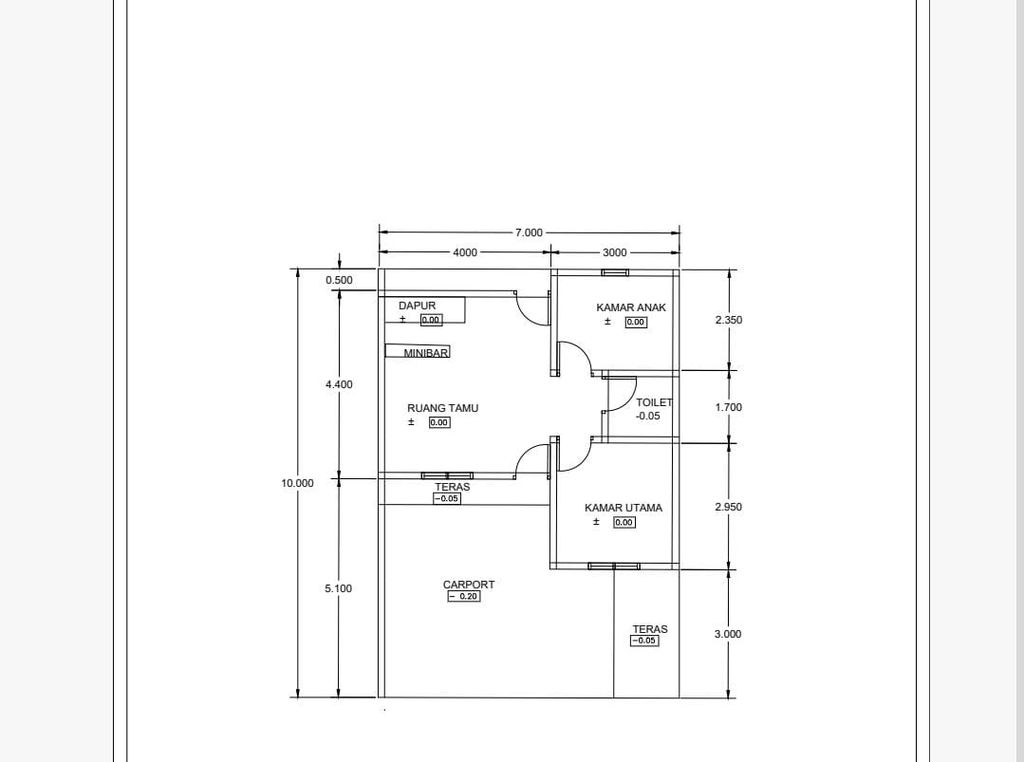
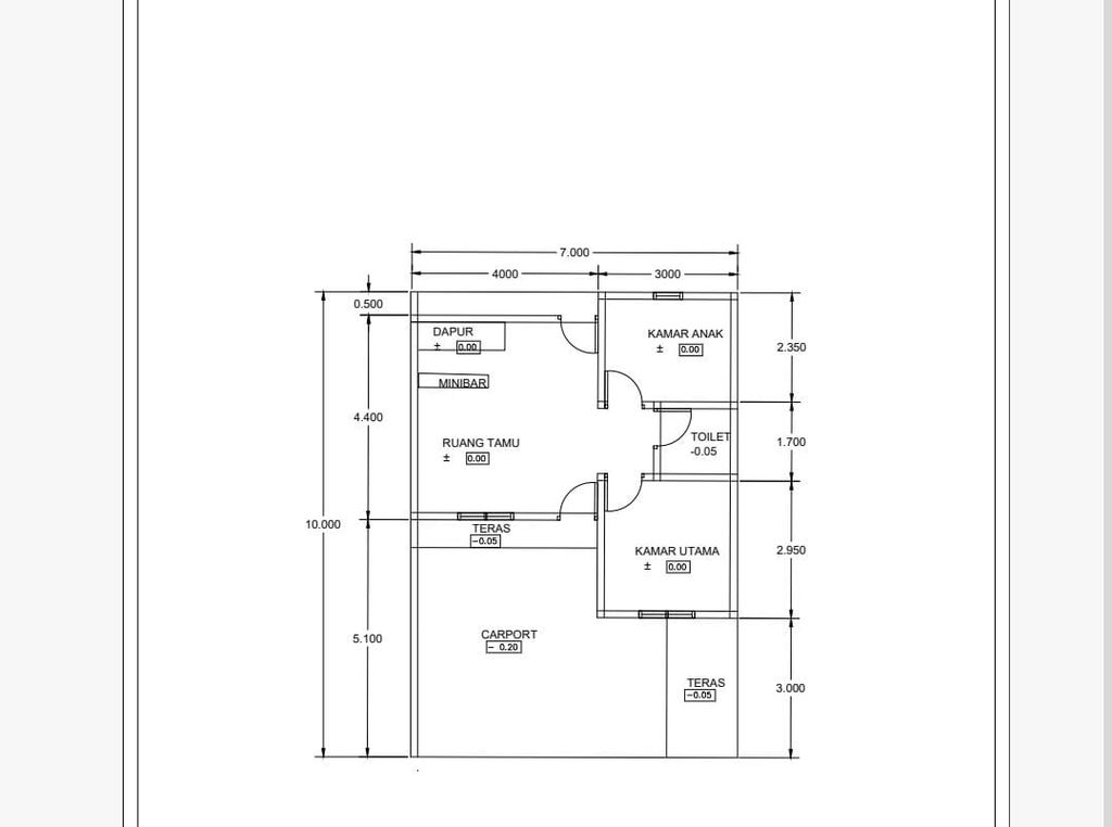
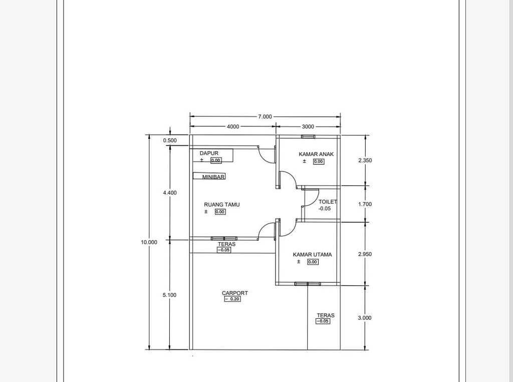
Luas Bangunan: 36m 2
Luas Lahan: 60m 2
Kamar Tidur: 2
Kamar Mandi: 1
a. Atap
Rangka Baja + Atap Metal Berpasir
b. Dinding
Dinding Herbel
c. Lantai & Pondasi
Keramik + Granit Tile & Batu Kali


Harga: Rp 0
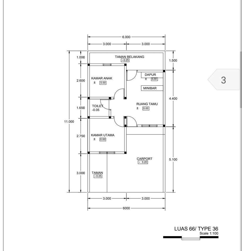
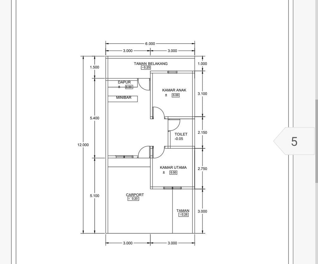
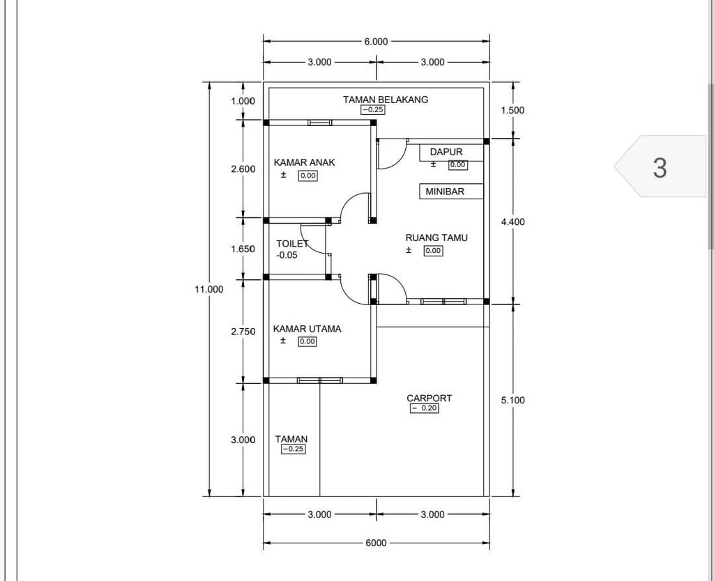
Luas Bangunan: 36m 2
Luas Lahan: 66m 2
Kamar Tidur: 2
Kamar Mandi: 1
a. Atap
Rangka Baja + Atap Metal Berpasir
b. Dinding
Dinding Herbel
c. Lantai & Pondasi
Keramik + Granit Tile & Batu Kali


Harga: Rp 0
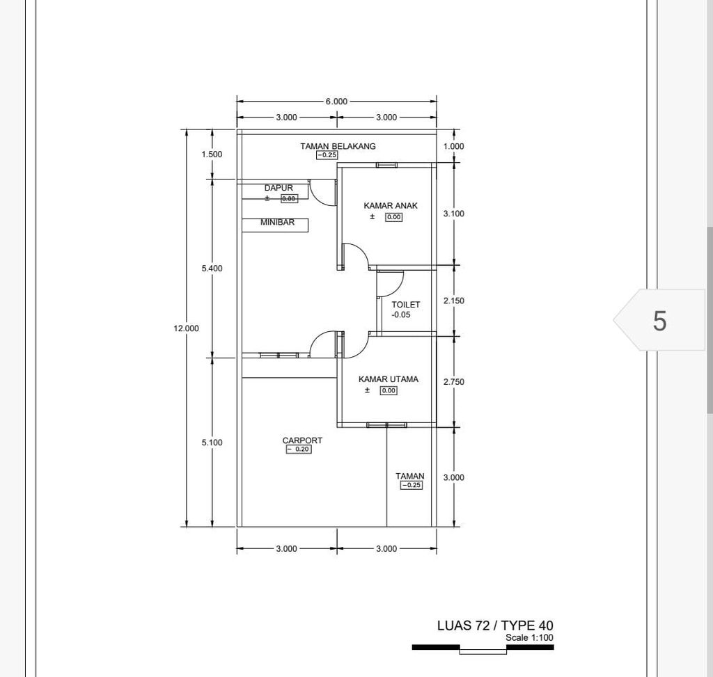
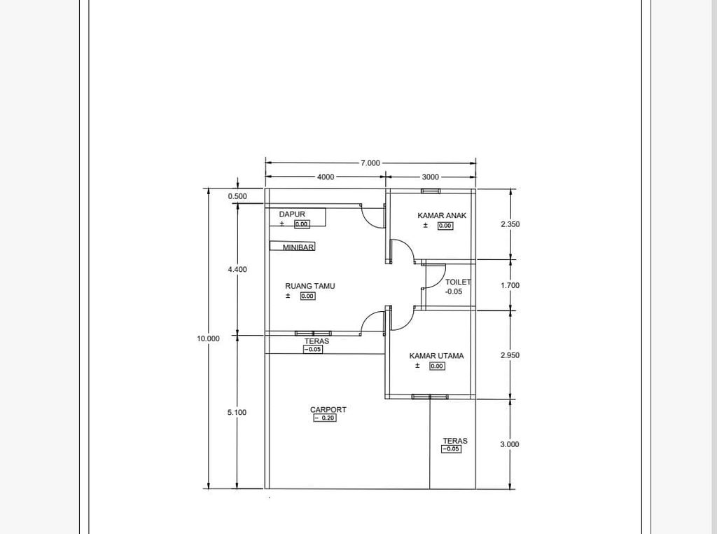
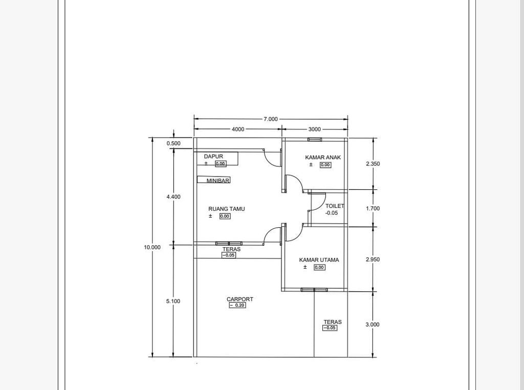
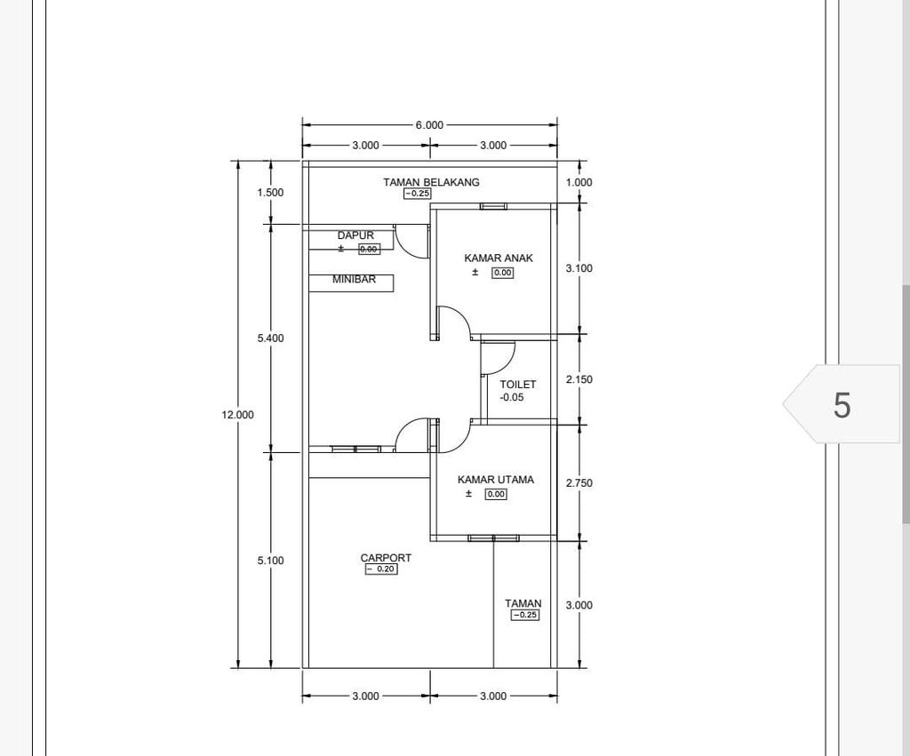
Luas Bangunan: 40m 2
Luas Lahan: 72m 2
Kamar Tidur: 2
Kamar Mandi: 1
a. Atap
Rangka Baja + Atap Metal Berpasir
b. Dinding
Dinding Herbel
c. Lantai & Pondasi
Keramik + Granit Tile & Batu Kali


Harga: Rp 0
Luas Bangunan: 36m 2
Luas Lahan: 69m 2
Kamar Tidur: 2
Kamar Mandi: 1
a. Atap
Rangka Baja + Atap Metal Berpasir
b. Dinding
Dinding Herbel
c. Lantai & Pondasi
Keramik + Granit Tile & Batu Kali


Harga: Rp 0
Luas Bangunan: 36m 2
Luas Lahan: 71m 2
Kamar Tidur: 2
Kamar Mandi: 1
a. Atap
Rangka Baja + Atap Metal Berpasir
b. Dinding
Dinding Herbel
c. Lantai & Pondasi
Keramik + Granit Tile & Batu Kali


Harga: Rp 0
Luas Bangunan: 36m 2
Luas Lahan: 70m 2
Kamar Tidur: 2
Kamar Mandi: 1
a. Atap
Rangka Baja + Atap Metal Berpasir
b. Dinding
Dinding Herbel
c. Lantai & Pondasi
Keramik + Granit Tile & Batu Kali


Harga: Rp 0
Luas Bangunan: 40m 2
Luas Lahan: 100m 2
Kamar Tidur: 2
Kamar Mandi: 1
a. Atap
Rangka Baja + Atap Metal Berpasir
b. Dinding
Dinding Herbel
c. Lantai & Pondasi
Keramik + Granit Tile & Batu Kali


Harga: Rp 0
Luas Bangunan: 40m 2
Luas Lahan: 116m 2
Kamar Tidur: 2
Kamar Mandi: 1
a. Atap
Rangka Baja + Atap Metal Berpasir
b. Dinding
Dinding Herbel
c. Lantai & Pondasi
Keramik + Granit Tile & Batu Kali


Harga: Rp 0
Luas Bangunan: 40m 2
Luas Lahan: 106m 2
Kamar Tidur: 2
Kamar Mandi: 1
a. Atap
Rangka Baja + Atap Metal Berpasir
b. Dinding
Dinding Herbel
c. Lantai & Pondasi
Keramik + Granit Tile & Batu Kali


Harga: Rp 0
Luas Bangunan: 40m 2
Luas Lahan: 82m 2
Kamar Tidur: 2
Kamar Mandi: 1
a. Atap
Rangka Baja + Atap Metal Berpasir
b. Dinding
Dinding Herbel
c. Lantai & Pondasi
Keramik + Granit Tile & Batu Kali


Harga: Rp 0
Luas Bangunan: 40m 2
Luas Lahan: 98m 2
Kamar Tidur: 2
Kamar Mandi: 1
a. Atap
Rangka Baja + Atap Metal Berpasir
b. Dinding
Dinding Herbel
c. Lantai & Pondasi
Keramik + Granit Tile & Batu Kali


Harga: Rp 0
Luas Bangunan: 40m 2
Luas Lahan: 102m 2
Kamar Tidur: 2
Kamar Mandi: 1
a. Atap
Rangka Baja + Atap Metal Berpasir
b. Dinding
Dinding Herbel
c. Lantai & Pondasi
Keramik + Granit Tile & Batu Kali


Harga: Rp 0
Luas Bangunan: 40m 2
Luas Lahan: 104m 2
Kamar Tidur: 2
Kamar Mandi: 1
a. Atap
Rangka Baja + Atap Metal Berpasir
b. Dinding
Dinding Herbel
c. Lantai & Pondasi
Keramik + Granit Tile & Batu Kali


Harga: Rp 0
Luas Bangunan: 40m 2
Luas Lahan: 107m 2
Kamar Tidur: 2
Kamar Mandi: 1
a. Atap
Rangka Baja + Atap Metal Berpasir
b. Dinding
Dinding Herbel
c. Lantai & Pondasi
Keramik + Granit Tile & Batu Kali


Harga: Rp 0
Luas Bangunan: 40m 2
Luas Lahan: 94m 2
Kamar Tidur: 2
Kamar Mandi: 1
a. Atap
Rangka Baja + Atap Metal Berpasir
b. Dinding
Dinding Herbel
c. Lantai & Pondasi
Keramik + Granit Tile & Batu Kali


Harga: Rp 0
Luas Bangunan: 40m 2
Luas Lahan: 80m 2
Kamar Tidur: 2
Kamar Mandi: 1
a. Atap
Rangka Baja + Atap Metal Berpasir
b. Dinding
Dinding Herbel
c. Lantai & Pondasi
Keramik + Granit Tile & Batu Kali


Harga: Rp 0
Luas Bangunan: 40m 2
Luas Lahan: 96m 2
Kamar Tidur: 2
Kamar Mandi: 1
a. Atap
Rangka Baja + Atap Metal Berpasir
b. Dinding
Dinding Herbel
c. Lantai & Pondasi
Keramik + Granit Tile & Batu Kali


Harga: Rp 0
Luas Bangunan: 40m 2
Luas Lahan: 100m 2
Kamar Tidur: 2
Kamar Mandi: 1
a. Atap
Rangka Baja + Atap Metal Berpasir
b. Dinding
Dinding Herbel
c. Lantai & Pondasi
Keramik + Granit Tile & Batu Kali


Harga: Rp 0
Luas Bangunan: 40m 2
Luas Lahan: 90m 2
Kamar Tidur: 2
Kamar Mandi: 1
a. Atap
Rangka Baja + Atap Metal Berpasir
b. Dinding
Dinding Herbel
c. Lantai & Pondasi
Keramik + Granit Tile & Batu Kali


Harga: Rp 0
Luas Bangunan: 40m 2
Luas Lahan: 96m 2
Kamar Tidur: 3
Kamar Mandi: 2
a. Atap
Rangka Baja + Atap Metal Berpasir
b. Dinding
Dinding Herbel
c. Lantai & Pondasi
Keramik + Granit Tile & Batu Kali


Harga: Rp 0
Luas Bangunan: 36m 2
Luas Lahan: 61m 2
Kamar Tidur: 2
Kamar Mandi: 1
a. Atap
Rangka Baja + Atap Metal Berpasir
b. Dinding
Dinding Herbel
c. Lantai & Pondasi
Keramik + Granit Tile & Batu Kali


Harga: Rp 0
Luas Bangunan: 40m 2
Luas Lahan: 97m 2
Kamar Tidur: 2
Kamar Mandi: 1
a. Atap
Rangka Baja + Atap Metal Berpasir
b. Dinding
Dinding Herbel
c. Lantai & Pondasi
Keramik + Granit Tile & Batu Kali


Harga: Rp 0
Luas Bangunan: 40m 2
Luas Lahan: 76m 2
Kamar Tidur: 2
Kamar Mandi: 1
a. Atap
Rangka Baja + Atap Metal Berpasir
b. Dinding
Dinding Herbel
c. Lantai & Pondasi
Keramik + Granit Tile & Batu Kali


Harga: Rp 0
Luas Bangunan: 40m 2
Luas Lahan: 108m 2
Kamar Tidur: 2
Kamar Mandi: 1
a. Atap
Rangka Baja + Atap Metal Berpasir
b. Dinding
Dinding Herbel
c. Lantai & Pondasi
Keramik + Granit Tile & Batu Kali