ID Lokasi : CKR0620072025T002
JAWA BARAT, KAB BEKASI, Tambun Selatan, Mekarsari
PT PANDAWA SEJAHTERA BERSAMA PROPERTINDO
PERKUMPULAN ASOSIASI PENGEMBANG PERUMAHAN DAN PERMUKIMAN SELURUH INDONESIA
(APERSI)
Subsidi : 0 Unit
Terjual Subsidi : 0 Unit
Komersil : 47 Unit
Terjual Komersil : 2 Unit
Lihat Siteplan Digital




Harga: Rp 0
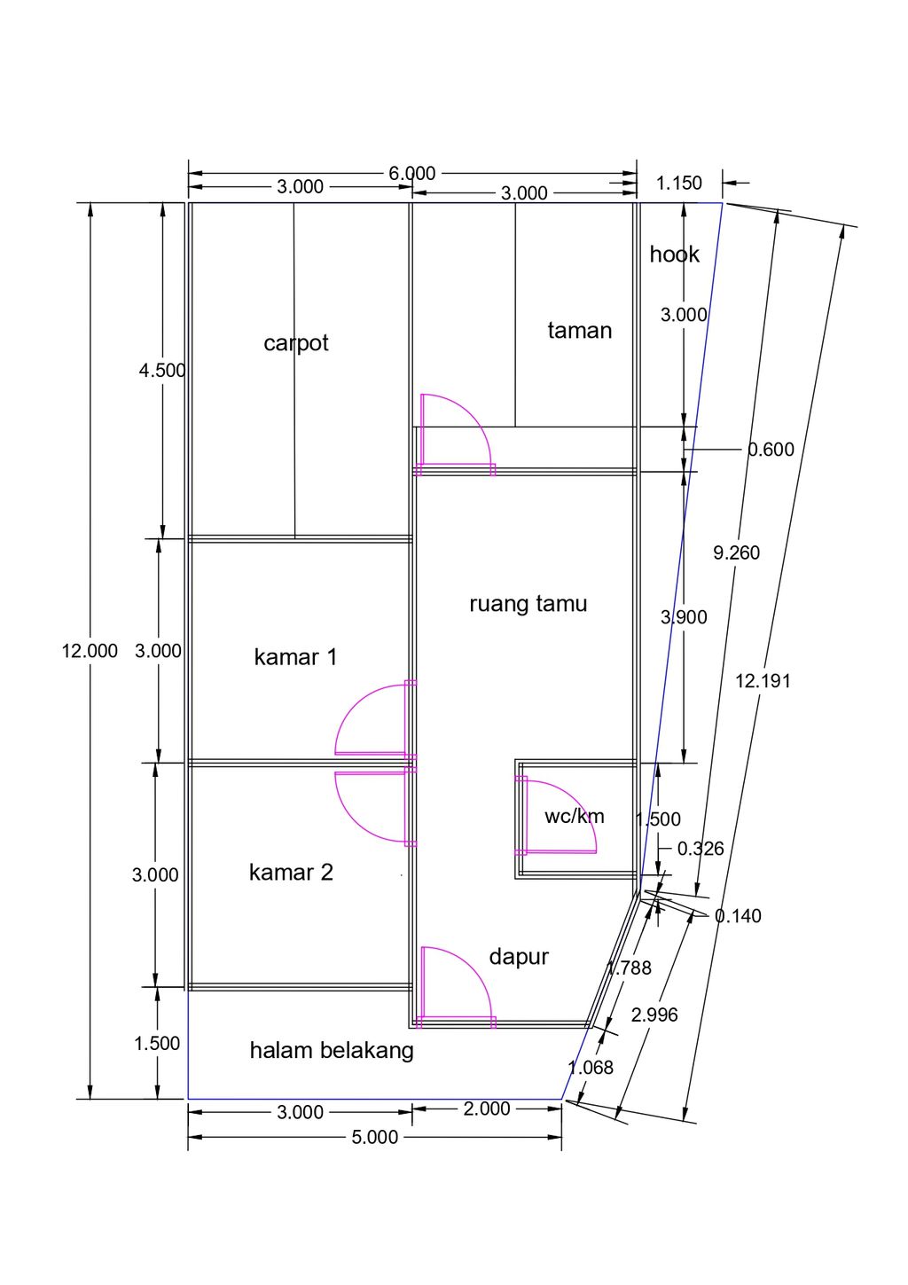
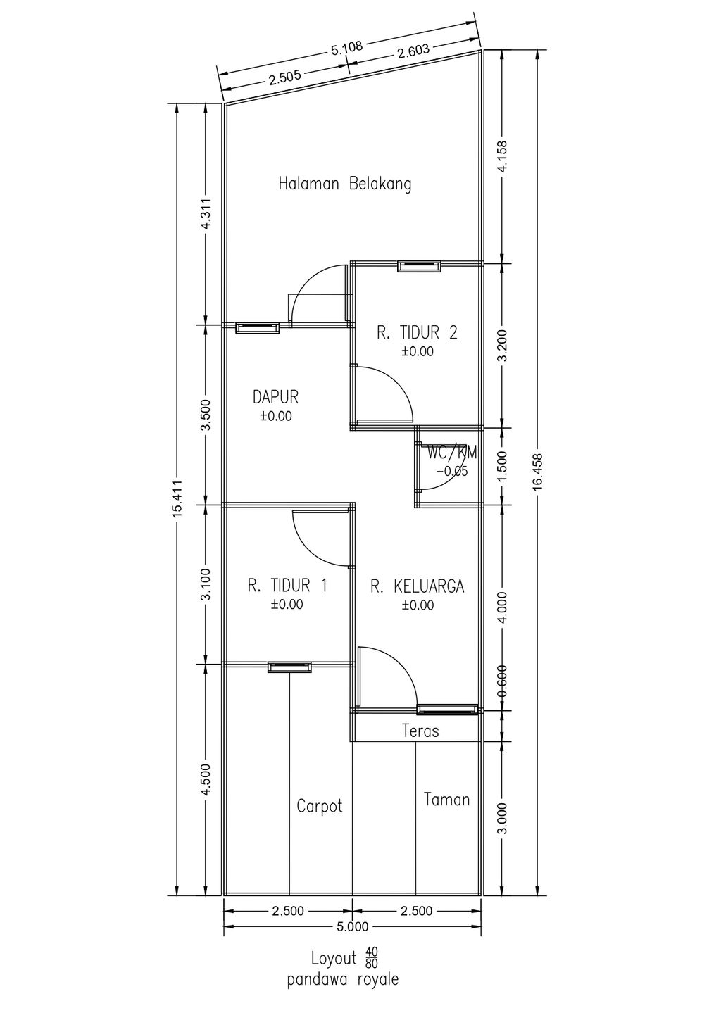
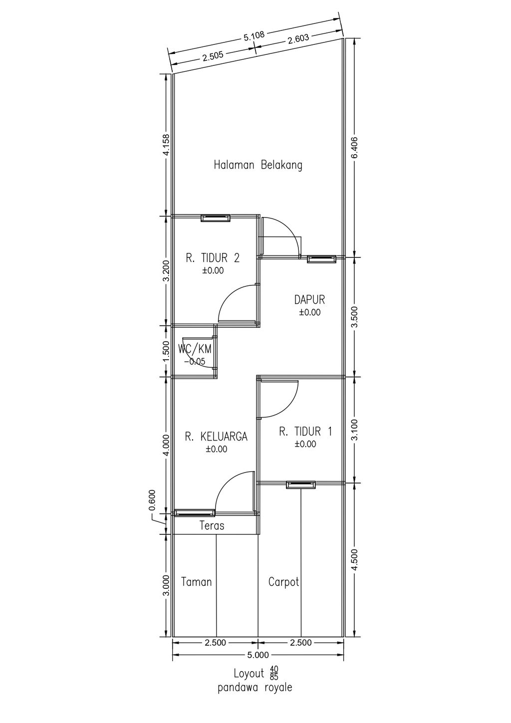
Luas Bangunan: 36m 2
Luas Lahan: 60m 2
Kamar Tidur: 2
Kamar Mandi: 1
a. Atap
Rangka Baja Ringan + Atap Metal Berpasir
b. Dinding
Dinding Herbel
c. Lantai & Pondasi
Keramik + Granit Tile & Batu Kali


Harga: Rp 0
Luas Bangunan: 36m 2
Luas Lahan: 62m 2
Kamar Tidur: 2
Kamar Mandi: 1
a. Atap
Rangka Baja Ringan + Atap Metal Berpasir
b. Dinding
Dinding Herbel
c. Lantai & Pondasi
Keramik + Granit Tile & Batu Kali


Harga: Rp 0
Luas Bangunan: 36m 2
Luas Lahan: 63m 2
Kamar Tidur: 2
Kamar Mandi: 1
a. Atap
Rangka Baja Ringan + Atap Metal Berpasir
b. Dinding
Dinding Herbel
c. Lantai & Pondasi
Keramik + Granit Tile & Batu Kali


Harga: Rp 0
Luas Bangunan: 36m 2
Luas Lahan: 65m 2
Kamar Tidur: 2
Kamar Mandi: 1
a. Atap
Rangka Baja Ringan + Atap Metal Berpasir
b. Dinding
Dinding Herbel
c. Lantai & Pondasi
Keramik + Granit Tile & Batu Kali


Harga: Rp 0
Luas Bangunan: 36m 2
Luas Lahan: 66m 2
Kamar Tidur: 2
Kamar Mandi: 1
a. Atap
Rangka Baja Ringan + Atap Metal Berpasir
b. Dinding
Dinding Herbel
c. Lantai & Pondasi
Keramik + Granit Tile & Batu Kali


Harga: Rp 0
Luas Bangunan: 36m 2
Luas Lahan: 67m 2
Kamar Tidur: 2
Kamar Mandi: 1
a. Atap
Rangka Baja Ringan + Atap Metal Berpasir
b. Dinding
Dinding Herbel
c. Lantai & Pondasi
Keramik + Granit Tile & Batu Kali


Harga: Rp 0
Luas Bangunan: 40m 2
Luas Lahan: 72m 2
Kamar Tidur: 2
Kamar Mandi: 1
a. Atap
Rangka Baja Ringan + Atap Metal Berpasir
b. Dinding
Dinding Herbel
c. Lantai & Pondasi
Keramik + Granit Tile & Batu Kali


Harga: Rp 0
Luas Bangunan: 40m 2
Luas Lahan: 76m 2
Kamar Tidur: 2
Kamar Mandi: 1
a. Atap
Rangka Baja Ringan + Atap Metal Berpasir
b. Dinding
Dinding Herbel
c. Lantai & Pondasi
Keramik + Granit Tile & Batu Kali


Harga: Rp 0
Luas Bangunan: 40m 2
Luas Lahan: 79m 2
Kamar Tidur: 2
Kamar Mandi: 1
a. Atap
Rangka Baja Ringan + Atap Metal Berpasir
b. Dinding
Dinding Herbel
c. Lantai & Pondasi
Keramik + Granit Tile & Batu Kali


Harga: Rp 0
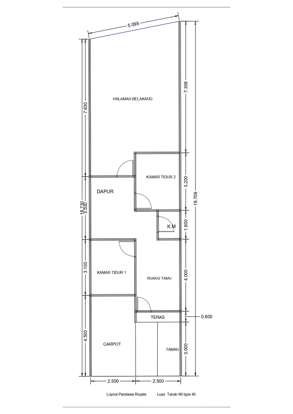
Luas Bangunan: 40m 2
Luas Lahan: 96m 2
Kamar Tidur: 2
Kamar Mandi: 1
a. Atap
Rangka Baja Ringan + Atap Metal Berpasir
b. Dinding
Dinding Herbel
c. Lantai & Pondasi
Keramik + Granit Tile & Batu Kali


Harga: Rp 0
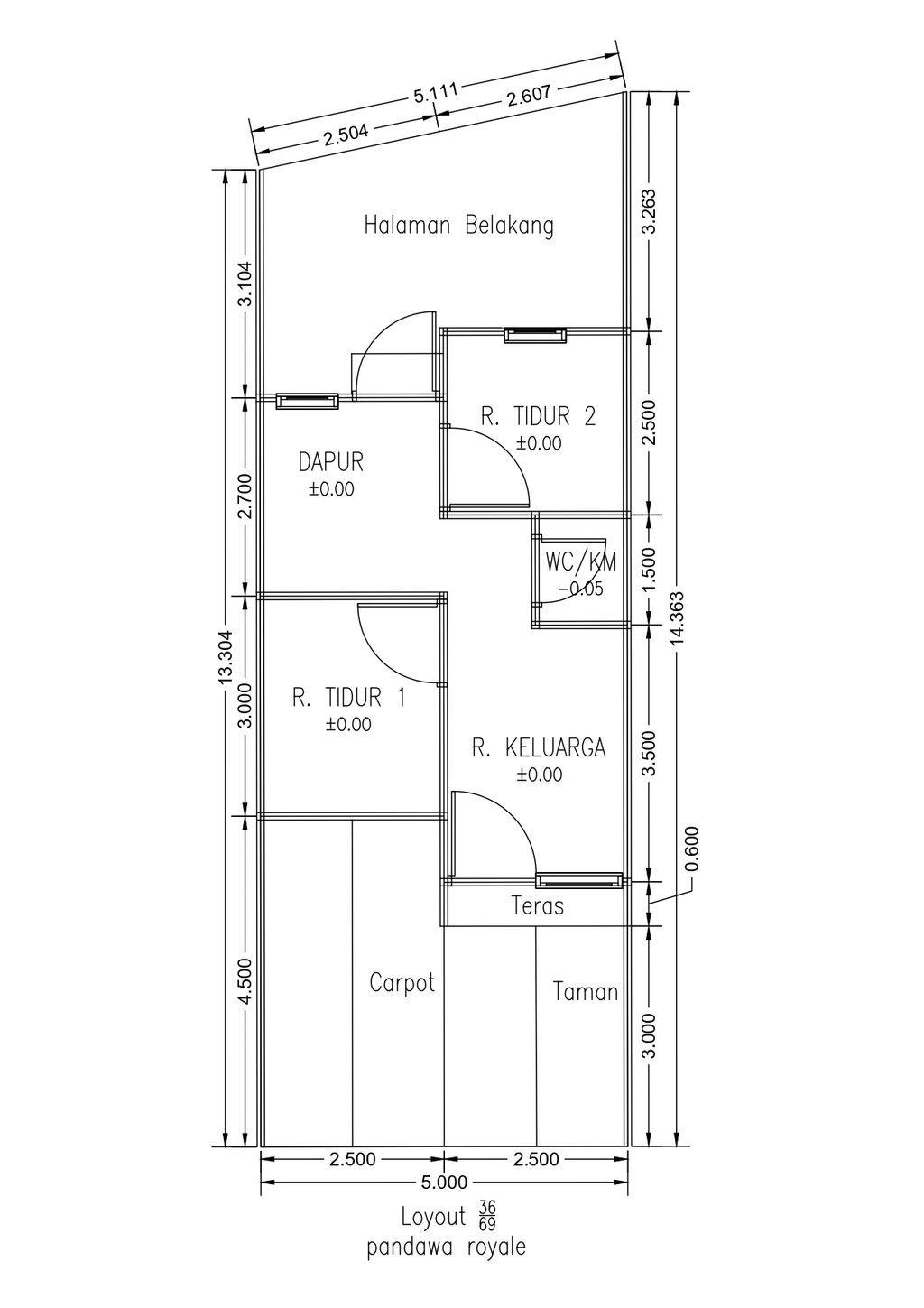
Luas Bangunan: 36m 2
Luas Lahan: 69m 2
Kamar Tidur: 2
Kamar Mandi: 1
a. Atap
Rangka Baja Ringan + Atap Metal Berpasir
b. Dinding
Dinding Herbel
c. Lantai & Pondasi
Keramik + Granit Tile & Batu Kali


Harga: Rp 0
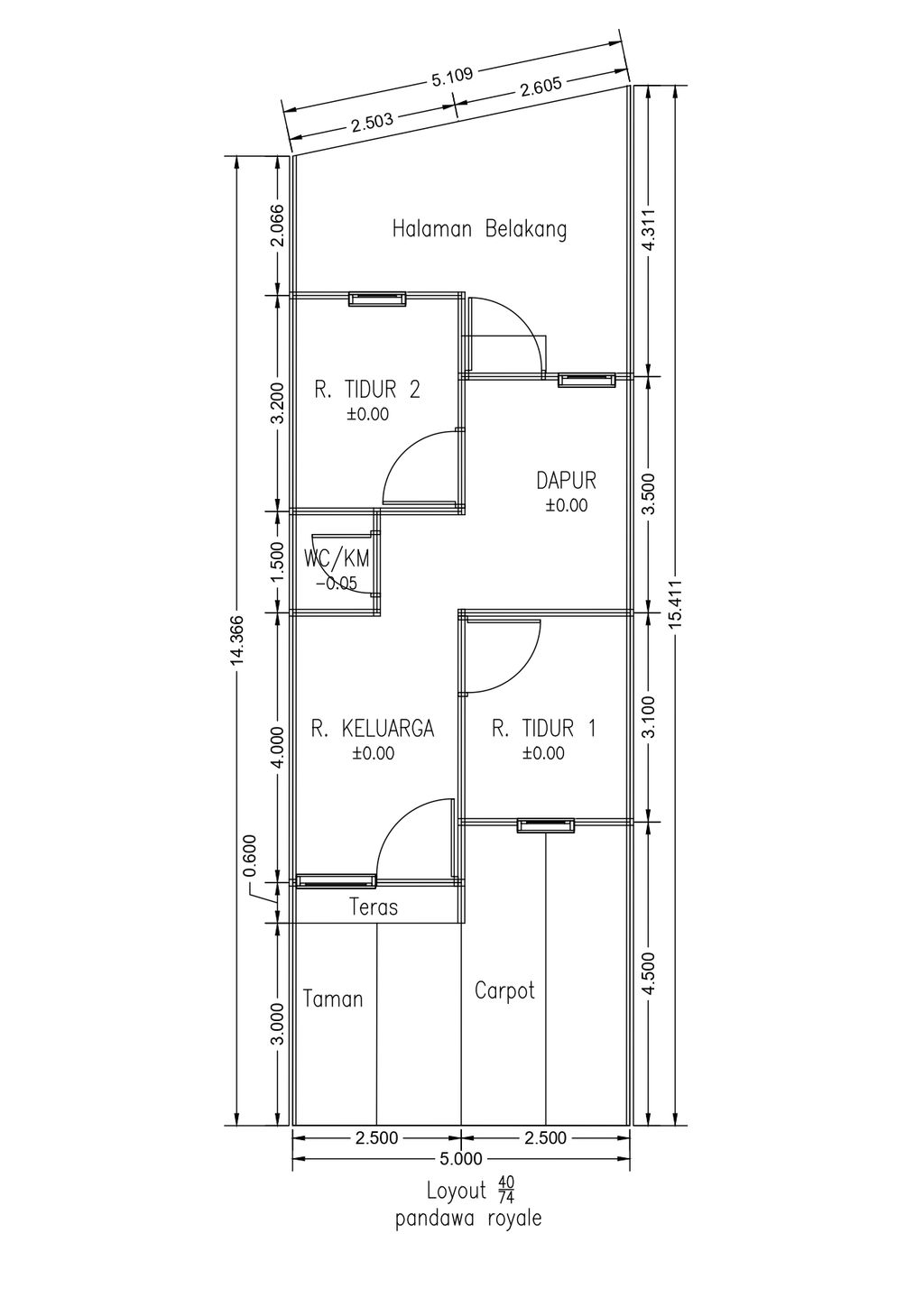
Luas Bangunan: 40m 2
Luas Lahan: 74m 2
Kamar Tidur: 2
Kamar Mandi: 1
a. Atap
Rangka Baja Ringan + Atap Metal Berpasir
b. Dinding
Dinding Herbel
c. Lantai & Pondasi
Keramik + Granit Tile & Batu Kali


Harga: Rp 0
Luas Bangunan: 40m 2
Luas Lahan: 80m 2
Kamar Tidur: 2
Kamar Mandi: 1
a. Atap
Rangka Baja Ringan + Atap Metal Berpasir
b. Dinding
Dinding Herbel
c. Lantai & Pondasi
Keramik + Granit Tile & Batu Kali


Harga: Rp 0
Luas Bangunan: 40m 2
Luas Lahan: 85m 2
Kamar Tidur: 2
Kamar Mandi: 1
a. Atap
Rangka Baja Ringan + Atap Metal Berpasir
b. Dinding
Dinding Herbel
c. Lantai & Pondasi
Keramik + Granit Tile & Batu Kali


Harga: Rp 0
Luas Bangunan: 40m 2
Luas Lahan: 90m 2
Kamar Tidur: 2
Kamar Mandi: 1
a. Atap
Rangka Baja Ringan + Atap Metal Berpasir
b. Dinding
Dinding Herbel
c. Lantai & Pondasi
Keramik + Granit Tile & Batu Kali


Harga: Rp 0
Luas Bangunan: 40m 2
Luas Lahan: 95m 2
Kamar Tidur: 2
Kamar Mandi: 1
a. Atap
Rangka Baja Ringan + Atap Metal Berpasir
b. Dinding
Dinding Herbel
c. Lantai & Pondasi
Keramik + Granit Tile & Batu Kali


Harga: Rp 0
Luas Bangunan: 40m 2
Luas Lahan: 101m 2
Kamar Tidur: 2
Kamar Mandi: 1
a. Atap
Rangka Baja Ringan + Atap Metal Berpasir
b. Dinding
Dinding Herbel
c. Lantai & Pondasi
Keramik + Granit Tile & Batu Kali


Harga: Rp 0
Luas Bangunan: 40m 2
Luas Lahan: 108m 2
Kamar Tidur: 2
Kamar Mandi: 1
a. Atap
Rangka Baja Ringan + Atap Metal Berpasir
b. Dinding
Dinding Herbel
c. Lantai & Pondasi
Keramik + Granit Tile & Batu Kali


Harga: Rp 0
Luas Bangunan: 40m 2
Luas Lahan: 84m 2
Kamar Tidur: 2
Kamar Mandi: 1
a. Atap
Rangka Baja Ringan + Atap Metal Berpasir
b. Dinding
Dinding Herbel
c. Lantai & Pondasi
Keramik + Granit Tile & Batu Kali