ID Lokasi : CKR0720062023T001
JAWA BARAT, KAB BEKASI, Cibitung, Sukajaya
PT ARGOSUBUR SENTOSA
REAL ESTATE INDONESIA
(REI)
Subsidi : 62 Unit
Terjual Subsidi : 272 Unit
Komersil : 223 Unit
Terjual Komersil : 26 Unit
Lihat Siteplan DigitalJl. Tebet Barat IX no. 39 DKI JAKARTA, KOTA ADM JAKARTA SELATAN, Tebet, Tebet Barat
Telp : 0218303636
Email : argosubursentosa@yahoo.co.id
Website : https://kiranasuryagroup.com





Harga: Rp 181.000.000
Luas Bangunan: 22m 2
Luas Lahan: 60m 2
Kamar Tidur: 1
Kamar Mandi: 1
a. Atap
Rangka ( Baja Ringan + Genteng Beton )
b. Dinding
Batako diplester dan dicat
c. Lantai & Pondasi
keramik & batu kali


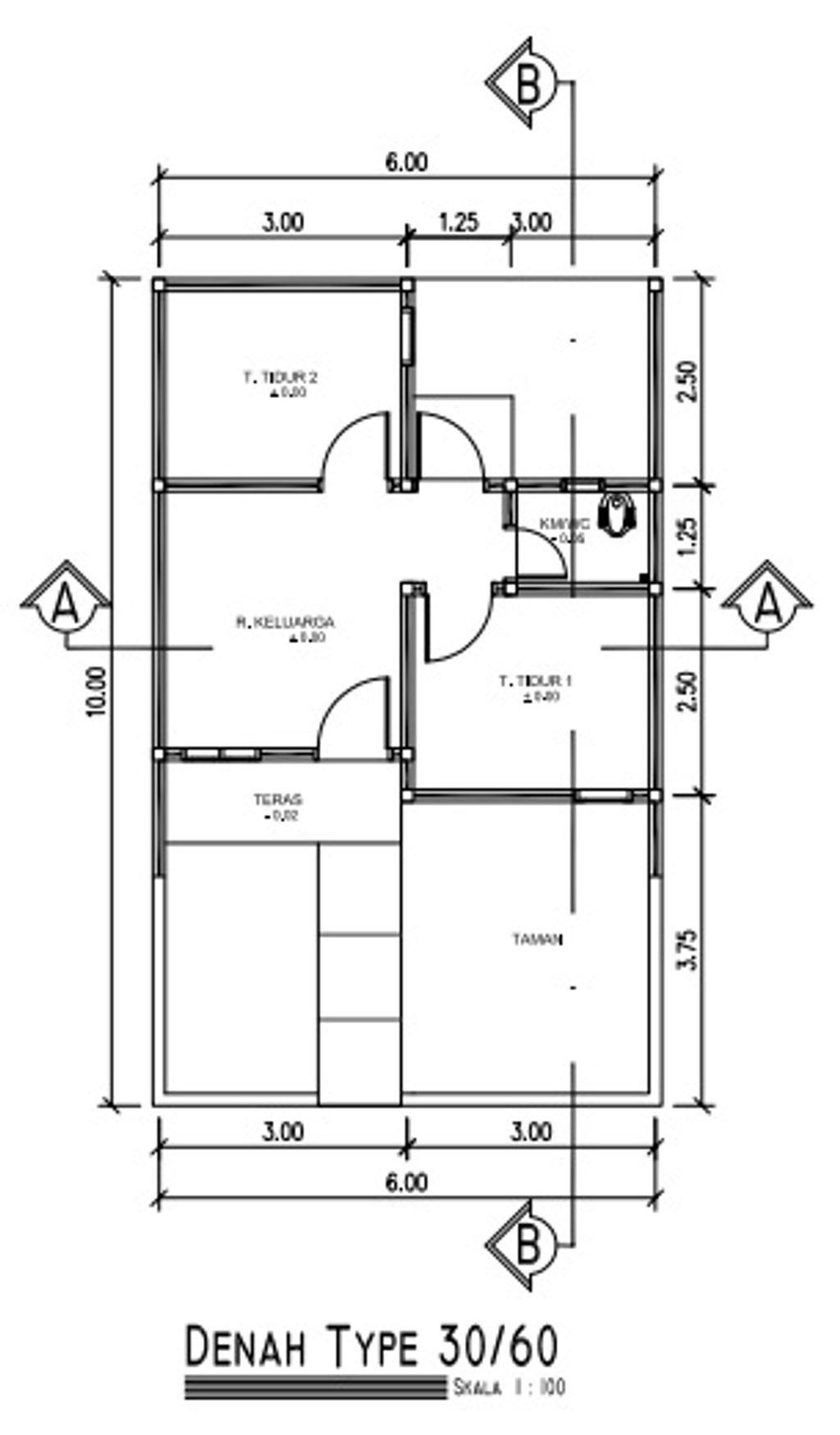
Harga: Rp 414.030.000
Luas Bangunan: 30m 2
Luas Lahan: 60m 2
Kamar Tidur: 2
Kamar Mandi: 1
a. Atap
Rangka ( Baja Ringan + Genteng Beton )
b. Dinding
Batako diplester dan dicat
c. Lantai & Pondasi
keramik & batu kali


Harga: Rp 342.000.000
Luas Bangunan: 22m 2
Luas Lahan: 90m 2
Kamar Tidur: 1
Kamar Mandi: 1
a. Atap
Rangka ( Baja Ringan + Genteng Beton )
b. Dinding
Batako diplester dan dicat
c. Lantai & Pondasi
keramik & batu kali


Harga: Rp 394.050.000
Luas Bangunan: 30m 2
Luas Lahan: 60m 2
Kamar Tidur: 2
Kamar Mandi: 1
a. Atap
Rangka (baja ringan+genteng beton)
b. Dinding
Hebel
c. Lantai & Pondasi
Granite Tile & Batu kali


Harga: Rp 354.500.000
Luas Bangunan: 30m 2
Luas Lahan: 90m 2
Kamar Tidur: 2
Kamar Mandi: 1
a. Atap
Rangka (baja ringan+genteng beton)
b. Dinding
Hebel
c. Lantai & Pondasi
Granite Tile & Batu kali


Harga: Rp 520.035.000
Luas Bangunan: 30m 2
Luas Lahan: 88m 2
Kamar Tidur: 2
Kamar Mandi: 1
a. Atap
Rangka (baja ringan+genteng beton)
b. Dinding
Hebel
c. Lantai & Pondasi
Granite Tile & Granite Tile
Batu kali


Harga: Rp 494.000.000
Luas Bangunan: 27m 2
Luas Lahan: 79m 2
Kamar Tidur: 1
Kamar Mandi: 1
a. Atap
Rangka (baja ringan+genteng beton)
b. Dinding
Hebel
c. Lantai & Pondasi
Granite Tile & Batu kali


Harga: Rp 492.000.000
Luas Bangunan: 27m 2
Luas Lahan: 78m 2
Kamar Tidur: 1
Kamar Mandi: 1
a. Atap
Rangka (baja ringan+genteng beton)
b. Dinding
Hebel
c. Lantai & Pondasi
Granite Tile & Batu kali


Harga: Rp 490.000.000
Luas Bangunan: 27m 2
Luas Lahan: 77m 2
Kamar Tidur: 1
Kamar Mandi: 1
a. Atap
Rangka (baja ringan+genteng beton)
b. Dinding
Hebel
c. Lantai & Pondasi
Granite Tile & Batu kali


Harga: Rp 488.000.000
Luas Bangunan: 27m 2
Luas Lahan: 76m 2
Kamar Tidur: 1
Kamar Mandi: 1
a. Atap
Rangka (baja ringan+genteng beton)
b. Dinding
Hebel
c. Lantai & Pondasi
Granite Tile & Batu kali


Harga: Rp 484.000.000
Luas Bangunan: 27m 2
Luas Lahan: 74m 2
Kamar Tidur: 1
Kamar Mandi: 1
a. Atap
Rangka (baja ringan+genteng beton)
b. Dinding
Hebel
c. Lantai & Pondasi
Granite Tile & Batu kali


Harga: Rp 486.000.000
Luas Bangunan: 27m 2
Luas Lahan: 75m 2
Kamar Tidur: 1
Kamar Mandi: 1
a. Atap
Rangka (baja ringan+genteng beton)
b. Dinding
Hebel
c. Lantai & Pondasi
Granite Tile & Batu kali


Harga: Rp 482.000.000
Luas Bangunan: 27m 2
Luas Lahan: 73m 2
Kamar Tidur: 1
Kamar Mandi: 1
a. Atap
Rangka (baja ringan+genteng beton)
b. Dinding
Hebel
c. Lantai & Pondasi
Granite Tile & Batu kali


Harga: Rp 500.000.000
Luas Bangunan: 27m 2
Luas Lahan: 81m 2
Kamar Tidur: 1
Kamar Mandi: 1
a. Atap
Rangka (baja ringan+genteng beton)
b. Dinding
Hebel
c. Lantai & Pondasi
Granite Tile & Batu kali


Harga: Rp 496.000.000
Luas Bangunan: 27m 2
Luas Lahan: 80m 2
Kamar Tidur: 1
Kamar Mandi: 1
a. Atap
Rangka (baja ringan+genteng beton)
b. Dinding
Hebel
c. Lantai & Pondasi
Granite Tile & Batu kali


Harga: Rp 550.000.000
Luas Bangunan: 27m 2
Luas Lahan: 95m 2
Kamar Tidur: 1
Kamar Mandi: 1
a. Atap
Rangka (baja ringan+genteng beton)
b. Dinding
Hebel
c. Lantai & Pondasi
Granite Tile & Batu kali


Harga: Rp 354.500.000
Luas Bangunan: 30m 2
Luas Lahan: 90m 2
Kamar Tidur: 2
Kamar Mandi: 1
a. Atap
Rangka (baja ringan+genteng beton)
b. Dinding
Batako
c. Lantai & Pondasi
keramik & Batu kali


Harga: Rp 366.500.000
Luas Bangunan: 30m 2
Luas Lahan: 86m 2
Kamar Tidur: 2
Kamar Mandi: 1
a. Atap
Rangka (baja ringan+genteng beton)
b. Dinding
Batako
c. Lantai & Pondasi
keramik & Batu kali


Harga: Rp 550.000.000
Luas Bangunan: 30m 2
Luas Lahan: 131m 2
Kamar Tidur: 1
Kamar Mandi: 1
a. Atap
Rangka (baja ringan+genteng beton)
b. Dinding
Batako
c. Lantai & Pondasi
keramik & Batu kali


Harga: Rp 426.500.000
Luas Bangunan: 30m 2
Luas Lahan: 106m 2
Kamar Tidur: 2
Kamar Mandi: 1
a. Atap
Rangka (baja ringan+genteng beton)
b. Dinding
Batako
c. Lantai & Pondasi
keramik & Batu kali


Harga: Rp 420.000.000
Luas Bangunan: 30m 2
Luas Lahan: 101m 2
Kamar Tidur: 2
Kamar Mandi: 1
a. Atap
Rangka (baja ringan+genteng beton)
b. Dinding
Batako
c. Lantai & Pondasi
keramik & Batu kali


Harga: Rp 296.000.000
Luas Bangunan: 22m 2
Luas Lahan: 71m 2
Kamar Tidur: 1
Kamar Mandi: 1
a. Atap
Rangka (baja ringan+genteng beton)
b. Dinding
Batako
c. Lantai & Pondasi
keramik & Batu kali


Harga: Rp 297.000.000
Luas Bangunan: 22m 2
Luas Lahan: 72m 2
Kamar Tidur: 1
Kamar Mandi: 1
a. Atap
Rangka (baja ringan+genteng beton)
b. Dinding
Batako
c. Lantai & Pondasi
keramik & Batu kali


Harga: Rp 299.000.000
Luas Bangunan: 22m 2
Luas Lahan: 73m 2
Kamar Tidur: 1
Kamar Mandi: 1
a. Atap
Rangka (baja ringan+genteng beton)
b. Dinding
Batako
c. Lantai & Pondasi
keramik & Batu kali


Harga: Rp 300.000.000
Luas Bangunan: 22m 2
Luas Lahan: 74m 2
Kamar Tidur: 1
Kamar Mandi: 1
a. Atap
Rangka (baja ringan+genteng beton)
b. Dinding
Batako
c. Lantai & Pondasi
keramik & Batu kali


Harga: Rp 320.000.000
Luas Bangunan: 22m 2
Luas Lahan: 82m 2
Kamar Tidur: 1
Kamar Mandi: 1
a. Atap
Rangka (baja ringan+genteng beton)
b. Dinding
Batako
c. Lantai & Pondasi
keramik & Batu kali


Harga: Rp 350.000.000
Luas Bangunan: 22m 2
Luas Lahan: 97m 2
Kamar Tidur: 1
Kamar Mandi: 1
a. Atap
Rangka (baja ringan+genteng beton)
b. Dinding
Batako
c. Lantai & Pondasi
keramik & Batu kali


Harga: Rp 344.000.000
Luas Bangunan: 22m 2
Luas Lahan: 92m 2
Kamar Tidur: 1
Kamar Mandi: 1
a. Atap
Rangka (baja ringan+genteng beton)
b. Dinding
Batako
c. Lantai & Pondasi
keramik & Batu kali


Harga: Rp 480.000.000
Luas Bangunan: 27m 2
Luas Lahan: 72m 2
Kamar Tidur: 1
Kamar Mandi: 1
a. Atap
Rangka (baja ringan+genteng beton)
b. Dinding
hebel
c. Lantai & Pondasi
granit tile & Batu kali


Harga: Rp 185.000.000
Luas Bangunan: 30m 2
Luas Lahan: 60m 2
Kamar Tidur: 2
Kamar Mandi: 1
a. Atap
Rangka (Baja Ringan + Genteng Beton)
b. Dinding
Batako Diplester dan di Cat
c. Lantai & Pondasi
Keramik & Batu Kali


Harga: Rp 185.000.000
Luas Bangunan: 30m 2
Luas Lahan: 90m 2
Kamar Tidur: 2
Kamar Mandi: 1
a. Atap
Rangka (Baja Ringan + Genteng Beton)
b. Dinding
Batako Diplester dan di Cat
c. Lantai & Pondasi
Keramik & Batu Kali


Harga: Rp 196.000.000
Luas Bangunan: 30m 2
Luas Lahan: 60m 2
Kamar Tidur: 2
Kamar Mandi: 1
a. Atap
Rangka ( Baja Ringan + Genteng Beton )
b. Dinding
Batako diplester dan dicat
c. Lantai & Pondasi
Keramik & Batu Kali


Harga: Rp 345.000.000
Luas Bangunan: 30m 2
Luas Lahan: 60m 2
Kamar Tidur: 2
Kamar Mandi: 1
a. Atap
Rangka ( Baja Ringan + Genteng Beton )
b. Dinding
Batako diplester dan dicat
c. Lantai & Pondasi
Keramik & Batu Kali
Jl. Tebet Barat IX no. 39 DKI JAKARTA, KOTA ADM JAKARTA SELATAN, Tebet, Tebet Barat
Telp : 0218303636
Email : argosubursentosa@yahoo.co.id
Website : https://kiranasuryagroup.com