ID Lokasi : CKR1820012025T001
JAWA BARAT, KAB BEKASI, Setu, Cijengkol
PT GEMILANG RIZQI EFENDI DEVELOPMENT
PERKUMPULAN ASOSIASI PENGEMBANG PERUMAHAN DAN PERMUKIMAN SELURUH INDONESIA
(APERSI)
Subsidi : 0 Unit
Terjual Subsidi : 0 Unit
Komersil : 7 Unit
Terjual Komersil : 7 Unit
Lihat Siteplan Digital




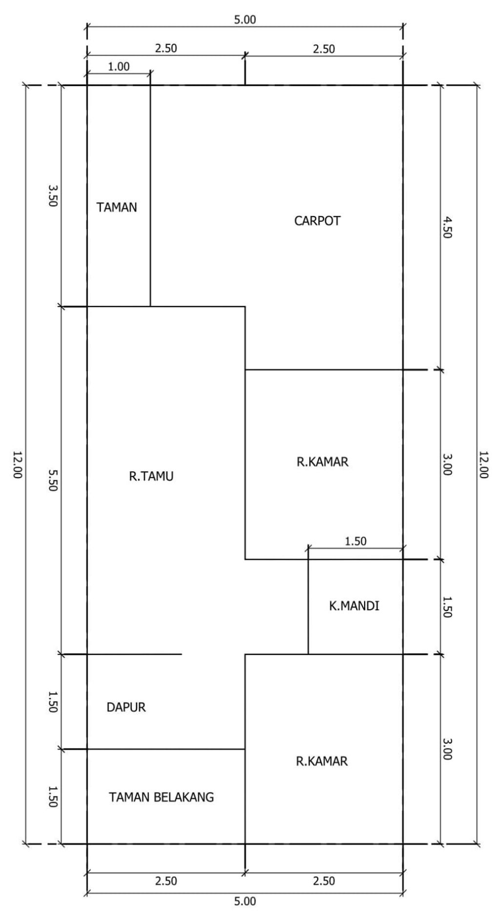
Harga: Rp 385.000.000
Luas Bangunan: 36m 2
Luas Lahan: 60m 2
Kamar Tidur: 2
Kamar Mandi: 1
a. Atap
Rangka baja ringan + atap metal berpasir
b. Dinding
Dinding Herbel
c. Lantai & Pondasi
Keramik + Granit tile & Batu Kali


Harga: Rp 182.000.000
Luas Bangunan: 36m 2
Luas Lahan: 72m 2
Kamar Tidur: 2
Kamar Mandi: 1
a. Atap
Baja Ringan
b. Dinding
hebel
c. Lantai & Pondasi
kramik & batu kali


Harga: Rp 185.000.000
Luas Bangunan: 36m 2
Luas Lahan: 78m 2
Kamar Tidur: 2
Kamar Mandi: 1
a. Atap
baja ringan
b. Dinding
hebel/bata ringan
c. Lantai & Pondasi
kramik & bata kali


Harga: Rp 182.000.000
Luas Bangunan: 36m 2
Luas Lahan: 62m 2
Kamar Tidur: 2
Kamar Mandi: 1
a. Atap
baja ringan
b. Dinding
hebel
c. Lantai & Pondasi
kramik & batu kali


Harga: Rp 182.000.000
Luas Bangunan: 36m 2
Luas Lahan: 62m 2
Kamar Tidur: 2
Kamar Mandi: 1
a. Atap
baja ringan
b. Dinding
hebel
c. Lantai & Pondasi
kramik & batu kali