ID Lokasi : CKR2120032025T002
JAWA BARAT, KAB BEKASI, Serang Baru, Sukasari
PT BINTANG BARU PROPERTINDO
PERKUMPULAN ASOSIASI PENGEMBANG PERUMAHAN DAN PERMUKIMAN SELURUH INDONESIA
(APERSI)
Subsidi : 1 Unit
Terjual Subsidi : 32 Unit
Komersil : 1 Unit
Terjual Komersil : 0 Unit
Lihat Siteplan Digital

Harga: Rp 185.000.000
Luas Bangunan: 29m 2
Luas Lahan: 60m 2
Kamar Tidur: 2
Kamar Mandi: 1
a. Atap
Rangka Baja Ringan & Genteng Beton
b. Dinding
Bata Ringan, Plester, Aci, Cat
c. Lantai & Pondasi
Keramik 40 x 40 cm & Batu Kali & Beton Bertulang


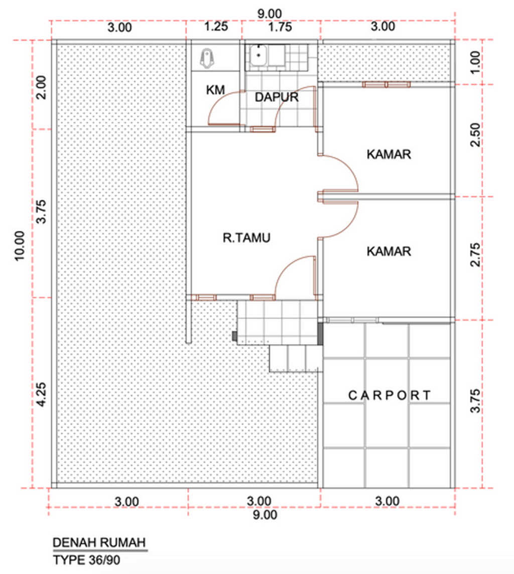
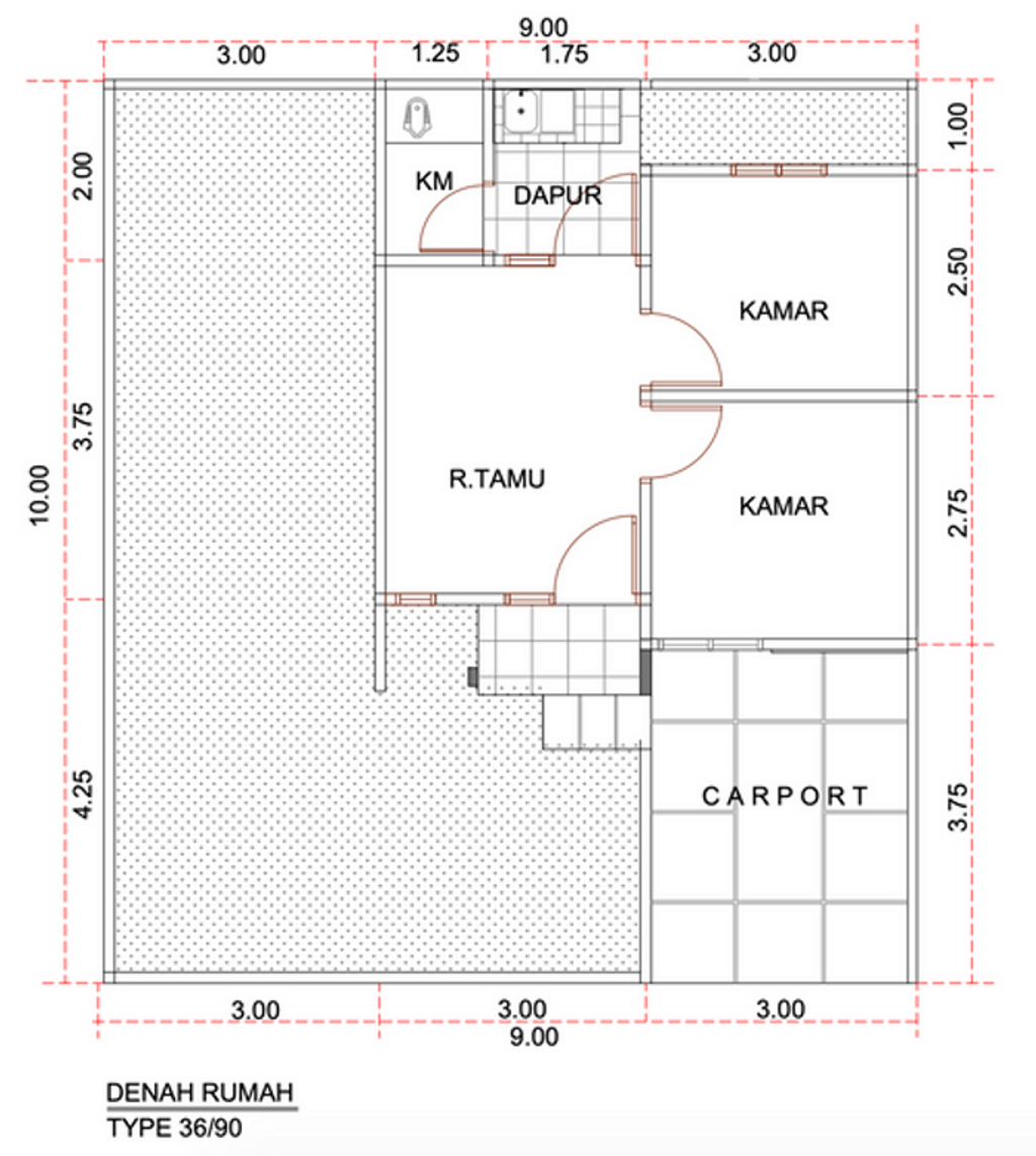
Harga: Rp 456.590.000
Luas Bangunan: 36m 2
Luas Lahan: 90m 2
Kamar Tidur: 2
Kamar Mandi: 1
a. Atap
Rangka baja ringan & baja flat
b. Dinding
Bata ringan, plester, aci, cat
c. Lantai & Pondasi
Keramik 40cm x 40cm & Batu kali & beton bertulang


Harga: Rp 719.775.000
Luas Bangunan: 45m 2
Luas Lahan: 150m 2
Kamar Tidur: 2
Kamar Mandi: 1
a. Atap
Rangka baja ringan & baja flat
b. Dinding
Bata ringan, plester, aci, cat
c. Lantai & Pondasi
Keramik 40cm x 40cm & Batu kali & beton bertulang


Harga: Rp 608.207.000
Luas Bangunan: 39m 2
Luas Lahan: 126m 2
Kamar Tidur: 2
Kamar Mandi: 1
a. Atap
Rangka baja ringan & baja flat
b. Dinding
Bata ringan, plester, aci, cat
c. Lantai & Pondasi
Keramik 40cm x 40cm & Batu kali & beton bertulang


Harga: Rp 386.160.000
Luas Bangunan: 39m 2
Luas Lahan: 72m 2
Kamar Tidur: 2
Kamar Mandi: 1
a. Atap
Rangka baja ringan & baja flat
b. Dinding
Bata ringan, plester, aci, cat
c. Lantai & Pondasi
Keramik 40cm x 40cm & Batu kali & beton bertulang