ID Lokasi : CLP0620032025T001
JAWA TENGAH, KAB CILACAP, Kroya, Ayamalas
PT STW BANGUN NEGERI
HIMPUNAN PENGEMBANG NUSANTARA
(HIPNU)
Subsidi : 32 Unit
Terjual Subsidi : 10 Unit
Komersil : 0 Unit
Terjual Komersil : 0 Unit
Lihat Siteplan DigitalJL. KELINCI RT 01 RW 09 DUSUN KARANGASEM no. 0 JAWA TENGAH, KAB CILACAP, Kroya, Ayamalas
Telp : 0813-3053-5632
Email : stwbangunnegeri@gmail.com
Website : -





Harga: Rp 166.000.000
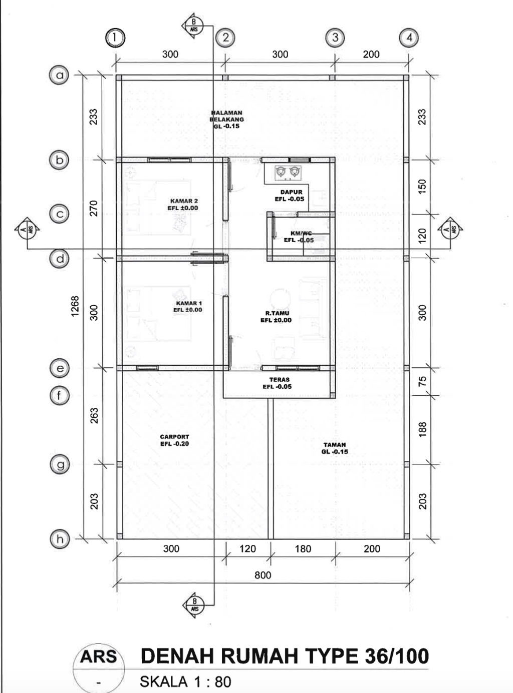
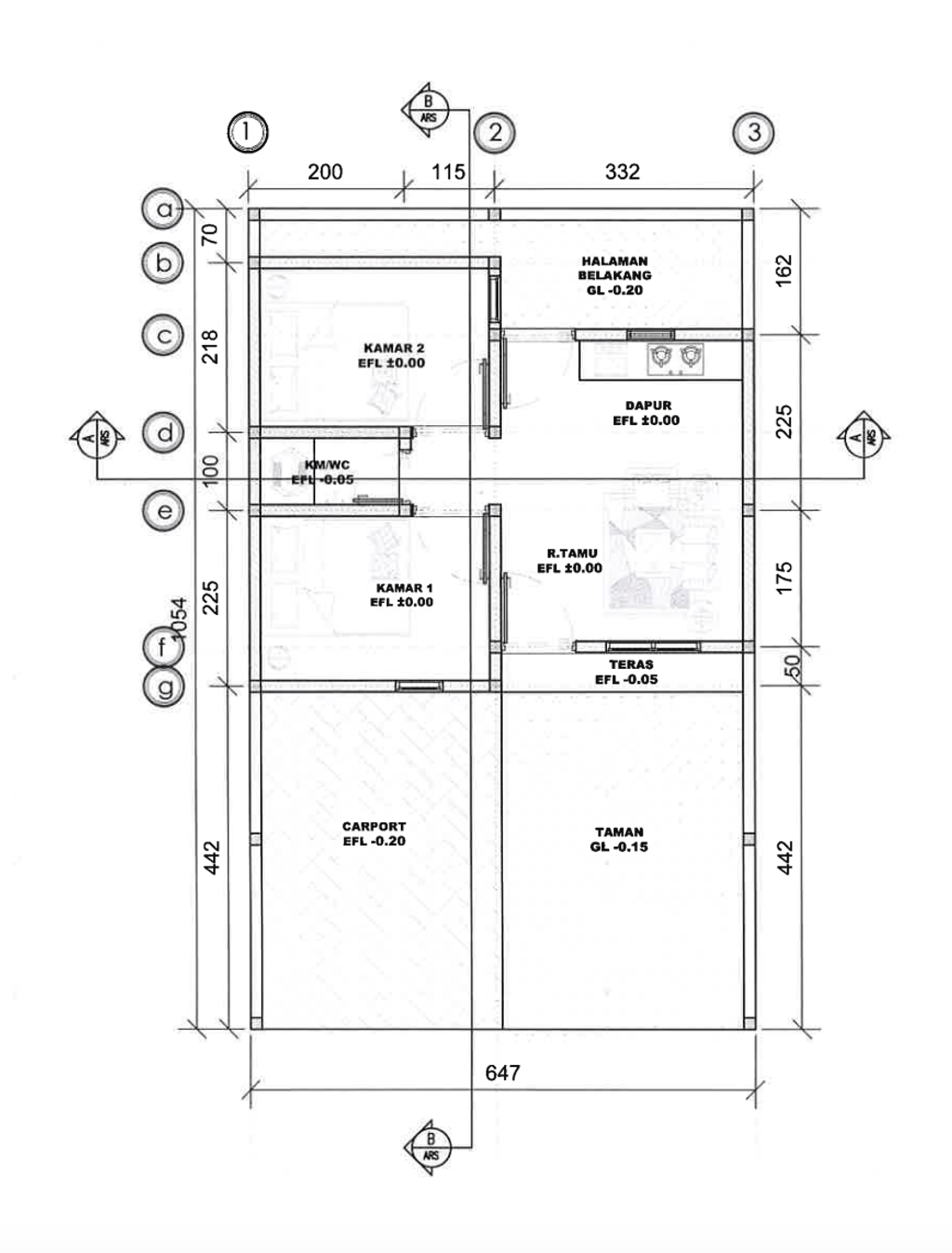
Luas Bangunan: 36m 2
Luas Lahan: 100m 2
Kamar Tidur: 2
Kamar Mandi: 1
a. Atap
Multiroof
b. Dinding
Bata Ringan/Hebel
c. Lantai & Pondasi
Keramik & Batu kali


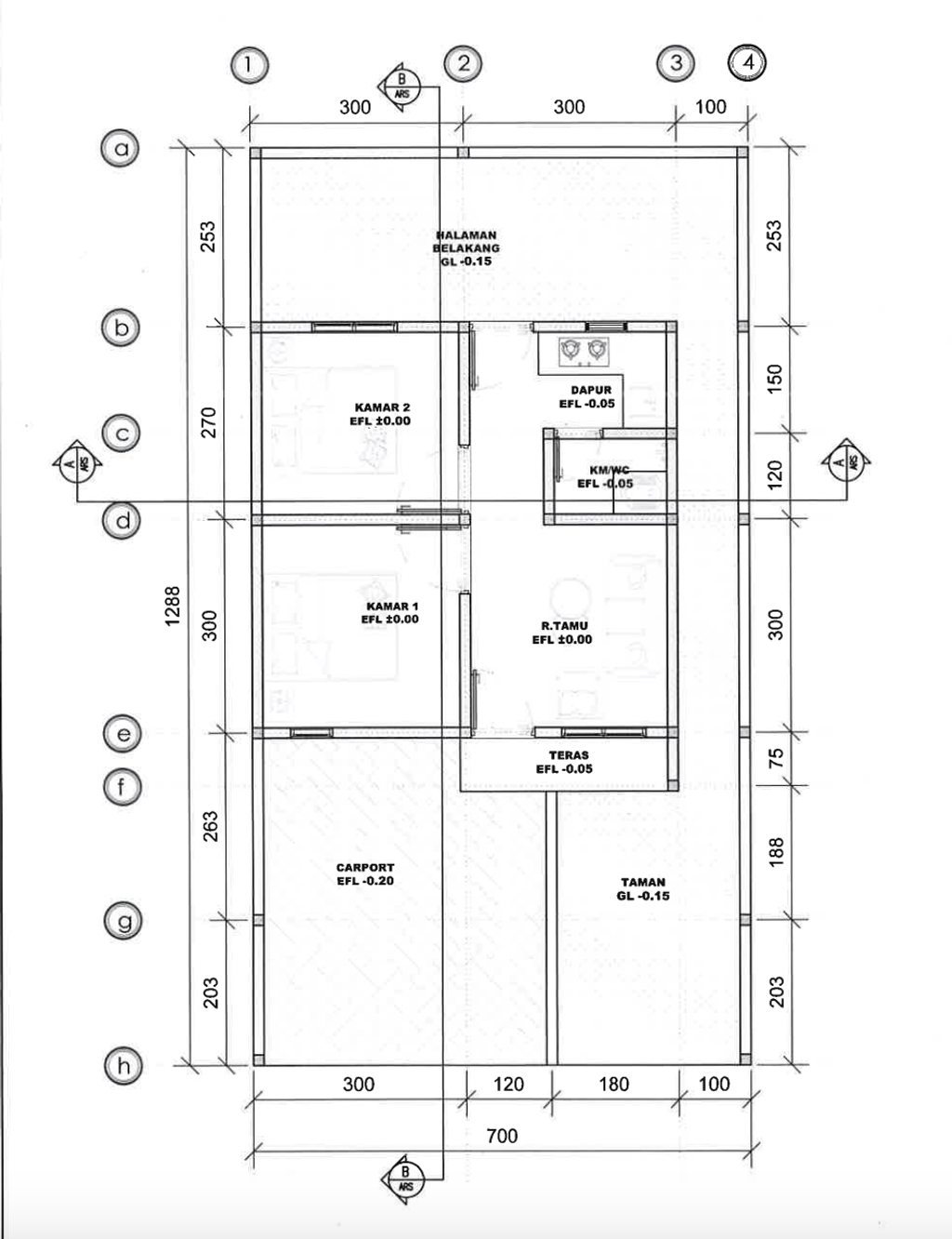
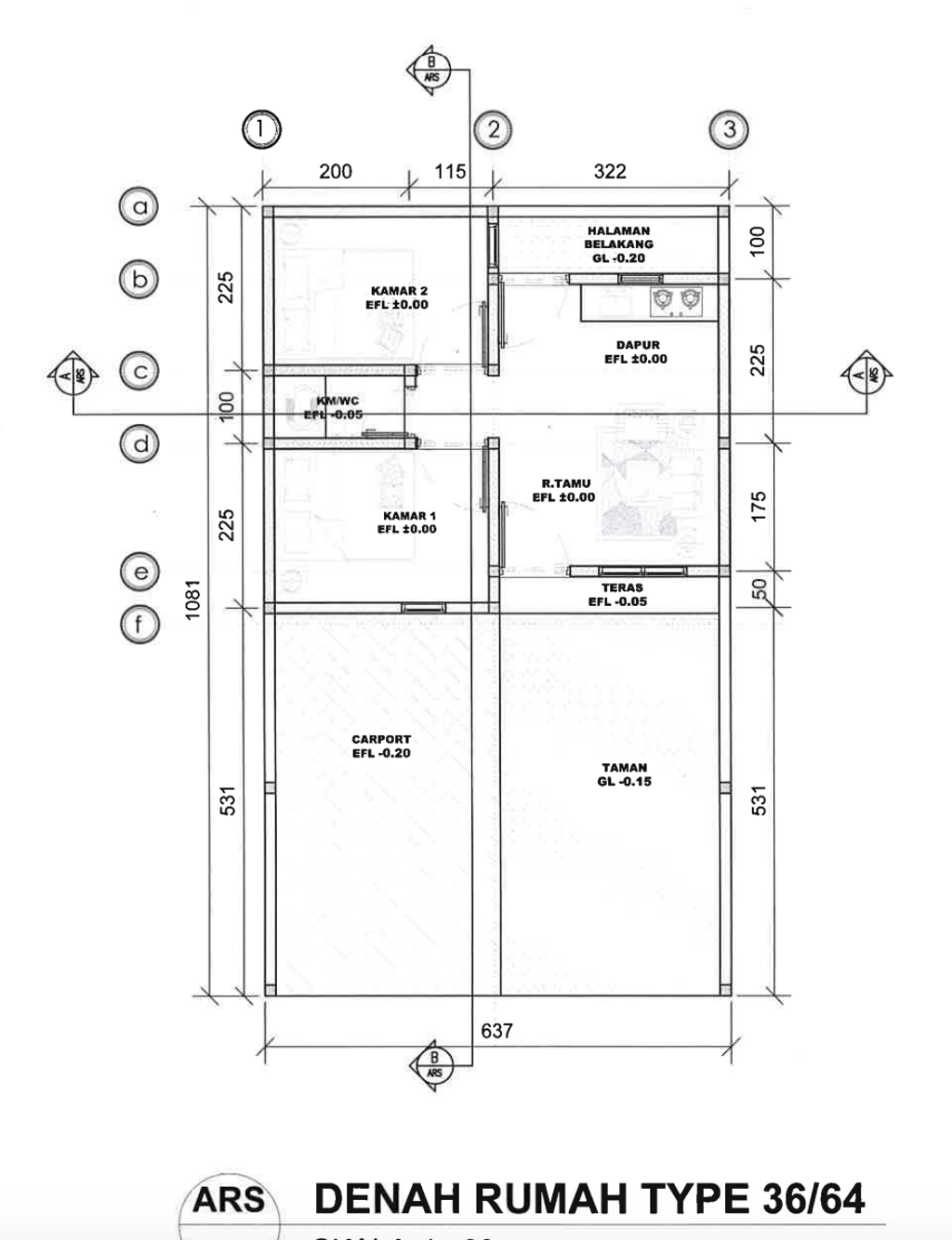
Harga: Rp 166.000.000
Luas Bangunan: 36m 2
Luas Lahan: 90m 2
Kamar Tidur: 2
Kamar Mandi: 1
a. Atap
Multiroof
b. Dinding
Bata Ringan/Hebel
c. Lantai & Pondasi
Keramik & Batu Kali


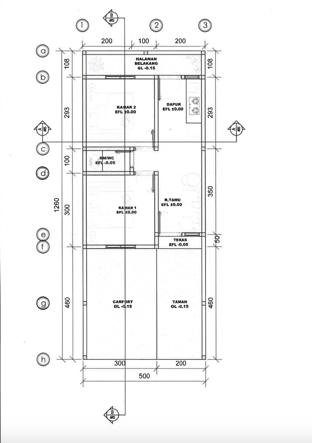
Harga: Rp 166.000.000
Luas Bangunan: 36m 2
Luas Lahan: 95m 2
Kamar Tidur: 2
Kamar Mandi: 1
a. Atap
Multiroof
b. Dinding
Bata Ringan/Hebel
c. Lantai & Pondasi
Keramik & Batu Kali


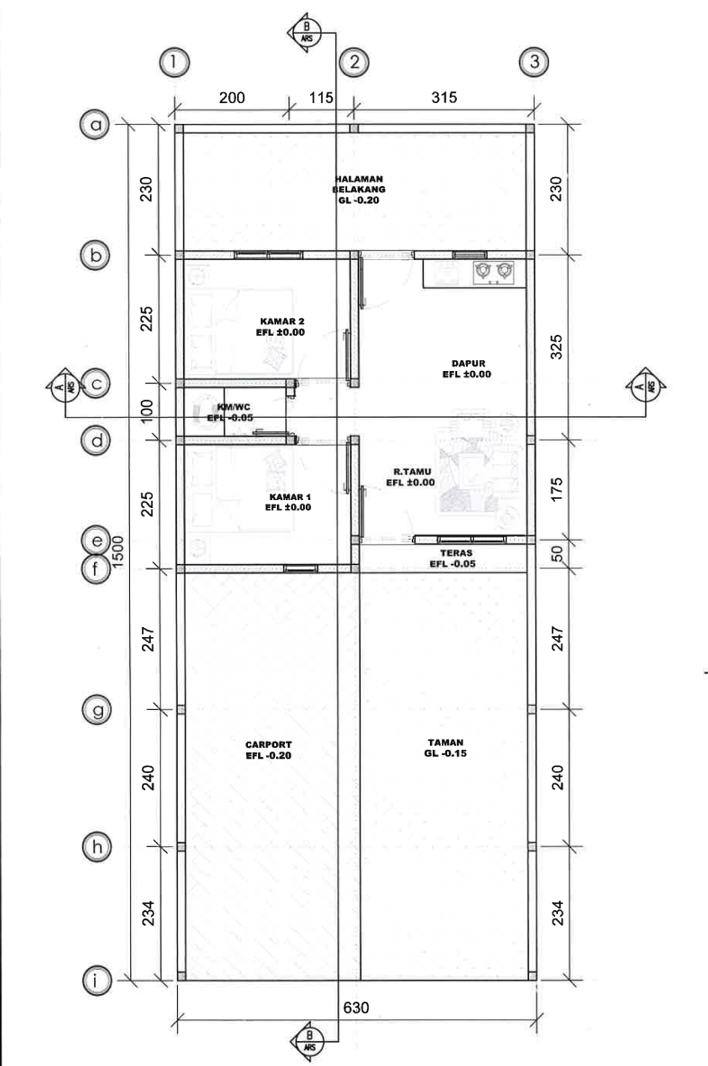
Harga: Rp 166.000.000
Luas Bangunan: 36m 2
Luas Lahan: 75m 2
Kamar Tidur: 2
Kamar Mandi: 1
a. Atap
Multiroof
b. Dinding
Bata Ringan
c. Lantai & Pondasi
Keramik & Batu kali


Harga: Rp 166.000.000
Luas Bangunan: 36m 2
Luas Lahan: 65m 2
Kamar Tidur: 2
Kamar Mandi: 1
a. Atap
Multiroof
b. Dinding
Bata Ringan/Hebel
c. Lantai & Pondasi
Keramik & Batu kali


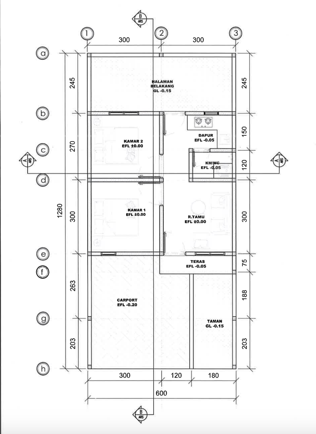
Harga: Rp 166.000.000
Luas Bangunan: 36m 2
Luas Lahan: 64m 2
Kamar Tidur: 2
Kamar Mandi: 1
a. Atap
Multiroof
b. Dinding
Bata ringan
c. Lantai & Pondasi
Keramik & Batu Kali


Harga: Rp 166.000.000
Luas Bangunan: 36m 2
Luas Lahan: 63m 2
Kamar Tidur: 2
Kamar Mandi: 1
a. Atap
Multiroof
b. Dinding
Bata Ringan/Hebel
c. Lantai & Pondasi
Keramik & Batu kali
JL. KELINCI RT 01 RW 09 DUSUN KARANGASEM no. 0 JAWA TENGAH, KAB CILACAP, Kroya, Ayamalas
Telp : 0813-3053-5632
Email : stwbangunnegeri@gmail.com
Website : -