ID Lokasi : CRP1810012023T001
BENGKULU, KAB REJANG LEBONG, Curup Selatan, Air Putih Baru
PT INDOTAMA ELFA PRAWIRA
REAL ESTATE INDONESIA
(REI)
Subsidi : 1 Unit
Terjual Subsidi : 37 Unit
Komersil : 0 Unit
Terjual Komersil : 0 Unit
Lihat Siteplan DigitalJln. Suprapto no. 136 BENGKULU, KAB REJANG LEBONG, Curup Selatan, Air Putih Baru
Telp : 08127346637
Email : elfaindotama@gmail.com
Website : indotamagroup.blogspot.com





Harga: Rp 150.500.000
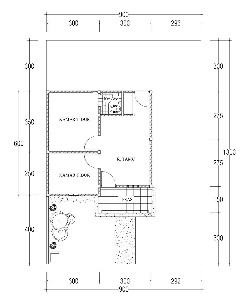
Luas Bangunan: 34m 2
Luas Lahan: 117m 2
Kamar Tidur: 2
Kamar Mandi: 1
a. Atap
Rangka Kayu Seng Warna
b. Dinding
Pasangan Bata Merah
c. Lantai & Pondasi
Pasangan Keramik 50 x 50 & Pasangan Batu
Jln. Suprapto no. 136 BENGKULU, KAB REJANG LEBONG, Curup Selatan, Air Putih Baru
Telp : 08127346637
Email : elfaindotama@gmail.com
Website : indotamagroup.blogspot.com