ID Lokasi : DMK0120082025T002
JAWA TENGAH, KAB DEMAK, Mranggen, Bandungrejo
PT DWI PERKASA UTAMA
Himpunan Pengembang Permukiman dan Perumahan Rakyat
(HIMPERRA)
Subsidi : 22 Unit
Terjual Subsidi : 57 Unit
Komersil : 0 Unit
Terjual Komersil : 0 Unit
Lihat Siteplan Digital




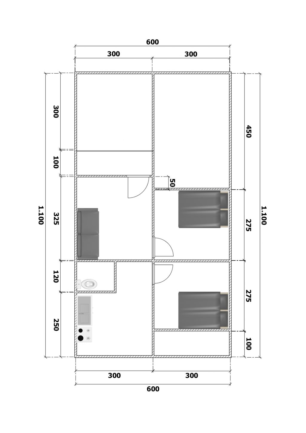
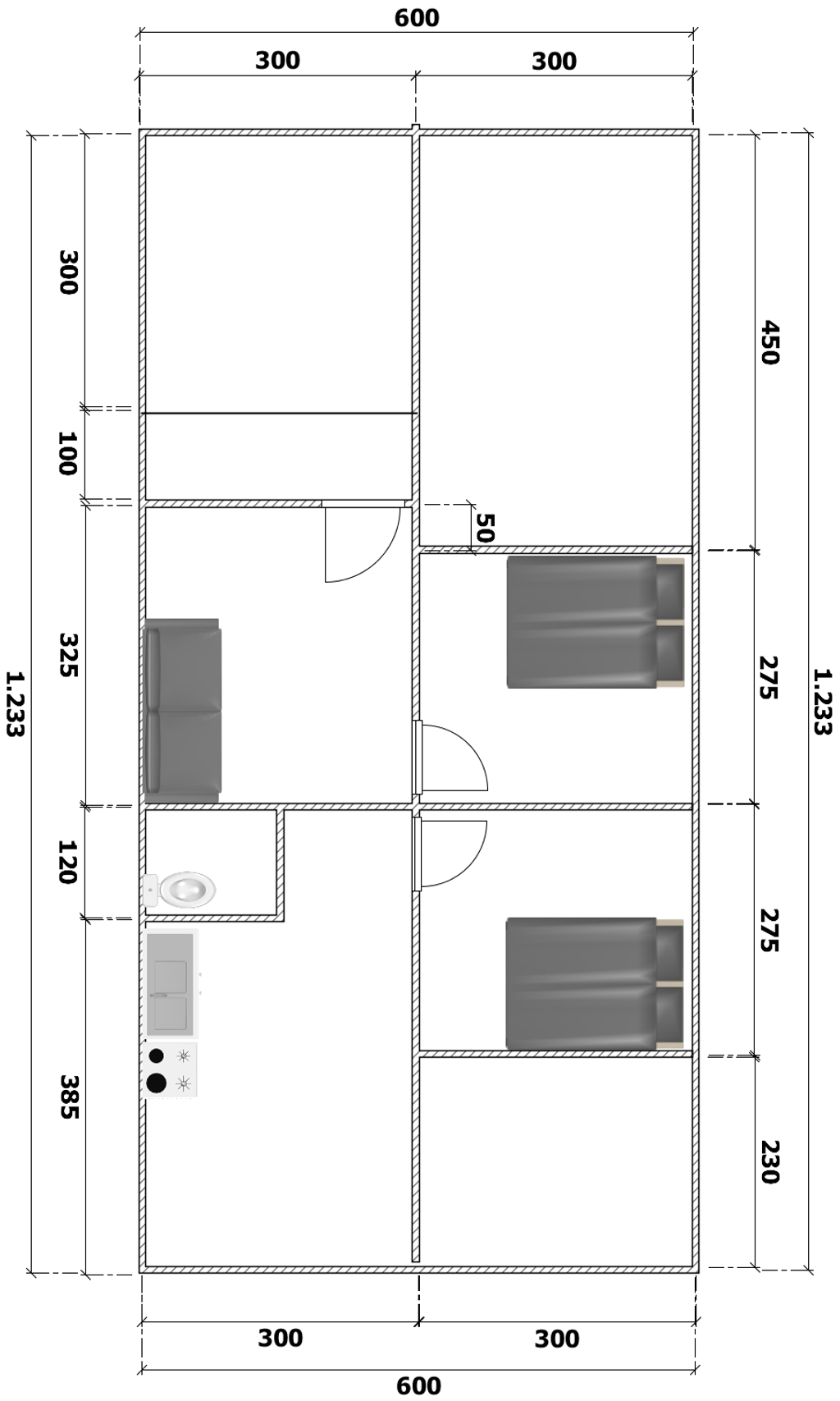
Harga: Rp 166.000.000
Luas Bangunan: 30m 2
Luas Lahan: 60m 2
Kamar Tidur: 2
Kamar Mandi: 1
a. Atap
GENTENG MANTILY
b. Dinding
HEBEL ACI
c. Lantai & Pondasi
KERAMIK 40X40 & BATU KALI


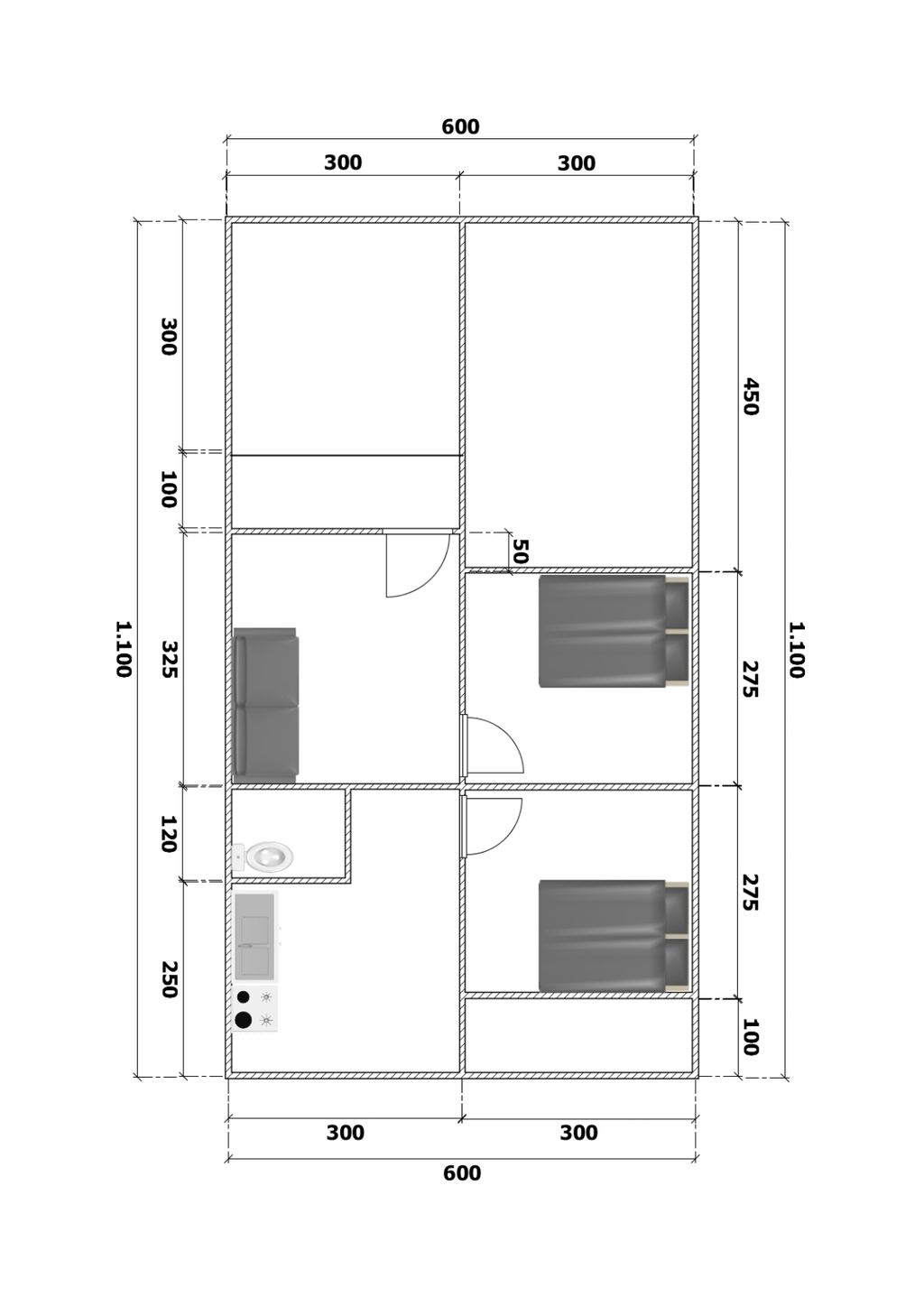
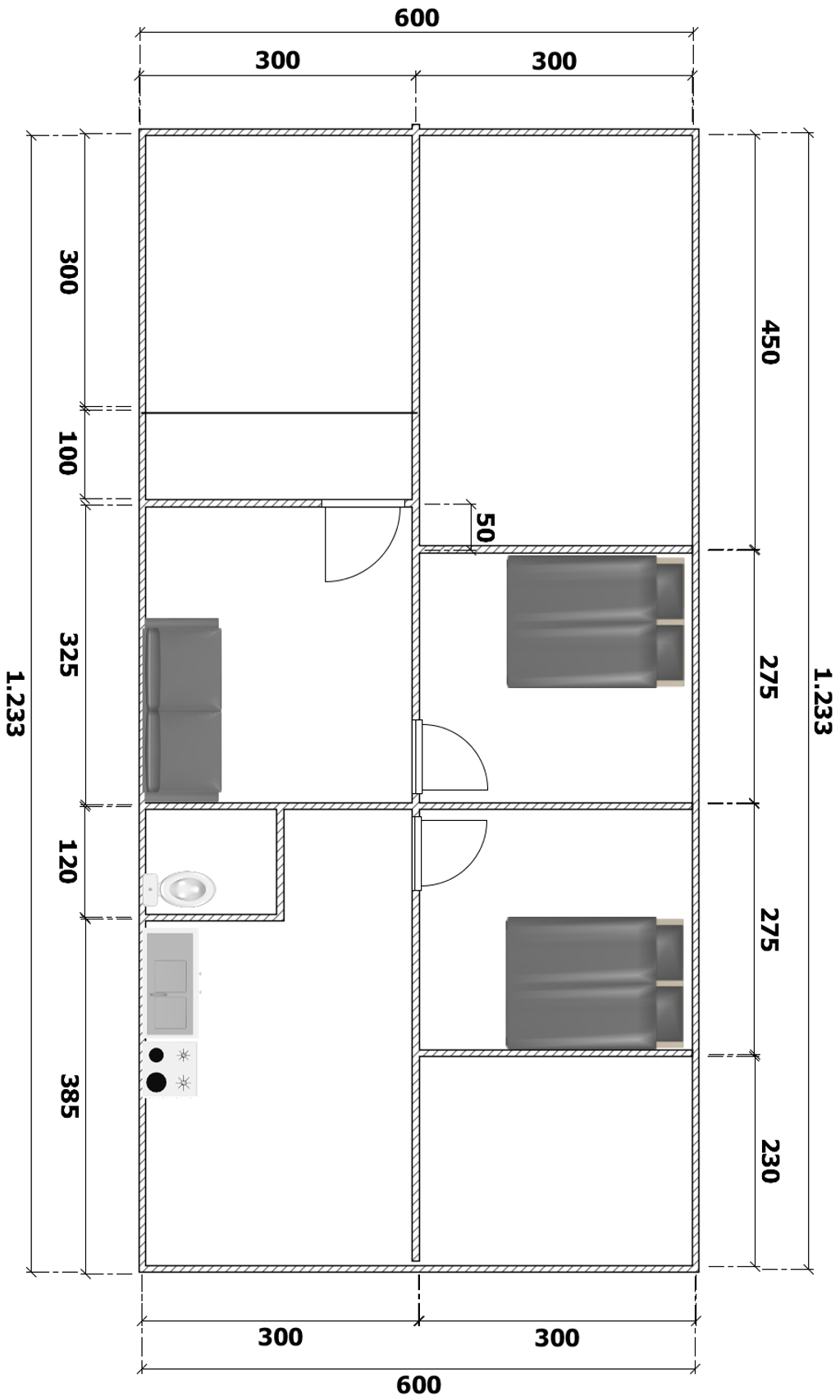
Harga: Rp 166.000.000
Luas Bangunan: 30m 2
Luas Lahan: 65m 2
Kamar Tidur: 2
Kamar Mandi: 1
a. Atap
GENTENG MANTILY
b. Dinding
HEBEL ACI
c. Lantai & Pondasi
KERAMIK 40X40 & BATU KALI


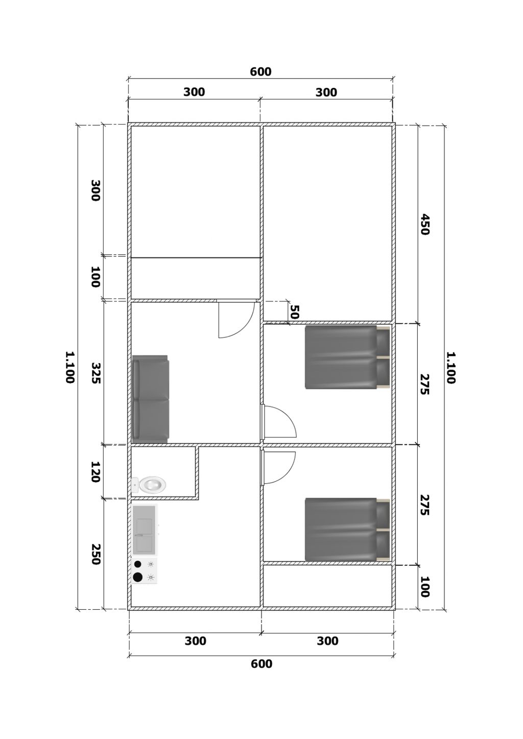
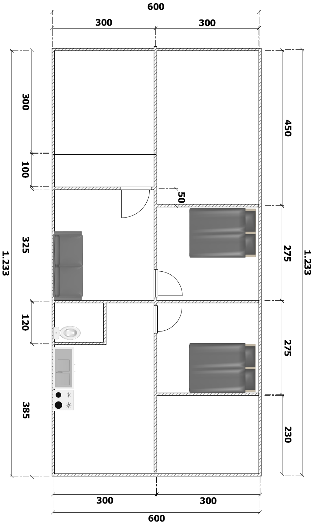
Harga: Rp 166.000.000
Luas Bangunan: 30m 2
Luas Lahan: 66m 2
Kamar Tidur: 2
Kamar Mandi: 1
a. Atap
GENTENG MANTILY
b. Dinding
HEBEL ACI
c. Lantai & Pondasi
KERAMIK 40X40 & BATU KALI


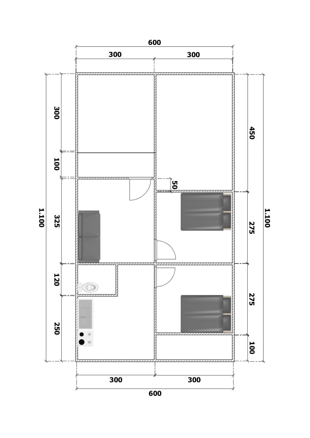
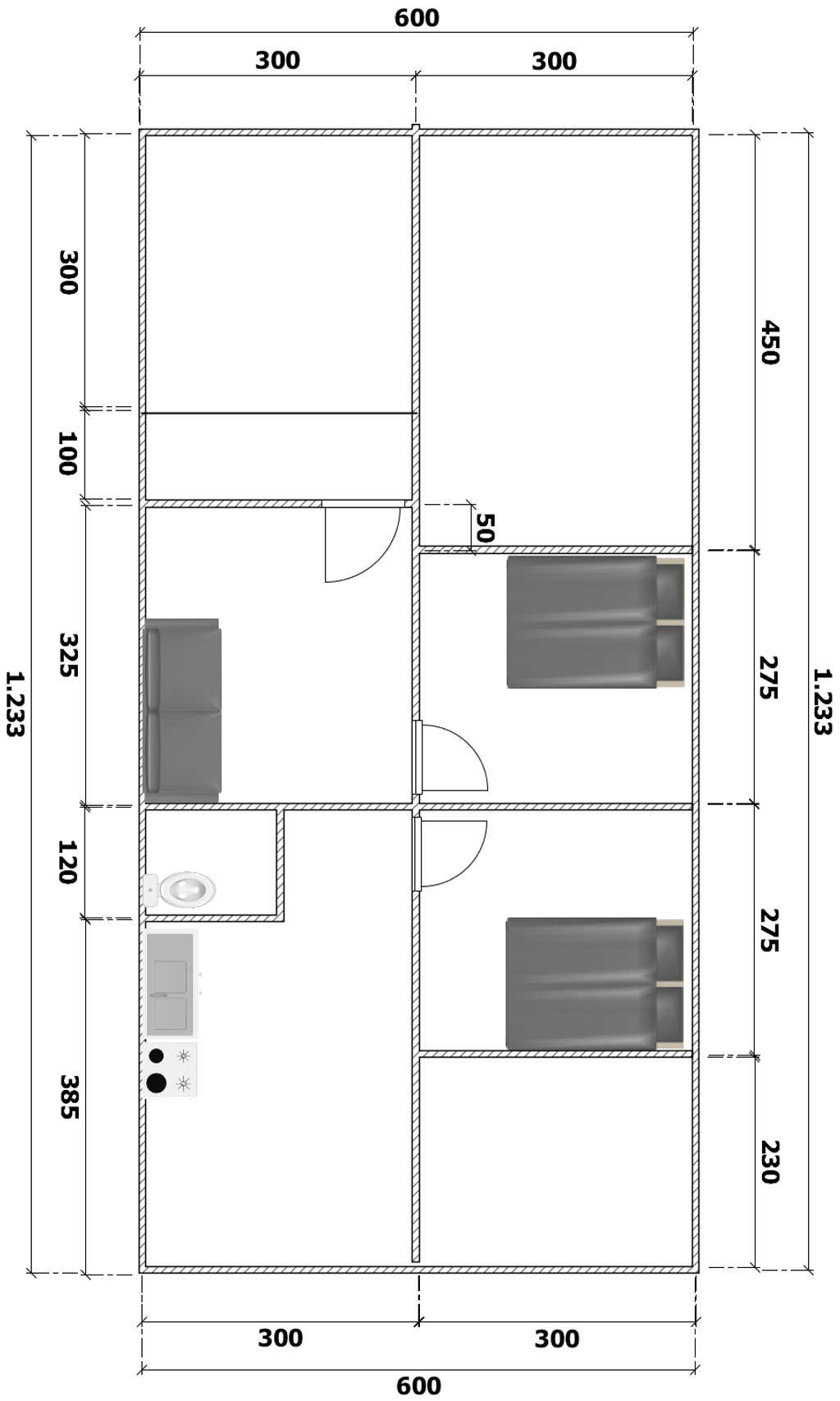
Harga: Rp 166.000.000
Luas Bangunan: 30m 2
Luas Lahan: 67m 2
Kamar Tidur: 2
Kamar Mandi: 1
a. Atap
GENTENG MANTILY
b. Dinding
HEBEL ACI
c. Lantai & Pondasi
KERAMIK 40X40 & BATU KALI


Harga: Rp 166.000.000
Luas Bangunan: 30m 2
Luas Lahan: 68m 2
Kamar Tidur: 2
Kamar Mandi: 1
a. Atap
GENTENG MANTILY
b. Dinding
HEBEL ACI
c. Lantai & Pondasi
KERAMIK 40X40 & BATU KALI


Harga: Rp 166.000.000
Luas Bangunan: 30m 2
Luas Lahan: 72m 2
Kamar Tidur: 2
Kamar Mandi: 1
a. Atap
GENTENG MANTILY
b. Dinding
HEBEL ACI
c. Lantai & Pondasi
KERAMIK 40X40 & BATU KALI


Harga: Rp 166.000.000
Luas Bangunan: 30m 2
Luas Lahan: 74m 2
Kamar Tidur: 2
Kamar Mandi: 1
a. Atap
GENTENG MANTILY
b. Dinding
HEBEL ACI
c. Lantai & Pondasi
KERAMIK 40X40 & BATU KALI


Harga: Rp 166.000.000
Luas Bangunan: 30m 2
Luas Lahan: 76m 2
Kamar Tidur: 2
Kamar Mandi: 1
a. Atap
GENTENG MANTILY
b. Dinding
HEBEL ACI
c. Lantai & Pondasi
KERAMIK 40X40 & BATU KALI


Harga: Rp 166.000.000
Luas Bangunan: 30m 2
Luas Lahan: 77m 2
Kamar Tidur: 2
Kamar Mandi: 1
a. Atap
GENTENG MANTILY
b. Dinding
HEBEL ACI
c. Lantai & Pondasi
KERAMIK 40X40 & BATU KALI


Harga: Rp 166.000.000
Luas Bangunan: 30m 2
Luas Lahan: 78m 2
Kamar Tidur: 2
Kamar Mandi: 1
a. Atap
GENTENG MANTILY
b. Dinding
HEBEL ACI
c. Lantai & Pondasi
KERAMIK 40X40 & BATU KALI


Harga: Rp 166.000.000
Luas Bangunan: 30m 2
Luas Lahan: 79m 2
Kamar Tidur: 2
Kamar Mandi: 1
a. Atap
GENTENG MANTILY
b. Dinding
HEBEL ACI
c. Lantai & Pondasi
KERAMIK 40X40 & BATU KALI


Harga: Rp 166.000.000
Luas Bangunan: 30m 2
Luas Lahan: 81m 2
Kamar Tidur: 2
Kamar Mandi: 1
a. Atap
GENTENG MANTILY
b. Dinding
HEBEL ACI
c. Lantai & Pondasi
KERAMIK 40X40 & BATU KALI